Oasis Residence

Eladó téglalakás
Miskolc, 1. emelet

+ 12 kép 1/15
58 900 000 Ft58.9 M Ft 934 921 Ft/m2
2 szoba
63 m²
1. emelet
építés éve:2023

Részletes adatok

Fűtés: Elektromos
Emelet: 1. emelet
Parkolás: Garázs
Extrák: Lift
Energetikai besorolás: Nem adta meg a hirdető

Az OTP Bank lakáshitel ajánlataFizetett hirdetés

+36 70 558
Szoboszlai Máté
referens

Érdekel az OTP Bank kedvezményes lakáshitel ajánlata? *

* A kérdésre „Igen” válasz bejelölése esetén, az „Üzenet küldése” gombra kattintva kijelentem, hogy az OTP Bank Nyrt. Adatkezelési tájékoztatójának tartalmát megismertem és tudomásul vettem.

Eladó téglalakás leírása

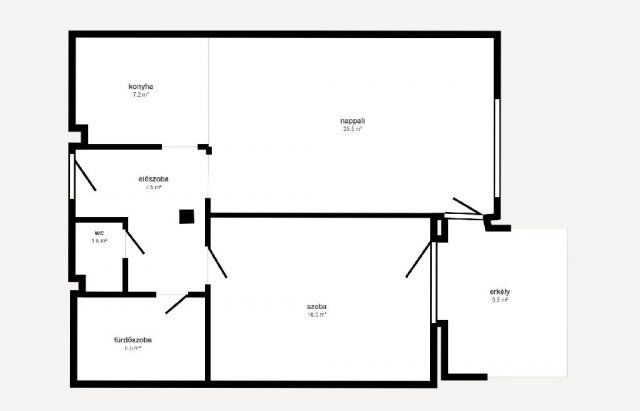
Eladó Miskolc Bodótető városrészen, új építésű panorámás társasházi lakás
- 63 m2- es, egy szoba + amerikai konyhás nappalis, emeleti, erkélyes új építésű lakás
- az ablakok műanyag hőszigetelt kivitelűek 3 rétegű üvegezéssel
- a lakások közötti elválasztásról 30 cm vastagságú hanggátló falak gondoskodnak
- a meleg vizet villanybojlerek, a lakások hűtés- fűtését Mitsubishi levegő - levegő hőszivattyú rendszerek biztosítják
- a homlokzat 20 cm hőszigeteléssel van ellátva
- a lakások kulcsrakészen készülnek el
- egyes lakások hosszútávra bérbe is kivehetőek, ezek a lakások kulcsrakészen, konyhabútorral felszerelve kerülnek kialakításra
- a garázsban elektromos autó töltési lehetőség is kialakításra kerül, a lakások saját napeleméről
- az udvaron kávézó és minőségi, modern játszótér kerül kialakításra
- az épület alatt 8 db külön álló garázs található, illetve a teremgarázsba beállóhelyek, melyekhez tároló is tartozik.

Amennyiben az ingatlan felkeltette az érdeklődését, hívjon bizalommal és tekintsük meg együtt akár hétvégén is! OTP Banki hátterünknek köszönhetően finanszírozási igényekben (pl. Babaváró, CSOK, Felújítási hitel, stb.) is állunk ügyfeleink rendelkezésére. Az ingatlan előre egyeztetett időpontban megtekinthető, megbízható ügyvédi közreműködést, szerződéskötéshez irodai hátteret biztosítunk. Referencia szám: M323170

Hirdetés feltöltve: 2026. 02. 22. Utoljára módosítva: 2026. 02. 22.

2 szobás téglalakások ára Miskolcon

Ebből az összehasonlításból megtudhatod, hogyan viszonyul a lakás ára a környékbeli téglalakások átlagos árához. Ez nem azt jelenti, hogy ennyivel olcsóbb vagy drágább, mint amennyit a lakás ér, hanem hogy ennyivel tér el a környékbeli átlagtól.

Ennek a m² ára
Miskolc m² ár
935 e Ft
536 e Ft -75%
Ennek az ára
Miskolc átlagár
58.9 M Ft m Ft
77.5 m Ft 24%

Az ingatlan elhelyezkedése

Cím: Miskolc, 1. emelet

Eladó téglalakások a környékről

Ózd
Eladó téglalakás

Ózd

8.9 M Ft
2 szoba
57 m²
Putnok
Eladó téglalakás

Putnok

8.8 M Ft
2 szoba
52 m²
Miskolc
Eladó téglalakás

Miskolc

69.7 M Ft
3 szoba
60 m²
Ózd
Eladó téglalakás

Ózd

10.4 M Ft
2 szoba
48 m²
Miskolc
Eladó téglalakás

Miskolc

163.35 M Ft
4 szoba
110 m²
Miskolc
Eladó téglalakás

Miskolc

9.99 M Ft
2 szoba
59 m²
Miskolc
Eladó téglalakás

Miskolc

51.9 M Ft
3 szoba
82 m²
Miskolc
Eladó téglalakás

Miskolc

163.35 M Ft
4 szoba
110 m²
Miskolc
Eladó téglalakás

Miskolc

64.99 M Ft
4 szoba
119 m²
Miskolc
Eladó téglalakás

Miskolc

54.9 M Ft
3 szoba
122 m²
Miskolc
Eladó téglalakás

Miskolc

38.657 M Ft
2 szoba
43 m²
Miskolc
Eladó téglalakás

Miskolc

34.9 M Ft
1 + 1 szoba
49 m²
Miskolc, Új Diósgyőr, Torontáli utca
Eladó téglalakás

Miskolc

19.99 M Ft
2 szoba
49 m²
Miskolc
Eladó téglalakás

Miskolc

54.45 M Ft
2 szoba
51 m²
Miskolc
Eladó téglalakás

Miskolc

41.657 M Ft
2 szoba
51 m²
Sátoraljaújhely
Eladó téglalakás

Sátoraljaújhely

32.9 M Ft
4 szoba
105 m²
Miskolc
Eladó téglalakás

Miskolc

65.34 M Ft
3 szoba
60 m²
Sátoraljaújhely
Eladó téglalakás

Sátoraljaújhely

17 M Ft
2 szoba
52 m²
Miskolc, Belváros, Kazinczy Ferenc utca
Eladó téglalakás

Miskolc

74.9 M Ft
3 szoba
98 m²
Sárospatak, Tompa Mihály utca
Eladó téglalakás

Sárospatak

23.9 M Ft
2 szoba
62 m²
Miskolc
Eladó téglalakás

Miskolc

79.9 M Ft
4 szoba
90 m²
Miskolc
Eladó téglalakás

Miskolc

39.9 M Ft
1 + 2 szoba
56 m²
Putnok
Eladó téglalakás

Putnok

13.6 M Ft
3 szoba
123 m²
Miskolc
Eladó téglalakás

Miskolc

54.9 M Ft
3 szoba
122 m²

Falusi CSOK ingatlanok

Sárosd
Eladó családi ház

Sárosd

21.9 M Ft
3 szoba
86 m²
Mikepércs
Eladó sorház

Mikepércs

700 M Ft
1 szoba
1150 m²
Jakabszállás
Eladó családi ház

Jakabszállás

105 M Ft
6 szoba
180 m²
Ceglédbercel
Eladó családi ház

Ceglédbercel

67 M Ft
4 szoba
165 m²
Nyáregyháza
Eladó családi ház

Nyáregyháza

68.9 M Ft
3 szoba
143 m²
Nagyberény
Eladó családi ház

Nagyberény

67 M Ft
7 szoba
141 m²
Szőlősgyörök
Eladó családi ház

Szőlősgyörök

61.9 M Ft
3 szoba
119 m²
Balatonhenye, Kossuth utca
Eladó családi ház

Balatonhenye

120 M Ft
4 szoba
130 m²