Metrodom

Eladó téglalakás
Miskolc, 1. emelet

+ 1 kép 1/4
101 713 815 Ft101.714 M Ft 1 412 692 Ft/m2
2 szoba
72 m2
1. emelet

Részletes adatok

Fűtés: Egyéb
Energetikai besorolás: Nem adta meg a hirdető

Az OTP Bank lakáshitel ajánlataFizetett hirdetés

+36 30 330
Végső Tibor
referens

Érdekel az OTP Bank kedvezményes lakáshitel ajánlata? *

* A kérdésre „Igen” válasz bejelölése esetén, az „Üzenet küldése” gombra kattintva kijelentem, hogy az OTP Bank Nyrt. Adatkezelési tájékoztatójának tartalmát megismertem és tudomásul vettem.

Eladó téglalakás leírása

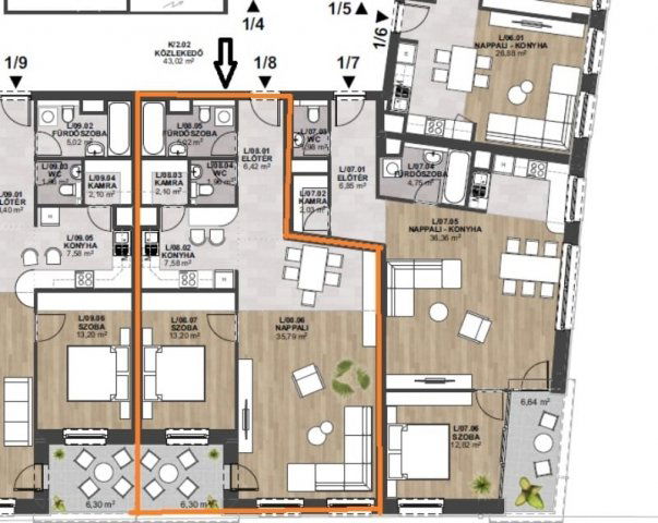
Eladó Miskolcon a Régiposta utcában, jelenleg kivitelezés alatt álló, mélygarázs + földszint + 5 emeletes, vasbeton vázszerkezetű, tégla kitöltő falazatú, hőszigetelt homlokzatú, 3 rétegű hőszigetelt műanyag ablakokkal szerelt, igényes kialakítású 1. emeleten lévő, 72,07 m2-es, előtér, nappali, szoba, konyha, kamra, fürdőszoba, wc, terasz helyiségekből álló társasházi lakás. A lakások alacsony rezsiszükségletét biztosítja a 12 db levegő-víz monoblokkos hőszivattyúval biztosított padlófűtésrendszer és melegvízellátórendszer. A lakások mennyezethűtéssel ellátottak. A kivitelezés jelenleg 70 %-os készültségű. Az épület várható átadásának időpontja 2027. augusztus 30. A lakás m2 ára 1.354.500.-Ft/m2. + 6 m2 terasz 682.500.-Ft/m2. A lakáshoz vásárolható teremgarázs ára: 12.700.000.-Ft. illetve 2,40 m2-es tároló Ára: 889.000.-Ft. Részletes tájékoztatásért hívjon a -es telefonszámon, vagy kérje a hirdetésben szereplő e-mail címünkön

Hirdetés feltöltve: 2025. 12. 09. Utoljára módosítva: 2025. 12. 09.

2 szobás téglalakások ára Miskolcon

Ebből az összehasonlításból megtudhatod, hogyan viszonyul a lakás ára a környékbeli téglalakások átlagos árához. Ez nem azt jelenti, hogy ennyivel olcsóbb vagy drágább, mint amennyit a lakás ér, hanem hogy ennyivel tér el a környékbeli átlagtól.

Ennek a m² ára
Miskolc m² ár
1413 e Ft
617 e Ft -129%
Ennek az ára
Miskolc átlagár
101.714 M Ft m Ft
33.7 m Ft -202%

Az ingatlan elhelyezkedése

Cím: Miskolc, 1. emelet

Eladó téglalakások a környékről

Eladó téglalakás
Eladó téglalakás

Tokaj

114.929 M Ft
2 szoba
73 m2
Eladó téglalakás
Eladó téglalakás

Miskolc

75.982 M Ft
3 szoba
78 m2
Eladó téglalakás
Eladó téglalakás

Miskolc

65.34 M Ft
3 szoba
60 m2
Eladó téglalakás
Eladó téglalakás

Miskolc

79.9 M Ft
4 szoba
90 m2
Eladó téglalakás
Eladó téglalakás

Miskolc

9.99 M Ft
2 szoba
59 m2
Eladó téglalakás
Eladó téglalakás

Miskolc

49.9 M Ft
3 szoba
122 m2
Eladó téglalakás
Eladó téglalakás

Miskolc, Belváros, Kazinczy Ferenc utca

74.9 M Ft
3 szoba
98 m2
Eladó téglalakás
Eladó téglalakás

Miskolc

25.4 M Ft
2 szoba
51 m2
Eladó téglalakás
Eladó téglalakás

Miskolc

41.657 M Ft
2 szoba
51 m2
Eladó téglalakás
Eladó téglalakás

Miskolc

59.9 M Ft
2 + 3 szoba
97 m2
Eladó téglalakás
Eladó téglalakás

Sátoraljaújhely

17 M Ft
2 szoba
52 m2
Eladó téglalakás
Eladó téglalakás

Putnok

13.6 M Ft
3 szoba
123 m2
Eladó téglalakás
Eladó téglalakás

Ózd

9.99 M Ft
2 szoba
58 m2
Eladó téglalakás
Eladó téglalakás

Miskolc, Új Diósgyőr, Torontáli utca

19.99 M Ft
2 szoba
49 m2
Eladó téglalakás
Eladó téglalakás

Miskolc

163.35 M Ft
4 szoba
110 m2
Eladó téglalakás
Eladó téglalakás

Miskolc

123.048 M Ft
2 szoba
102 m2
Eladó téglalakás
Eladó téglalakás

Ózd

10.4 M Ft
2 szoba
48 m2
Eladó téglalakás
Eladó téglalakás

Miskolc, Új Diósgyőr, Torontáli utca

19.99 M Ft
2 szoba
49 m2
Eladó téglalakás
Eladó téglalakás

Miskolc

65.34 M Ft
3 szoba
60 m2
Eladó téglalakás
Eladó téglalakás

Miskolc

41.657 M Ft
2 szoba
51 m2
Eladó téglalakás
Eladó téglalakás

Miskolc

54.45 M Ft
2 szoba
51 m2
Eladó téglalakás
Eladó téglalakás

Miskolc

39.9 M Ft
1 + 2 szoba
56 m2
Eladó téglalakás
Eladó téglalakás

Miskolc

65.34 M Ft
3 szoba
60 m2
Eladó téglalakás
Eladó téglalakás

Miskolc

35.9 M Ft
1 + 1 szoba
34 m2

Falusi CSOK ingatlanok

Eladó családi ház
Eladó családi ház

Sajópálfala

35 M Ft
3 szoba
83 m2
Eladó családi ház
Eladó családi ház

Nagybaracska

35 M Ft
3 szoba
110 m2
Eladó családi ház
Eladó családi ház

Doboz

11.99 M Ft
2 + 1 szoba
89 m2
Eladó családi ház
Eladó családi ház

Somogygeszti

10.9 M Ft
2 szoba
115 m2
Eladó családi ház
Eladó családi ház

Hegyeshalom

85 M Ft
4 + 1 szoba
123 m2
Eladó téglalakás
Eladó téglalakás

Újlengyel

72.99 M Ft
2 szoba
68 m2
Eladó családi ház
Eladó családi ház

Onga

72.9 M Ft
4 szoba
109 m2
Eladó családi ház
Eladó családi ház

Bőny

67.8 M Ft
3 szoba
81 m2