Astora Olive Club House

Eladó téglalakás
Miskolc, 1. emelet

53 000 000 Ft53 M Ft 791 045 Ft/m2
3 szoba
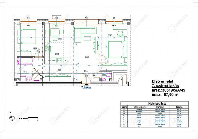
67 m2
1. emelet
építés éve:2025

Részletes adatok

Fűtés: Egyéb
Energetikai besorolás: Nem adta meg a hirdető

Az OTP Bank lakáshitel ajánlataFizetett hirdetés

+36 70 467
Joó Tímea
Openhouse Miskolc

Érdekel az OTP Bank kedvezményes lakáshitel ajánlata? *

* A kérdésre „Igen” válasz bejelölése esetén, az „Üzenet küldése” gombra kattintva kijelentem, hogy az OTP Bank Nyrt. Adatkezelési tájékoztatójának tartalmát megismertem és tudomásul vettem.

Eladó téglalakás leírása

Az Openhouse Miskolc Soltész Nagy Kálmán utcai Ingatlaniroda kínálatában eladó a #178577 hivatkozási számú miskolci társasházi lakás.

Megkezdődik Miskolc egyik legdinamikusabban fejlődő városrészében, Diósgyőr központjában egy új, modern társasház lakásainak értékesítése. A Törökverő utca 1. szám alatt épülő, prémium kivitelezésű ingatlan 2026 elején kulcsrakész állapotban várja első lakóit.

Ez a lakópark tökéletes választás mindazok számára, akik a kényelmet, a biztonságot és a magas minőséget keresik egy kiváló elhelyezkedésű, mégis nyugodt környezetben.

Főbb jellemzők és előnyök:

Kiváló elhelyezkedés: Az ingatlan Diósgyőr központjában található, ahonnan a tömegközlekedés, üzletek és szolgáltató egységek mindössze pár perc sétával elérhetőek.
Zárt, privát közösség: A társasház egy kizárólag a lakók által használható, körülkerített területen helyezkedik el. A gondozott, térkövezett és füvesített közös udvar parkosított zöldterületként funkcionál, biztosítva a nyugodt pihenést.
Energetikai hatékonyság és modern technológia: Az épület a kor legmagasabb energetikai, üzemeltetési és esztétikai igényeinek megfelel.

Szigetelés: 15 cm homlokzati, 20 cm lapostető és 10 cm szintközi szigetelés garantálja az alacsony rezsiköltséget.
Fűtés és hűtés: A modern hőszivattyús rendszer radiátoros hőleadókkal és kiegészítő fan-coil egységekkel biztosítja a kellemes hőmérsékletet, a hűtésről pedig minden szobában fan-coil gondoskodik.
Nyílászárók: 6 légkamrás műanyag tokszerkezetű, 3 rétegű hőszigetelő üvegezéssel, rejtett redőnytok előkészítéssel.

Praktikus kialakítás: A földszinten különálló garázsok, tárolók és közös helyiségek kerültek kialakításra. A tágas, felülről bevilágított lépcsőház egyedi hangulatot kölcsönöz az épületnek.
Változatos lakásméretek: Az I. és II. emeleten különféle alapterületű lakások közül választhat:
- 6 db 34 m² - 28millió forint,
- 2 db 56 m² - 44millió forint,
- 2 db 67 m² - 53millió forint,
- 2 db 75 m² - 60millió forint,
- 2 db 82 m² - 65millió forint,
- 2 db 99 m² - 79millió forint.
Kulcsrakész átadás: A vételár tartalmazza a magas minőségű burkolatokat, szanitereket, szerelvényeket és belső ajtókat. Az internet és kábeltévé hálózata kiépített, a konyhában minden szükséges gépészeti csatlakozás (tűzhely, mosogatógép, hűtő) biztosított (a konyhabútor nem része az ingatlan árának).
Egyedi mérők: Minden közmű (áram, hidegvíz, melegvíz, hűtés, fűtés) fogyasztása lakásonként külön mérőórával kerül elszámolásra.

A lakásokhoz opcionálisan vásárolható garázs, melynek ára 8,000.000.-Ft, valamint különböző nagyságú tárolók is rendelkezésre állnak!

Finanszírozás:

A vásárláshoz valamennyi állami támogatás (például CSOK Plusz), babaváró hitel és banki hitel igénybe vehető, rugalmas finanszírozási lehetőségeket kínálva.

Ne maradjon le a lehetőségről!

Biztosítsa be álmai otthonát Diósgyőr új lakóparkjában. További információért, műszaki tartalomért és a megvásárolható lakások pontos alaprajzaiért keressen minket bizalommal a megadott elérhetőségeken.

Ha felkeltette érdeklődését ez az eladó miskolci társasházi lakás, vagy bármely más társasházi lakás és bővebb információt szeretne, keressen bizalommal.Hivatkozási szám: #178577

Az Openhouse Miskolc Soltész Nagy Kálmán utcai Ingatlaniroda tagjaként várom Önt az országos hálózatunk teljes kínálatával.

A társasházi lakás vásárláshoz hitelt igényelne? Ingyenes hitelközvetítéssel segít Önnek bankfüggetlen hitelszakértőnk.

További szolgáltatásainkkal (pl. értékbecslés, energetikai tanúsítvány, jogi háttér) is segítjük Önt a vásárlásban.
Az otthon érték. Az ingatlan üzlet.

Irányár: 53000000 Ft
Érd.: Joó Tímea +36204040447, Email: timea.joo@oh.hu, www.oh.hu

Referencia szám: 178577

Hirdetés feltöltve: 2025. 11. 26.

3 szobás téglalakások ára Miskolcon

Ebből az összehasonlításból megtudhatod, hogyan viszonyul a lakás ára a környékbeli téglalakások átlagos árához. Ez nem azt jelenti, hogy ennyivel olcsóbb vagy drágább, mint amennyit a lakás ér, hanem hogy ennyivel tér el a környékbeli átlagtól.

Ennek a m² ára
Miskolc m² ár
791 e Ft
692 e Ft -14%
Ennek az ára
Miskolc átlagár
53 M Ft m Ft
52.2 m Ft -2%

Az ingatlan elhelyezkedése

Cím: Miskolc, 1. emelet

Eladó téglalakások a környékről

Eladó téglalakás
Eladó téglalakás

Miskolc

54.45 M Ft
2 szoba
51 m2
Eladó téglalakás
Eladó téglalakás

Sátoraljaújhely

32.9 M Ft
4 szoba
105 m2
Eladó téglalakás
Eladó téglalakás

Tiszaújváros

54.6 M Ft
2 szoba
80 m2
Eladó téglalakás
Eladó téglalakás

Sátoraljaújhely

17 M Ft
2 szoba
52 m2
Eladó téglalakás
Eladó téglalakás

Ózd

8.9 M Ft
2 szoba
57 m2
Eladó téglalakás
Eladó téglalakás

Miskolc

69.7 M Ft
3 szoba
60 m2
Eladó téglalakás
Eladó téglalakás

Miskolc

65.34 M Ft
3 szoba
60 m2
Eladó téglalakás
Eladó téglalakás

Miskolc

49.9 M Ft
3 szoba
122 m2
Eladó téglalakás
Eladó téglalakás

Miskolc

59.99 M Ft
3 szoba
83 m2
Eladó téglalakás
Eladó téglalakás

Miskolc

65.34 M Ft
1 + 1 szoba
40 m2
Eladó téglalakás
Eladó téglalakás

Miskolc

49 M Ft
2 szoba
51 m2
Eladó téglalakás
Eladó téglalakás

Borsodnádasd

7.9 M Ft
4 szoba
113 m2
Eladó téglalakás
Eladó téglalakás

Miskolc

41.9 M Ft
3 szoba
81 m2
Eladó téglalakás
Eladó téglalakás

Miskolc

59.9 M Ft
2 + 3 szoba
97 m2
Eladó téglalakás
Eladó téglalakás

Putnok

8.8 M Ft
2 szoba
52 m2
Eladó téglalakás
Eladó téglalakás

Miskolc

123.048 M Ft
2 szoba
102 m2
Eladó téglalakás
Eladó téglalakás

Miskolc

163.35 M Ft
4 szoba
110 m2
Eladó téglalakás
Eladó téglalakás

Miskolc

39.9 M Ft
1 + 2 szoba
56 m2
Eladó téglalakás
Eladó téglalakás

Miskolc

163.35 M Ft
4 szoba
110 m2
Eladó téglalakás
Eladó téglalakás

Miskolc

54.45 M Ft
2 szoba
51 m2
Eladó téglalakás
Eladó téglalakás

Miskolc

51.9 M Ft
3 szoba
82 m2
Eladó téglalakás
Eladó téglalakás

Ózd

9.99 M Ft
2 szoba
58 m2
Eladó téglalakás
Eladó téglalakás

Miskolc

39.9 M Ft
2 szoba
77 m2
Eladó téglalakás
Eladó téglalakás

Miskolc

75.982 M Ft
3 szoba
78 m2

Falusi CSOK ingatlanok

Eladó családi ház
Eladó családi ház

Mályi

84.9 M Ft
4 szoba
100 m2
Eladó családi ház
Eladó családi ház

Ábrahámhegy

139 M Ft
4 szoba
106 m2
Eladó családi ház
Eladó családi ház

Nagybörzsöny

36 M Ft
2 + 1 szoba
74 m2
Eladó családi ház
Eladó családi ház

Vitnyéd, Petőfi Sándor utca 3

16.71 M Ft
1 + 1 szoba
99 m2
Eladó családi ház
Eladó családi ház

Vaskút

76 M Ft
3 szoba
120 m2
Eladó családi ház
Eladó családi ház

Törtel, Kőrösi út 101

22.21 M Ft
2 szoba
117 m2
Eladó családi ház
Eladó családi ház

Borsosberény

22.99 M Ft
2 szoba
70 m2
Eladó családi ház
Eladó családi ház

Ceglédbercel, Iskola utca

89.99 M Ft
5 szoba
110 m2