Seven Pearl

Eladó téglalakás
Miskolc, 9. emelet

1/1
27 900 000 Ft27.9 M Ft 536 538 Ft/m2
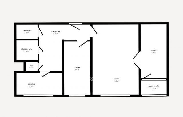
2 szoba
52 m2
9. emelet
építés éve:1966

Részletes adatok

Állapot: Felújítandó
Fűtés: Gázkonvektor
Extrák: Lift
Energetikai besorolás: Nem adta meg a hirdető
Zenga Premier

Friss hirdetések, amiket nem találsz meg más ingatlankereső portálon.

Fedezd fel elsőként a Zenga Premier címkés eladó ingatlanokat!

További részletek a zenga.hu-n

Az OTP Bank lakáshitel ajánlataFizetett hirdetés

+36 20 449
Nagy István György
referens

Érdekel az OTP Bank kedvezményes lakáshitel ajánlata? *

* A kérdésre „Igen” válasz bejelölése esetén, az „Üzenet küldése” gombra kattintva kijelentem, hogy az OTP Bank Nyrt. Adatkezelési tájékoztatójának tartalmát megismertem és tudomásul vettem.

Eladó téglalakás leírása

ELADÓ KÉTSZOBÁS LAKÁS A SZENTPÉTERI KAPUBAN! Eladó a Pozsonyi utcán egy 52nm-es, kétszobás, erkélyes lakás egy szigetelt épület kilencedik emeletén! Nyílászárói hőszigeteltek, a bejárati ajtó is cserélve lett. Két szobája parketta, míg a többi helyiség és az erkély járólap burkolatot kapott. Fűtése gázkonvektorokkal, a használati melegvíz hőtárolós villanybojlerrel megoldott. Lépcsőháza kulturált csendes, babakocsi és nyári gumi tárolása közös pincében. Fekvése kiváló, üzletek, iskola, orvos, tömegközlekedés pár percre, parkolás a ház melletti tágas parkolóban ingyenes. Kiváló lehetőség mindazoknak, akik a belváros közelében, mégis egy csendes parkos helyen képzelik el új otthonukat!
Várom hívását, hétvégén is!
OTP banki hátterünkkel ügyfeleink rendelkezésére állunk finanszírozási kérdésekben is.
M316600

Hirdetés feltöltve: 2025. 11. 08. Utoljára módosítva: 2025. 11. 08.

2 szobás téglalakások ára Miskolcon

Ebből az összehasonlításból megtudhatod, hogyan viszonyul a lakás ára a környékbeli téglalakások átlagos árához. Ez nem azt jelenti, hogy ennyivel olcsóbb vagy drágább, mint amennyit a lakás ér, hanem hogy ennyivel tér el a környékbeli átlagtól.

Ennek a m² ára
Miskolc m² ár
537 e Ft
609 e Ft 12%
Ennek az ára
Miskolc átlagár
27.9 M Ft m Ft
32.3 m Ft 14%

Az ingatlan elhelyezkedése

Cím: Miskolc, 9. emelet

Eladó téglalakások a környékről

Eladó téglalakás
Eladó téglalakás

Miskolc

39.9 M Ft
2 szoba
77 m2
Eladó téglalakás
Eladó téglalakás

Ózd

8.9 M Ft
2 szoba
57 m2
Eladó téglalakás
Eladó téglalakás

Miskolc

41.9 M Ft
3 szoba
81 m2
Eladó téglalakás
Eladó téglalakás

Miskolc

138 M Ft
4 szoba
110 m2
Eladó téglalakás
Eladó téglalakás

Miskolc

59 M Ft
3 szoba
60 m2
Eladó téglalakás
Eladó téglalakás

Miskolc

49 M Ft
2 szoba
51 m2
Eladó téglalakás
Eladó téglalakás

Miskolc

138 M Ft
4 szoba
110 m2
Eladó téglalakás
Eladó téglalakás

Miskolc

41.657 M Ft
2 szoba
51 m2
Eladó téglalakás
Eladó téglalakás

Ózd

10.4 M Ft
2 szoba
48 m2
Eladó téglalakás
Eladó téglalakás

Miskolc

64 M Ft
3 szoba
60 m2
Eladó téglalakás
Eladó téglalakás

Miskolc

75.982 M Ft
3 szoba
78 m2
Eladó téglalakás
Eladó téglalakás

Miskolc

24.9 M Ft
2 szoba
52 m2
Eladó téglalakás
Eladó téglalakás

Miskolc

59.9 M Ft
2 + 3 szoba
97 m2
Eladó téglalakás
Eladó téglalakás

Miskolc

49 M Ft
2 szoba
51 m2
Eladó téglalakás
Eladó téglalakás

Miskolc

59.99 M Ft
3 szoba
83 m2
Eladó téglalakás
Eladó téglalakás

Miskolc

138 M Ft
5 szoba
110 m2
Eladó téglalakás
Eladó téglalakás

Putnok

8.8 M Ft
2 szoba
52 m2
Eladó téglalakás
Eladó téglalakás

Miskolc

64 M Ft
3 szoba
60 m2
Eladó téglalakás
Eladó téglalakás

Tiszaújváros

60.06 M Ft
2 szoba
68 m2
Eladó téglalakás
Eladó téglalakás

Miskolc

35.9 M Ft
1 + 1 szoba
34 m2
Eladó téglalakás
Eladó téglalakás

Miskolc, Új Diósgyőr, Torontáli utca

19.99 M Ft
2 szoba
49 m2
Eladó téglalakás
Eladó téglalakás

Miskolc

39.9 M Ft
1 + 2 szoba
56 m2
Eladó téglalakás
Eladó téglalakás

Sátoraljaújhely

17 M Ft
2 szoba
52 m2
Eladó téglalakás
Eladó téglalakás

Miskolc

24.9 M Ft
2 szoba
52 m2

Falusi CSOK ingatlanok

Eladó családi ház
Eladó családi ház

Bugac

69.9 M Ft
4 szoba
130 m2
Eladó családi ház
Eladó családi ház

Szigetbecse, Makádi út

49 M Ft
2 szoba
84 m2
Eladó családi ház
Eladó családi ház

Városföld

27.99 M Ft
55 m2
Eladó családi ház
Eladó családi ház

Törtel

14 M Ft
3 + 2 szoba
55 m2
Eladó családi ház
Eladó családi ház

Tótszerdahely

55.5 M Ft
4 + 2 szoba
160 m2
Eladó családi ház
Eladó családi ház

Tömörkény

8.9 M Ft
2 szoba
80 m2
Eladó családi ház
Eladó családi ház

Nagybaracska

4.599 M Ft
3 szoba
120 m2
Eladó családi ház
Eladó családi ház

Karád

29.9 M Ft
4 szoba
150 m2