Aerogate Homes

Eladó téglalakás
Miskolc, 3. emelet

+ 10 kép 1/13
59 900 000 Ft59.9 M Ft 809 459 Ft/m2
3 szoba
74 m2
3. emelet
építés éve:2010

Részletes adatok

Fűtés: Távfűtés
Extrák: Lift
Energetikai besorolás: Nem adta meg a hirdető

Az OTP Bank lakáshitel ajánlataFizetett hirdetés

+36 30 590
Drótos Bence
OTP Ingatlanpont Miskolc Szemere

Érdekel az OTP Bank kedvezményes lakáshitel ajánlata? *

* A kérdésre „Igen” válasz bejelölése esetén, az „Üzenet küldése” gombra kattintva kijelentem, hogy az OTP Bank Nyrt. Adatkezelési tájékoztatójának tartalmát megismertem és tudomásul vettem.

Eladó téglalakás leírása

Csak az OTP INGATLANPONT ajánlatában!
Eladásra kínálunk a nyüzsgő belváros szívében, közvetlenül a PLÁZA mellett, egy 74 nm-es, 3. emeleti, klimatizált, 3 szobás lakást, ami kiválóan megfelel a környék hangulatát kedvelő családi otthonnak, esetleg cégnek, irodának, orvosi rendelőnek vagy az elhelyezkedése miatt bármilyen vállalkozásnak, illetve Airbnb hasznosításra.
Az ingatlan 3 szintes, téglából épült 2010-ben, és fontosnak tartom megjegyezni, hogy ebben az épületben a válaszfalak is téglából készültek.
Belvárosi pezsgő élet, éttermek, üzletek, óvoda, iskola, gimnázium, bank, busz pályaudvar, mindez pár perces sétával elérhető.
Az ingatlan liftes, szépen rendben tartott, zárt, a tavalyi évben teljesen felújított lépcsőházból nyílik.
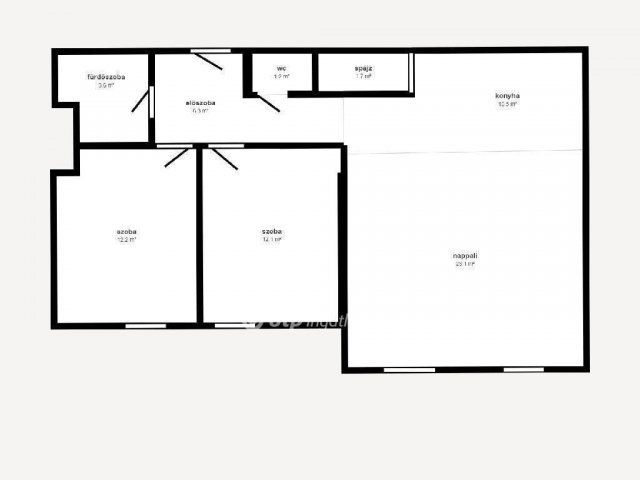
2 hálószobából, 1 amerikai konyhás nappaliból,1 közlekedőből,1 fürdőszobából, 1 WC-ből és egy kicsi tároló helyiségből áll.
Minden szoba külön bejáratú, a fürdő és a WC szintén különálló.
A szobák laminált parkettával fedettek, a többi helyiség hideg burkolattal ellátott.
A lakás elrendezése kiváló, könnyű átalakítani saját elképzelés szerint.
Rendkívül világos, minden helyisége ablakos, a nappali franciaerkélyes.
Az ablakok hő- és hangszigeteltek, háromrétegű üvegezéssel, szúnyoghálóval és redőnnyel felszereltek.
Az épületben több, főleg irodai és orvosi vállalkozás működik, jelen pillanatban is.
A mélygarázsban 1 kocsi beállására alkalmas, parkolási lehetőség is megvásárolható, külön ár megegyezés szerint.
Nézze meg, nem fogja megbánni!
Az ingatlan előzetes egyeztetés után megtekinthető, akár hétvégén is!
Amiben segítjük Önöket:
- hitel ügyintézés
- CSOK ügyintézés
- energetikai tanúsítvány
Várjuk hívását és kérjük, hivatkozzon a következő referenciaszámra: M304523

Hirdetés feltöltve: 2025. 11. 07. Utoljára módosítva: 2026. 01. 01.

3 szobás téglalakások ára Miskolcon

Ebből az összehasonlításból megtudhatod, hogyan viszonyul a lakás ára a környékbeli téglalakások átlagos árához. Ez nem azt jelenti, hogy ennyivel olcsóbb vagy drágább, mint amennyit a lakás ér, hanem hogy ennyivel tér el a környékbeli átlagtól.

Ennek a m² ára
Miskolc m² ár
809 e Ft
759 e Ft -7%
Ennek az ára
Miskolc átlagár
59.9 M Ft m Ft
58.7 m Ft -2%

Az ingatlan elhelyezkedése

Cím: Miskolc, 3. emelet

Eladó téglalakások a környékről

Eladó téglalakás
Eladó téglalakás

Miskolc

59.9 M Ft
2 + 3 szoba
97 m2
Eladó téglalakás
Eladó téglalakás

Miskolc

69.7 M Ft
3 szoba
60 m2
Eladó téglalakás
Eladó téglalakás

Sátoraljaújhely

32.9 M Ft
4 szoba
105 m2
Eladó téglalakás
Eladó téglalakás

Ózd

9.99 M Ft
2 szoba
58 m2
Eladó téglalakás
Eladó téglalakás

Miskolc, Belváros, Kazinczy Ferenc utca

74.9 M Ft
3 szoba
98 m2
Eladó téglalakás
Eladó téglalakás

Putnok

8.8 M Ft
2 szoba
52 m2
Eladó téglalakás
Eladó téglalakás

Miskolc

35.9 M Ft
1 + 1 szoba
34 m2
Eladó téglalakás
Eladó téglalakás

Miskolc

9.99 M Ft
2 szoba
59 m2
Eladó téglalakás
Eladó téglalakás

Miskolc

39.9 M Ft
1 + 2 szoba
56 m2
Eladó téglalakás
Eladó téglalakás

Miskolc

25.4 M Ft
2 szoba
51 m2
Eladó téglalakás
Eladó téglalakás

Miskolc

163.35 M Ft
4 szoba
110 m2
Eladó téglalakás
Eladó téglalakás

Borsodnádasd

7.9 M Ft
4 szoba
113 m2
Eladó téglalakás
Eladó téglalakás

Sátoraljaújhely

17.9 M Ft
2 szoba
65 m2
Eladó téglalakás
Eladó téglalakás

Miskolc

65.34 M Ft
1 + 1 szoba
40 m2
Eladó téglalakás
Eladó téglalakás

Miskolc

79.9 M Ft
4 szoba
90 m2
Eladó téglalakás
Eladó téglalakás

Sátoraljaújhely

17 M Ft
2 szoba
52 m2
Eladó téglalakás
Eladó téglalakás

Miskolc

54.45 M Ft
2 szoba
51 m2
Eladó téglalakás
Eladó téglalakás

Miskolc

64.99 M Ft
4 szoba
119 m2
Eladó téglalakás
Eladó téglalakás

Miskolc

163.35 M Ft
4 szoba
110 m2
Eladó téglalakás
Eladó téglalakás

Miskolc, Új Diósgyőr, Torontáli utca

19.99 M Ft
2 szoba
49 m2
Eladó téglalakás
Eladó téglalakás

Miskolc

69.7 M Ft
3 szoba
60 m2
Eladó téglalakás
Eladó téglalakás

Miskolc

34.9 M Ft
1 + 1 szoba
49 m2
Eladó téglalakás
Eladó téglalakás

Miskolc

60.396 M Ft
2 szoba
63 m2
Eladó téglalakás
Eladó téglalakás

Ózd

8.9 M Ft
2 szoba
57 m2

Falusi CSOK ingatlanok

Eladó családi ház
Eladó családi ház

Somogygeszti

38.6 M Ft
3 + 1 szoba
98 m2
Eladó családi ház
Eladó családi ház

Kajárpéc

32 M Ft
4 szoba
120 m2
Eladó családi ház
Eladó családi ház

Villány, Móra Ferenc utca

73.65 M Ft
3 szoba
70 m2
Eladó családi ház
Eladó családi ház

Tiszatenyő

13.99 M Ft
2 szoba
63 m2
Eladó családi ház
Eladó családi ház

Gyulaj, Árpád u

9.9 M Ft
2 szoba
69 m2
Eladó családi ház
Eladó családi ház

Rábaszentmihály

65 M Ft
3 szoba
156 m2
Eladó családi ház
Eladó családi ház

Kenyeri

21.8 M Ft
2 szoba
75 m2
Eladó családi ház
Eladó családi ház

Pápakovácsi

33 M Ft
3 szoba
87 m2