BAM Living

Eladó téglalakás
Miskolc, 2. emelet

+ 15 kép 1/18
31 500 000 Ft31.5 M Ft 572 727 Ft/m2
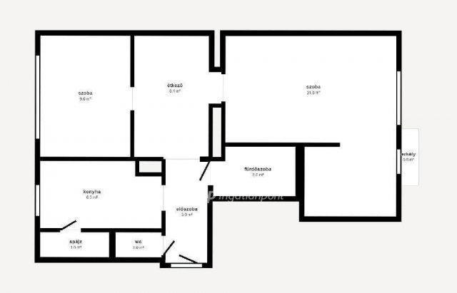
2 + 1 szoba
55 m2
2. emelet
építés éve:1980

Részletes adatok

Állapot: Felújítandó
Fűtés: Gázkonvektor
Energetikai besorolás: Nem adta meg a hirdető

Az OTP Bank lakáshitel ajánlataFizetett hirdetés

+36 70 397
Vég-Dudás Dominika
OTP Ingatlanpont Miskolc

Érdekel az OTP Bank kedvezményes lakáshitel ajánlata? *

* A kérdésre „Igen” válasz bejelölése esetén, az „Üzenet küldése” gombra kattintva kijelentem, hogy az OTP Bank Nyrt. Adatkezelési tájékoztatójának tartalmát megismertem és tudomásul vettem.

Eladó téglalakás leírása

Miskolc egyik kedvelt részén, az Éder György utcában kínálunk eladásra egy 55 nm-es, második emeleti, erkélyes lakást, amely igazi lehetőséget rejt magában mind otthonteremtők, mind befektetők számára. Az ingatlan 2,5 szobával rendelkezik, tágas elrendezésének és jó beosztásának köszönhetően könnyen átalakítható és a saját igényekhez igazítható. A fűtést gázkonvektor biztosítja, az ablakokat redőnyök védik, a lakás állapota felújítandó, így kiváló alapot nyújt egy egyedi, modern otthon kialakításához.

A lakáshoz saját pince és spájz is tartozik, valamint külön helyiségben található a fürdőszoba és a wc, ami növeli a mindennapi kényelmet. Az ár különlegessége, hogy magában foglal egy 14 nm-es, szerelőaknás garázst is, amely közvetlenül a ház előtt található. Ez a lehetőség igazi ritkaságnak számít a környéken, hiszen a biztonságos parkolás és a garázsban tárolható extra hely nagyban megkönnyíti a mindennapokat, és önmagában is jelentős értéket képvisel.

A környék infrastrukturálisan rendkívül jól ellátott. Néhány száz méterre megtalálható villamos- és buszmegálló, a közelben óvoda, bölcsőde és iskola is biztosítja a családok számára a mindennapi praktikumot. A belváros gyalogosan mindössze 10 perc alatt elérhető, így minden fontos szolgáltatás karnyújtásnyira van. A társasház külső homlokzatának felújítása hamarosan elkezdődik, amely tovább növeli az ingatlan értékét és esztétikai vonzerejét.

Ez a lakás ideális választás mindazoknak, akik saját ízlésük szerint szeretnék megvalósítani új otthonukat, vagy hosszú távon értékálló befektetést keresnek.
A lakás a 3%-os Otthon Start hitelre is megvásárolható.
OTP Banki hátterünknek köszönhetően finanszírozási igényekben (pl. Otthon Start Hitelprogram , Babaváró, Falusi CSOK, CSOK Plusz, Lakáshitel, Személyi kölcsön stb.), illetve biztosítások tekintetében is díjmentesen, soron kívüli ügyintézéssel segítem ügyfeleim! Érdeklődés esetén hivatkozzon az M313195 referenciaszámra.

Hirdetés feltöltve: 2025. 10. 29. Utoljára módosítva: 2025. 11. 20.

3 szobás téglalakások ára Miskolcon

Ebből az összehasonlításból megtudhatod, hogyan viszonyul a lakás ára a környékbeli téglalakások átlagos árához. Ez nem azt jelenti, hogy ennyivel olcsóbb vagy drágább, mint amennyit a lakás ér, hanem hogy ennyivel tér el a környékbeli átlagtól.

Ennek a m² ára
Miskolc m² ár
573 e Ft
689 e Ft 17%
Ennek az ára
Miskolc átlagár
31.5 M Ft m Ft
51.8 m Ft 39%

Az ingatlan elhelyezkedése

Cím: Miskolc, 2. emelet

Eladó téglalakások a környékről

Eladó téglalakás
Eladó téglalakás

Putnok

13.6 M Ft
3 szoba
123 m2
Eladó téglalakás
Eladó téglalakás

Miskolc

41.657 M Ft
2 szoba
51 m2
Eladó téglalakás
Eladó téglalakás

Miskolc, Új Diósgyőr, Torontáli utca

19.99 M Ft
2 szoba
49 m2
Eladó téglalakás
Eladó téglalakás

Miskolc

59.9 M Ft
2 + 3 szoba
97 m2
Eladó téglalakás
Eladó téglalakás

Miskolc

54.45 M Ft
2 szoba
51 m2
Eladó téglalakás
Eladó téglalakás

Miskolc

65.34 M Ft
3 szoba
60 m2
Eladó téglalakás
Eladó téglalakás

Miskolc

163.35 M Ft
4 szoba
110 m2
Eladó téglalakás
Eladó téglalakás

Miskolc

49.9 M Ft
3 szoba
122 m2
Eladó téglalakás
Eladó téglalakás

Miskolc

123.048 M Ft
2 szoba
102 m2
Eladó téglalakás
Eladó téglalakás

Sátoraljaújhely

17 M Ft
2 szoba
52 m2
Eladó téglalakás
Eladó téglalakás

Miskolc

41.9 M Ft
3 szoba
81 m2
Eladó téglalakás
Eladó téglalakás

Putnok

8.8 M Ft
2 szoba
52 m2
Eladó téglalakás
Eladó téglalakás

Miskolc

54.45 M Ft
2 szoba
51 m2
Eladó téglalakás
Eladó téglalakás

Miskolc

75.982 M Ft
3 szoba
78 m2
Eladó téglalakás
Eladó téglalakás

Miskolc

49.9 M Ft
3 szoba
122 m2
Eladó téglalakás
Eladó téglalakás

Tiszaújváros

54.6 M Ft
2 szoba
80 m2
Eladó téglalakás
Eladó téglalakás

Tiszaújváros, Verebély utca

23.9 M Ft
1 + 1 szoba
39 m2
Eladó téglalakás
Eladó téglalakás

Miskolc

49 M Ft
2 szoba
51 m2
Eladó téglalakás
Eladó téglalakás

Miskolc

138 M Ft
5 szoba
110 m2
Eladó téglalakás
Eladó téglalakás

Miskolc

64.99 M Ft
4 szoba
119 m2
Eladó téglalakás
Eladó téglalakás

Miskolc, Új Diósgyőr, Torontáli utca

19.99 M Ft
2 szoba
49 m2
Eladó téglalakás
Eladó téglalakás

Sárospatak, Tompa Mihály utca

23.9 M Ft
2 szoba
62 m2
Eladó téglalakás
Eladó téglalakás

Miskolc

60.396 M Ft
2 szoba
63 m2
Eladó téglalakás
Eladó téglalakás

Ózd

9.99 M Ft
2 szoba
58 m2

Falusi CSOK ingatlanok

Eladó családi ház
Eladó családi ház

Balatonfenyves

430 M Ft
4 szoba
274 m2
Eladó családi ház
Eladó családi ház

Márianosztra

85 M Ft
6 szoba
198 m2
Eladó családi ház
Eladó családi ház

Hosszúpereszteg

25 M Ft
3 szoba
63 m2
Eladó családi ház
Eladó családi ház

Badacsonytomaj

149 M Ft
6 szoba
195 m2
Eladó családi ház
Eladó családi ház

Nyékládháza

45 M Ft
3 szoba
90 m2
Eladó családi ház
Eladó családi ház

Bag

16.9 M Ft
6 szoba
160 m2
Eladó családi ház
Eladó családi ház

Mikebuda

68.5 M Ft
2 szoba
90 m2
Eladó családi ház
Eladó családi ház

Balatonkenese

88 M Ft
4 szoba
80 m2