Eladó téglalakás
Miskolc

+ 8 kép 1/11
26 500 000 Ft26.5 M Ft 630 952 Ft/m2
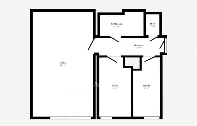
1 + 1 szoba
42 m2
építés éve:1978

Részletes adatok

Állapot: Átlagos
Fűtés: Gázkonvektor
Energetikai besorolás: Nem adta meg a hirdető
Zenga Premier

Friss hirdetések, amiket nem találsz meg más ingatlankereső portálon.

Fedezd fel elsőként a Zenga Premier címkés eladó ingatlanokat!

További részletek a zenga.hu-n

Az OTP Bank lakáshitel ajánlataFizetett hirdetés

+36 70 201
Kégl Zsolt
referens

Érdekel az OTP Bank kedvezményes lakáshitel ajánlata? *

* A kérdésre „Igen” válasz bejelölése esetén, az „Üzenet küldése” gombra kattintva kijelentem, hogy az OTP Bank Nyrt. Adatkezelési tájékoztatójának tartalmát megismertem és tudomásul vettem.

Eladó téglalakás leírása

KIVÉTELES AJÁNLAT Miskolcon: TÖKÉLETES ÁLLAPOTÚ, KLÍMÁS OTTHON A STADION UTCÁBAN!
Miskolc-Diósgyőr/Bulgárföld legkeresettebb részén, a Stadion utcában kínálom eladásra a saját, azonnal költözhető lakásomat! Ez a 42 nm-es, másfél szobás, tégla építésű lakás egy 4 szintes társasház negyedik emeletén helyezkedik el, garantálva a csendet, a jó kilátást és a kellemesen világos tereket. A lakás nagyon szép, igényes, felújított állapotban van, gyakorlatilag kulcsrakész, így Önnek már csak be kell költöznie. A nyári hőségben sem kell aggódnia, a beépített, modern hűtő-fűtő klíma biztosítja a mindig kellemes hőmérsékletet. A 42 nm-en egy jól élhető, másfél szobás elrendezés került kialakításra, ami optimális térkihasználást eredményez.
A környék infrastruktúrája kiváló, hiszen minden fontos szolgáltatás gyalogosan pár perc alatt elérhető: boltok (Penny, Coop), gyógyszertár, orvosi rendelő, posta, és számos vendéglátóhely. Kiváló tömegközlekedési kapcsolatok (villamos és buszmegállók) teszik könnyűvé a városba való ingázást. A DVTK Stadion és az Arena sportkomplexum közelsége, valamint a Bükk-hegység közeli fekvése pedig remek lehetőséget biztosít a sportra, túrázásra és a kikapcsolódásra.
Mérete és állapota miatt ez az ingatlan ideális indító otthonnak első lakás vásárlóknak, de tökéletes választás fiatal pároknak és egyedülállóknak is. Emellett a Stadion közelsége és a kiváló lokáció miatt magas bérbeadhatósági potenciállal is rendelkezik, így befektetőknek is bátran ajánlom. Az ingatlan tehermentes, az adásvételi szerződés aláírását követően rövid határidővel birtokba vehető.
Ne habozzon, mert az ilyen paraméterekkel rendelkező lakások ritkán maradnak sokáig a piacon! Keressen engem bizalommal a megadott elérhetőségeken, hogy minden részletet megbeszélhessünk, és egyeztessük a személyes megtekintés időpontját! Várom hívását!Parkolás díjmentesen megoldható az épület előtt.
Központi helyen fekszik az ingatlan. Iskola, óvoda, bolt, tömegközlekedés, autópálya 5 percen belül elérhető.
OTP Banki hátterünknek köszönhetően finanszírozási igényekben (pl. Otthon Start Hitelprogram , Babaváró, Falusi CSOK, CSOK Plusz, Lakáshitel, Személyi kölcsön stb.), illetve biztosítások tekintetében is díjmentesen, soron kívüli ügyintézéssel segítem ügyfeleim! Referenciaszám: M315446

Hirdetés feltöltve: 2025. 10. 17. Utoljára módosítva: 2025. 10. 18.

2 szobás téglalakások ára Miskolcon

Ebből az összehasonlításból megtudhatod, hogyan viszonyul a lakás ára a környékbeli téglalakások átlagos árához. Ez nem azt jelenti, hogy ennyivel olcsóbb vagy drágább, mint amennyit a lakás ér, hanem hogy ennyivel tér el a környékbeli átlagtól.

Ennek a m² ára
Miskolc m² ár
631 e Ft
599 e Ft -5%
Ennek az ára
Miskolc átlagár
26.5 M Ft m Ft
31.9 m Ft 17%

Az ingatlan elhelyezkedése

Cím: Miskolc

Eladó téglalakások a környékről

Eladó téglalakás
Eladó téglalakás

Borsodnádasd

7.9 M Ft
4 szoba
113 m2
Eladó téglalakás
Eladó téglalakás

Miskolc

41.9 M Ft
3 szoba
81 m2
Eladó téglalakás
Eladó téglalakás

Miskolc

49 M Ft
2 szoba
51 m2
Eladó téglalakás
Eladó téglalakás

Tiszaújváros

60.06 M Ft
2 szoba
68 m2
Eladó téglalakás
Eladó téglalakás

Miskolc

24.9 M Ft
2 szoba
52 m2
Eladó téglalakás
Eladó téglalakás

Miskolc

59 M Ft
3 szoba
60 m2
Eladó téglalakás
Eladó téglalakás

Miskolc

49 M Ft
2 szoba
51 m2
Eladó téglalakás
Eladó téglalakás

Putnok

13.6 M Ft
3 szoba
123 m2
Eladó téglalakás
Eladó téglalakás

Miskolc

49 M Ft
2 szoba
51 m2
Eladó téglalakás
Eladó téglalakás

Ózd

9.99 M Ft
2 szoba
58 m2
Eladó téglalakás
Eladó téglalakás

Miskolc

11.5 M Ft
2 szoba
59 m2
Eladó téglalakás
Eladó téglalakás

Miskolc

24.95 M Ft
2 szoba
55 m2
Eladó téglalakás
Eladó téglalakás

Tiszaújváros, Verebély utca

23.5 M Ft
1 + 1 szoba
39 m2
Eladó téglalakás
Eladó téglalakás

Miskolc

59 M Ft
3 szoba
60 m2
Eladó téglalakás
Eladó téglalakás

Miskolc

42.99 M Ft
3 szoba
81 m2
Eladó téglalakás
Eladó téglalakás

Miskolc

49.9 M Ft
3 szoba
122 m2
Eladó téglalakás
Eladó téglalakás

Miskolc

64 M Ft
3 szoba
60 m2
Eladó téglalakás
Eladó téglalakás

Miskolc

59.99 M Ft
3 szoba
83 m2
Eladó téglalakás
Eladó téglalakás

Miskolc

59.9 M Ft
2 + 3 szoba
97 m2
Eladó téglalakás
Eladó téglalakás

Miskolc

24.9 M Ft
2 szoba
52 m2
Eladó téglalakás
Eladó téglalakás

Ózd

10.4 M Ft
2 szoba
48 m2
Eladó téglalakás
Eladó téglalakás

Miskolc

24.9 M Ft
2 szoba
52 m2
Eladó téglalakás
Eladó téglalakás

Miskolc

49 M Ft
2 szoba
51 m2
Eladó téglalakás
Eladó téglalakás

Miskolc

59 M Ft
3 szoba
60 m2

Falusi CSOK ingatlanok

Eladó családi ház
Eladó családi ház

Tés

34.9 M Ft
2 szoba
60 m2
Eladó családi ház
Eladó családi ház

Rédics

49.9 M Ft
3 szoba
107 m2
Eladó családi ház
Eladó családi ház

Hernádnémeti

19.9 M Ft
2 szoba
62 m2
Eladó családi ház
Eladó családi ház

Kislőd

44.9 M Ft
3 szoba
115 m2
Eladó családi ház
Eladó családi ház

Liszó

35 M Ft
2 szoba
87 m2
Eladó családi ház
Eladó családi ház

Tök

125.4 M Ft
4 szoba
135 m2
Eladó családi ház
Eladó családi ház

Kislőd

35.9 M Ft
4 szoba
148 m2
Eladó családi ház
Eladó családi ház

Muhi, Kossuth Lajos utca 5

6.499 M Ft
3 szoba
60 m2