Eladó téglalakás
Miskolc, 4. emelet

+ 11 kép 1/14
37 500 000 Ft37.5 M Ft 892 857 Ft/m2
1 + 2 szoba
42 m2
4. emelet
építés éve:2003

Részletes adatok

Fűtés: Gázkazán
Energetikai besorolás: Nem adta meg a hirdető

Az OTP Bank lakáshitel ajánlataFizetett hirdetés

+36 20 449
Nagy István György
OTP Ingatlanpont Miskolc Szemere

Érdekel az OTP Bank kedvezményes lakáshitel ajánlata? *

* A kérdésre „Igen” válasz bejelölése esetén, az „Üzenet küldése” gombra kattintva kijelentem, hogy az OTP Bank Nyrt. Adatkezelési tájékoztatójának tartalmát megismertem és tudomásul vettem.

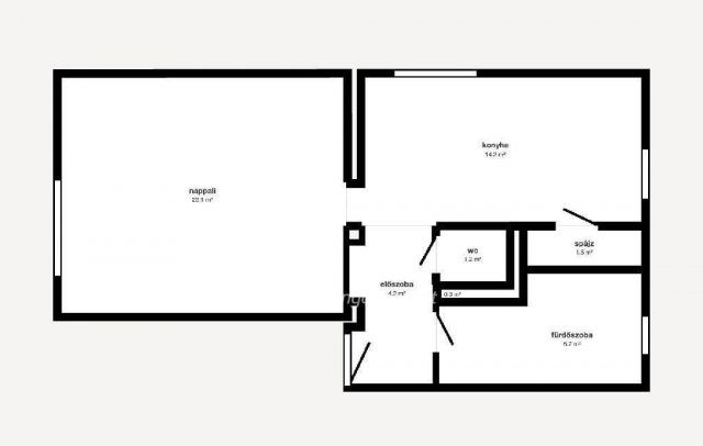
Eladó téglalakás leírása

Eladó igényes, galériás lakás Miskolcon, zöldövezetben
Miskolcon, a LÁEV villamosmegállótól mindössze pár percre, zöld környezetben kínálok eladásra egy egyedi kivitelezésű, költözhető állapotú, galériás lakást.
A hivatalos alapterület 42 nm, amelyhez a tetőtér beépítésével további kb. 20 nm nyerhető, így a lakás összesen két külön nyíló hálószobával bővült.

Elrendezés:
alsó szinten: napfényes nappali, tágas konyha-étkező egyedi beépített bútorral, kamra, fürdőszoba káddal és két mosdóval, külön WC, előszoba
felső szinten: két hálószoba (gyerek-, dolgozó- vagy gardróbszobának is ideális)

Főbb jellemzők:
Műanyag nyílászárók redőnnyel, tetőtéri Velux fa ablakok
Gáz-cirkó fűtés, alacsony rezsiköltség
Ingyenes parkolás a ház körül, garázsvásárlás/bérlés a közelben megoldható
Kiváló infrastruktúra: iskola, óvoda, bolt, gyógyszertár, posta, busz- és villamosmegálló pár perc sétára

A lakás a 4. emeleten található, fiataloknak, családoknak vagy akár befektetésre is remek választás.

OTP Banki hátterünknek köszönhetően finanszírozási igényekben (pl. Otthon Start Hitelprogram , Babaváró, Falusi CSOK, CSOK Plusz, Lakáshitel, Személyi kölcsön stb.), illetve biztosítások tekintetében is díjmentesen, soron kívüli ügyintézéssel segítem ügyfeleim! Referenciaszám: M313526

Hirdetés feltöltve: 2025. 10. 10. Utoljára módosítva: 2025. 10. 10.

3 szobás téglalakások ára Miskolcon

Ebből az összehasonlításból megtudhatod, hogyan viszonyul a lakás ára a környékbeli téglalakások átlagos árához. Ez nem azt jelenti, hogy ennyivel olcsóbb vagy drágább, mint amennyit a lakás ér, hanem hogy ennyivel tér el a környékbeli átlagtól.

Ennek a m² ára
Miskolc m² ár
893 e Ft
714 e Ft -25%
Ennek az ára
Miskolc átlagár
37.5 M Ft m Ft
54.9 m Ft 32%

Az ingatlan elhelyezkedése

Cím: Miskolc, 4. emelet

Eladó téglalakások a környékről

Eladó téglalakás
Eladó téglalakás

Ózd

9.99 M Ft
2 szoba
58 m2
Eladó téglalakás
Eladó téglalakás

Miskolc

29.5 M Ft
2 szoba
65 m2
Eladó téglalakás
Eladó téglalakás

Miskolc

49 M Ft
2 szoba
51 m2
Eladó téglalakás
Eladó téglalakás

Miskolc

41.657 M Ft
2 szoba
51 m2
Eladó téglalakás
Eladó téglalakás

Miskolc

11.5 M Ft
2 szoba
59 m2
Eladó téglalakás
Eladó téglalakás

Miskolc

41.9 M Ft
3 szoba
81 m2
Eladó téglalakás
Eladó téglalakás

Miskolc

49 M Ft
2 szoba
51 m2
Eladó téglalakás
Eladó téglalakás

Miskolc

41.9 M Ft
3 szoba
81 m2
Eladó téglalakás
Eladó téglalakás

Miskolc

41.9 M Ft
3 szoba
81 m2
Eladó téglalakás
Eladó téglalakás

Sárospatak, Tompa Mihály utca

23.9 M Ft
2 szoba
62 m2
Eladó téglalakás
Eladó téglalakás

Miskolc

39.9 M Ft
2 szoba
77 m2
Eladó téglalakás
Eladó téglalakás

Miskolc

49 M Ft
2 szoba
51 m2
Eladó téglalakás
Eladó téglalakás

Tiszaújváros, Verebély utca

23.5 M Ft
1 + 1 szoba
39 m2
Eladó téglalakás
Eladó téglalakás

Miskolc, Új Diósgyőr, Torontáli utca

19.99 M Ft
2 szoba
49 m2
Eladó téglalakás
Eladó téglalakás

Miskolc

59 M Ft
3 szoba
60 m2
Eladó téglalakás
Eladó téglalakás

Miskolc

24.9 M Ft
2 szoba
52 m2
Eladó téglalakás
Eladó téglalakás

Miskolc

69.9 M Ft
3 + 2 szoba
105 m2
Eladó téglalakás
Eladó téglalakás

Kazincbarcika

18.8 M Ft
1 + 2 szoba
50 m2
Eladó téglalakás
Eladó téglalakás

Miskolc

69.9 M Ft
3 + 2 szoba
105 m2
Eladó téglalakás
Eladó téglalakás

Putnok

13.6 M Ft
3 szoba
123 m2
Eladó téglalakás
Eladó téglalakás

Miskolc

59 M Ft
3 szoba
60 m2
Eladó téglalakás
Eladó téglalakás

Miskolc

49 M Ft
2 szoba
51 m2
Eladó téglalakás
Eladó téglalakás

Miskolc

39 M Ft
2 szoba
65 m2
Eladó téglalakás
Eladó téglalakás

Miskolc

24.95 M Ft
2 szoba
55 m2

Falusi CSOK ingatlanok

Eladó családi ház
Eladó családi ház

Cece

23.5 M Ft
2 szoba
56 m2
Eladó családi ház
Eladó családi ház

Buzsák

16.9 M Ft
4 szoba
100 m2
Eladó családi ház
Eladó családi ház

Zsámbok, Szent László utca

38 M Ft
2 szoba
75 m2
Eladó családi ház
Eladó családi ház

Szalánta, Hunyadi

41.9 M Ft
3 + 1 szoba
120 m2
Eladó családi ház
Eladó családi ház

Galgagyörk

46.9 M Ft
4 szoba
105 m2
Eladó családi ház
Eladó családi ház

Tiszaalpár

29 M Ft
4 szoba
132 m2
Eladó családi ház
Eladó családi ház

Kutas

14.6 M Ft
3 szoba
65 m2
Eladó családi ház
Eladó családi ház

Tápióbicske

37.5 M Ft
2 szoba
70 m2