Eladó téglalakás
Miskolc, 3. emelet

+ 13 kép 1/16
57 500 000 Ft57.5 M Ft 727 848 Ft/m2
3 szoba
79 m2
3. emelet
építés éve:1970

Részletes adatok

Állapot: Felújított
Fűtés: Elektromos
Energetikai besorolás: Nem adta meg a hirdető

Az OTP Bank lakáshitel ajánlataFizetett hirdetés

+36 20 491
Pucsok Hajnalka
OTP Ingatlanpont Miskolc Szemere

Érdekel az OTP Bank kedvezményes lakáshitel ajánlata? *

* A kérdésre „Igen” válasz bejelölése esetén, az „Üzenet küldése” gombra kattintva kijelentem, hogy az OTP Bank Nyrt. Adatkezelési tájékoztatójának tartalmát megismertem és tudomásul vettem.

Eladó téglalakás leírása

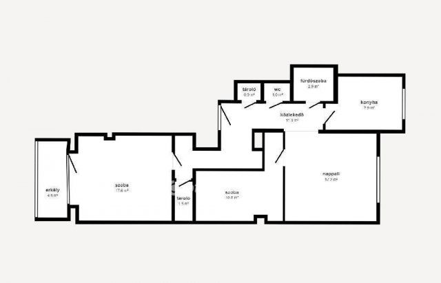
Miskolc belvárosban, a Görgey Artúr utcában csendes, tégla építésű társasház 3. emeletén eladó 79 m2-es, felújított lakás. Az ingatlan 2 külön nyíló szobával + tágas nappalival rendelkezik. A hálószobából nyíló erkély a csendes belső udvarra néz.

Főbb jellemzők:

Alapterület: 79 m2
tégla építésű társasház, 3. emelet,
2 szoba + nappali, világos, tágas terek
Felújított állapot: új burkolatok, modern konyha és fürdőszoba
Csendes udvarra néző erkély a pihenéshez
Fűtés: elektromos, így könnyen szabályozható
Alacsony fenntartási költségek
Kiváló közlekedés: busz, villamos, boltok, iskolák, egyetem mind könnyen elérhető távolságra
Az ingatlan a képeken látható állapotban legtöbb bútorral, gépesítve eladó. A lakás rövid időn belül költözhető, ideális választás családoknak, pároknak, vagy akár befektetőknek is. Ne hagyja ki ezt a ritka lehetőséget Miskolc belvárosában!

Amennyiben az ingatlan felkeltette az érdeklődését, hívjon bizalommal és tekintsük meg együtt akár hétvégén is! OTP Banki hátterünknek köszönhetően finanszírozási igényekben (pl. Babaváró, CSOK, Felújítási hitel, stb.) is állunk ügyfeleink rendelkezésére. Az ingatlan előre egyeztetett időpontban megtekinthető, megbízható ügyvédi közreműködést, szerződéskötéshez irodai hátteret biztosítunk. Referencia szám: M308409
ÉRDEKLŐDNI: PUCSOK HAJNALKA 06204911723

Referencia szám: M308409

Hirdetés feltöltve: 2025. 10. 09. Utoljára módosítva: 2025. 10. 09.

3 szobás téglalakások ára Miskolcon

Ebből az összehasonlításból megtudhatod, hogyan viszonyul a lakás ára a környékbeli téglalakások átlagos árához. Ez nem azt jelenti, hogy ennyivel olcsóbb vagy drágább, mint amennyit a lakás ér, hanem hogy ennyivel tér el a környékbeli átlagtól.

Ennek a m² ára
Miskolc m² ár
728 e Ft
714 e Ft -2%
Ennek az ára
Miskolc átlagár
57.5 M Ft m Ft
54.9 m Ft -5%

Az ingatlan elhelyezkedése

Cím: Miskolc, 3. emelet

Eladó téglalakások a környékről

Eladó téglalakás
Eladó téglalakás

Miskolc

69.9 M Ft
3 + 2 szoba
105 m2
Eladó téglalakás
Eladó téglalakás

Putnok

13.6 M Ft
3 szoba
123 m2
Eladó téglalakás
Eladó téglalakás

Ózd

4.99 M Ft
2 szoba
55 m2
Eladó téglalakás
Eladó téglalakás

Miskolc

29.5 M Ft
2 szoba
65 m2
Eladó téglalakás
Eladó téglalakás

Miskolc

25 M Ft
2 + 1 szoba
55 m2
Eladó téglalakás
Eladó téglalakás

Miskolc

39.9 M Ft
2 szoba
77 m2
Eladó téglalakás
Eladó téglalakás

Miskolc

24.9 M Ft
2 szoba
52 m2
Eladó téglalakás
Eladó téglalakás

Kazincbarcika

18.8 M Ft
1 + 2 szoba
50 m2
Eladó téglalakás
Eladó téglalakás

Miskolc

56.88 M Ft
3 szoba
76 m2
Eladó téglalakás
Eladó téglalakás

Ózd

10.5 M Ft
2 szoba
53 m2
Eladó téglalakás
Eladó téglalakás

Miskolc

49.9 M Ft
3 szoba
122 m2
Eladó téglalakás
Eladó téglalakás

Miskolc, Új Diósgyőr, Torontáli utca

19.99 M Ft
2 szoba
49 m2
Eladó téglalakás
Eladó téglalakás

Miskolc

59 M Ft
3 szoba
60 m2
Eladó téglalakás
Eladó téglalakás

Tiszaújváros, Verebély utca

23.5 M Ft
1 + 1 szoba
39 m2
Eladó téglalakás
Eladó téglalakás

Miskolc

29.5 M Ft
2 szoba
65 m2
Eladó téglalakás
Eladó téglalakás

Ózd

10.4 M Ft
2 szoba
48 m2
Eladó téglalakás
Eladó téglalakás

Miskolc

59.99 M Ft
3 szoba
83 m2
Eladó téglalakás
Eladó téglalakás

Miskolc

41.9 M Ft
3 szoba
81 m2
Eladó téglalakás
Eladó téglalakás

Miskolc

39 M Ft
2 szoba
65 m2
Eladó téglalakás
Eladó téglalakás

Miskolc

138 M Ft
4 szoba
110 m2
Eladó téglalakás
Eladó téglalakás

Miskolc

24.95 M Ft
2 szoba
55 m2
Eladó téglalakás
Eladó téglalakás

Miskolc

11.5 M Ft
2 szoba
59 m2
Eladó téglalakás
Eladó téglalakás

Miskolc

49.9 M Ft
3 szoba
122 m2
Eladó téglalakás
Eladó téglalakás

Miskolc

59 M Ft
3 szoba
60 m2

Falusi CSOK ingatlanok

Eladó családi ház
Eladó családi ház

Szigetbecse

99 M Ft
3 szoba
86 m2
Eladó családi ház
Eladó családi ház

Letenye

31.99 M Ft
3 szoba
105 m2
Eladó családi ház
Eladó családi ház

Pilisszentkereszt

139 M Ft
5 szoba
220 m2
Eladó családi ház
Eladó családi ház

Becsehely

18 M Ft
4 szoba
134 m2
Eladó családi ház
Eladó családi ház

Besnyő

110 M Ft
6 szoba
189 m2
Eladó téglalakás
Eladó téglalakás

Balatonakali

110 M Ft
4 szoba
145 m2
Eladó családi ház
Eladó családi ház

Magyarszék

89.9 M Ft
5 szoba
130 m2
Eladó családi ház
Eladó családi ház

Letenye

27.9 M Ft
3 szoba
81 m2