Eladó téglalakás
Miskolc, 1. emelet

1/1
34 900 000 Ft34.9 M Ft 623 214 Ft/m2
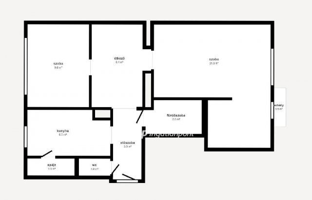
2 szoba
56 m2
1. emelet
építés éve:1980

Részletes adatok

Állapot: Átlagos
Fűtés: Gázkonvektor
Energetikai besorolás: Nem adta meg a hirdető
Zenga Premier

Friss hirdetések, amiket nem találsz meg más ingatlankereső portálon.

Fedezd fel elsőként a Zenga Premier címkés eladó ingatlanokat!

További részletek a zenga.hu-n

Az OTP Bank lakáshitel ajánlataFizetett hirdetés

+36 20 361
Spéth Gábor György
referens

Érdekel az OTP Bank kedvezményes lakáshitel ajánlata? *

* A kérdésre „Igen” válasz bejelölése esetén, az „Üzenet küldése” gombra kattintva kijelentem, hogy az OTP Bank Nyrt. Adatkezelési tájékoztatójának tartalmát megismertem és tudomásul vettem.

Eladó téglalakás leírása

Eladó Komlóstető központi részén a Szeder utcában egy 1.emeleti jó állapotú 2 szobás 56 nm-es lakás. Az ingatlant 2018-ban teljeskörűen felújították. HI-SEC bejárati ajtó, valamint új bejárati ajtók kerültek beszerelésre, műanyag, redőnnyel felszerelt nyílászárókkal egyetemben. A hideg-, valamint melegburkolatok cseréje is megtörtént. A szobákban laminált padló a konyhában járólap található. A fűtésről korszerű gázkonvektorok-, valamint a nappaliban egy hűtű-fűtő inverteres klíma gondoskodik, míg a melegvizet villanybojler biztosítja. Az ingatlan, jó elosztású, buszmegálló, bolt, iskola, óvoda, játszótér mind pár perc sétára találhatók. Egyedülállóknak, valamint családosoknak egyaránt ajánlom, akik Miskolc egyik legnépszerűbb, nyugodt, zöldövezeti részén szeretnének élni, és mégis elérhető távolságban a belvároshoz. Az ingatlan megvásárolható az Otthon Start 3%-os hitellel is. Banki hátterünknek köszönhetően finanszírozási kérdésekben is segítjük ügyfeleinket. Igény esetén ügyvédi hátteret biztosítunk. Hívjon és tekintsük meg együtt akár hétvégén is! Hívása során hivatkozzon az M314719-es referenciaszámra.

Hirdetés feltöltve: 2025. 10. 08. Utoljára módosítva: 2025. 10. 08.

2 szobás téglalakások ára Miskolcon

Ebből az összehasonlításból megtudhatod, hogyan viszonyul a lakás ára a környékbeli téglalakások átlagos árához. Ez nem azt jelenti, hogy ennyivel olcsóbb vagy drágább, mint amennyit a lakás ér, hanem hogy ennyivel tér el a környékbeli átlagtól.

Ennek a m² ára
Miskolc m² ár
623 e Ft
567 e Ft -10%
Ennek az ára
Miskolc átlagár
34.9 M Ft m Ft
68.9 m Ft 49%

Az ingatlan elhelyezkedése

Cím: Miskolc, 1. emelet

Eladó téglalakások a környékről

Eladó téglalakás
Eladó téglalakás

Miskolc

79.4 M Ft
3 + 2 szoba
116 m2
Eladó téglalakás
Eladó téglalakás

Miskolc

29.5 M Ft
2 szoba
65 m2
Eladó téglalakás
Eladó téglalakás

Ózd

10.4 M Ft
2 szoba
48 m2
Eladó téglalakás
Eladó téglalakás

Miskolc

29.5 M Ft
2 szoba
65 m2
Eladó téglalakás
Eladó téglalakás

Miskolc

41.9 M Ft
3 szoba
81 m2
Eladó téglalakás
Eladó téglalakás

Miskolc, Új Diósgyőr, Torontáli utca

19.99 M Ft
2 szoba
49 m2
Eladó téglalakás
Eladó téglalakás

Borsodnádasd

7.9 M Ft
4 szoba
113 m2
Eladó téglalakás
Eladó téglalakás

Miskolc

64 M Ft
3 szoba
60 m2
Eladó téglalakás
Eladó téglalakás

Miskolc

59 M Ft
3 szoba
60 m2
Eladó téglalakás
Eladó téglalakás

Miskolc, Új Diósgyőr, Torontáli utca

19.99 M Ft
2 szoba
49 m2
Eladó téglalakás
Eladó téglalakás

Miskolc

69.9 M Ft
3 + 2 szoba
105 m2
Eladó téglalakás
Eladó téglalakás

Miskolc

39 M Ft
2 szoba
65 m2
Eladó téglalakás
Eladó téglalakás

Kazincbarcika

18.8 M Ft
1 + 2 szoba
50 m2
Eladó téglalakás
Eladó téglalakás

Miskolc

59 M Ft
3 szoba
60 m2
Eladó téglalakás
Eladó téglalakás

Miskolc

69.9 M Ft
3 + 2 szoba
105 m2
Eladó téglalakás
Eladó téglalakás

Sárospatak, Tompa Mihály utca

23.9 M Ft
2 szoba
62 m2
Eladó téglalakás
Eladó téglalakás

Miskolc

49 M Ft
2 szoba
51 m2
Eladó téglalakás
Eladó téglalakás

Miskolc

138 M Ft
4 szoba
110 m2
Eladó téglalakás
Eladó téglalakás

Miskolc

49 M Ft
2 szoba
51 m2
Eladó téglalakás
Eladó téglalakás

Tiszaújváros

60.06 M Ft
2 szoba
68 m2
Eladó téglalakás
Eladó téglalakás

Miskolc

24.95 M Ft
2 szoba
55 m2
Eladó téglalakás
Eladó téglalakás

Miskolc

39.9 M Ft
2 szoba
77 m2
Eladó téglalakás
Eladó téglalakás

Miskolc

138 M Ft
4 szoba
110 m2
Eladó téglalakás
Eladó téglalakás

Miskolc

69.9 M Ft
3 + 2 szoba
105 m2

Falusi CSOK ingatlanok

Eladó családi ház
Eladó családi ház

Szentistván

31 M Ft
3 szoba
140 m2
Eladó családi ház
Eladó családi ház

Pilisszentkereszt

139 M Ft
5 szoba
220 m2
Eladó családi ház
Eladó családi ház

Törökkoppány

20.9 M Ft
2 szoba
80 m2
Eladó családi ház
Eladó családi ház

Törtel

39 M Ft
1 + 1 szoba
118 m2
Eladó téglalakás
Eladó téglalakás

Hegyeshalom

35 M Ft
43 m2
Eladó családi ház
Eladó családi ház

Tihany

210 M Ft
3 szoba
112 m2
Eladó családi ház
Eladó családi ház

Andornaktálya

133 M Ft
4 szoba
317 m2
Eladó családi ház
Eladó családi ház

Kállósemjén

18.5 M Ft
3 szoba
78 m2