Eladó téglalakás
Miskolc

1/1
23 900 000 Ft23.9 M Ft 682 857 Ft/m2
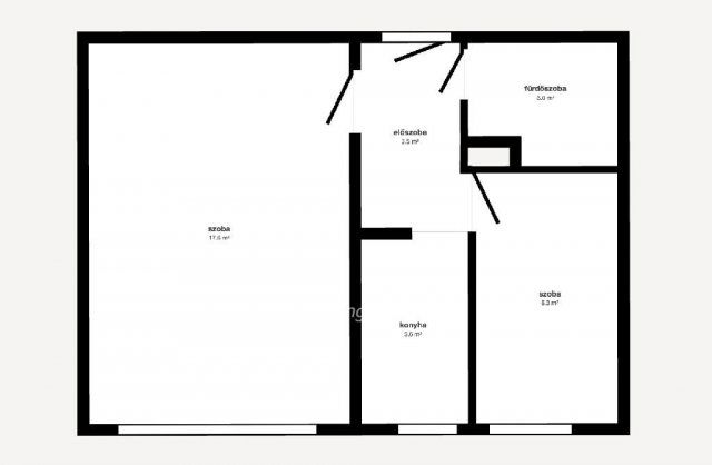
1 + 1 szoba
35 m2
építés éve:1980

Részletes adatok

Állapot: Átlagos
Fűtés: Házközponti egyedi méréssel
Energetikai besorolás: Nem adta meg a hirdető
Zenga Premier

Friss hirdetések, amiket nem találsz meg más ingatlankereső portálon.

Fedezd fel elsőként a Zenga Premier címkés eladó ingatlanokat!

További részletek a zenga.hu-n

Az OTP Bank lakáshitel ajánlataFizetett hirdetés

+36 20 361
Spéth Gábor György
referens

Érdekel az OTP Bank kedvezményes lakáshitel ajánlata? *

* A kérdésre „Igen” válasz bejelölése esetén, az „Üzenet küldése” gombra kattintva kijelentem, hogy az OTP Bank Nyrt. Adatkezelési tájékoztatójának tartalmát megismertem és tudomásul vettem.

Eladó téglalakás leírása

Befektetők, első lakásvásárlók figyelem!!! Miskolc-Komlóstető zöldövezeti részén, a Szeder utcában egy 1,5 szobás jó állapotú magasföldszinti lakás eladó. Az ingatlanon az elmúlt időszakban az alábbi felújítások történtek: MEGA biztonsági, hő és hangszigetelő ajtó került beépítésre a beltéri ajtókkal egyetemben. A nyílászárók korszerű redőnnyel felszerelt műanyag ablakokra lettek cserélve. Az ingatlan fűtése házközponti egyedi mérővel, míg a melegvízről villanybojler gondoskodik. A felújítások közül a villany-, valamint a vízvezetékek sem maradtak ki. A lakásban jelenleg bérlő lakik, aki a továbbiakban szívesen maradna, így befektetésnek is tökéletesen alkalmas. Az ingatlan központi helyen van, buszmegálló, bolt, iskola, óvoda, játszótér mind pár perc sétára találhatók. Alacsony rezsivel fenntartható lakás, így befektetőknek, első otthonukat vásárlóknak egyaránt kiváló választás. Az ingatlan megfelel az Otthon Start 3%-os hitel feltételeinek. Jöjjön és tekintsük meg együtt, akár hétvégén is!
OTP Banki hátterünknek köszönhetően finanszírozási igényekben (pl. Otthon Start Hitelprogram, Babaváró, Falusi CSOK, CSOK Plusz, Lakáshitel, Személyi kölcsön stb.), illetve biztosítások tekintetében is díjmentesen, soron kívüli ügyintézéssel segítem ügyfeleim! Az adásvételhez igény esetén ügyvédi hátteret biztosítunk. Hívása során hivatkozzon az M314721-es referenciaszámra.

Hirdetés feltöltve: 2025. 10. 08. Utoljára módosítva: 2025. 10. 08.

2 szobás téglalakások ára Miskolcon

Ebből az összehasonlításból megtudhatod, hogyan viszonyul a lakás ára a környékbeli téglalakások átlagos árához. Ez nem azt jelenti, hogy ennyivel olcsóbb vagy drágább, mint amennyit a lakás ér, hanem hogy ennyivel tér el a környékbeli átlagtól.

Ennek a m² ára
Miskolc m² ár
683 e Ft
593 e Ft -15%
Ennek az ára
Miskolc átlagár
23.9 M Ft m Ft
31.4 m Ft 24%

Az ingatlan elhelyezkedése

Cím: Miskolc

Eladó téglalakások a környékről

Eladó téglalakás
Eladó téglalakás

Miskolc

64 M Ft
3 szoba
60 m2
Eladó téglalakás
Eladó téglalakás

Miskolc

49.9 M Ft
3 szoba
122 m2
Eladó téglalakás
Eladó téglalakás

Miskolc

11.5 M Ft
2 szoba
59 m2
Eladó téglalakás
Eladó téglalakás

Miskolc

49 M Ft
2 szoba
51 m2
Eladó téglalakás
Eladó téglalakás

Miskolc

59.99 M Ft
3 szoba
83 m2
Eladó téglalakás
Eladó téglalakás

Miskolc

59 M Ft
3 szoba
60 m2
Eladó téglalakás
Eladó téglalakás

Miskolc

39.9 M Ft
2 szoba
77 m2
Eladó téglalakás
Eladó téglalakás

Ózd

10.5 M Ft
2 szoba
53 m2
Eladó téglalakás
Eladó téglalakás

Miskolc

69.9 M Ft
3 + 2 szoba
105 m2
Eladó téglalakás
Eladó téglalakás

Miskolc

69.9 M Ft
3 + 2 szoba
105 m2
Eladó téglalakás
Eladó téglalakás

Miskolc

11.5 M Ft
2 szoba
59 m2
Eladó téglalakás
Eladó téglalakás

Miskolc

59 M Ft
3 szoba
60 m2
Eladó téglalakás
Eladó téglalakás

Tiszaújváros

60.06 M Ft
2 szoba
68 m2
Eladó téglalakás
Eladó téglalakás

Miskolc

69.9 M Ft
3 + 2 szoba
105 m2
Eladó téglalakás
Eladó téglalakás

Miskolc

41.9 M Ft
3 szoba
81 m2
Eladó téglalakás
Eladó téglalakás

Miskolc

49.9 M Ft
3 szoba
122 m2
Eladó téglalakás
Eladó téglalakás

Miskolc

138 M Ft
4 szoba
110 m2
Eladó téglalakás
Eladó téglalakás

Miskolc

25 M Ft
2 + 1 szoba
55 m2
Eladó téglalakás
Eladó téglalakás

Putnok

13.6 M Ft
3 szoba
123 m2
Eladó téglalakás
Eladó téglalakás

Miskolc

59 M Ft
3 szoba
60 m2
Eladó téglalakás
Eladó téglalakás

Miskolc, Új Diósgyőr, Torontáli utca

19.99 M Ft
2 szoba
49 m2
Eladó téglalakás
Eladó téglalakás

Ózd

4.99 M Ft
2 szoba
55 m2
Eladó téglalakás
Eladó téglalakás

Ózd

9.99 M Ft
2 szoba
58 m2
Eladó téglalakás
Eladó téglalakás

Miskolc

41.657 M Ft
2 szoba
51 m2

Falusi CSOK ingatlanok

Eladó családi ház
Eladó családi ház

Nemesbőd

87 M Ft
5 szoba
120 m2
Eladó családi ház
Eladó családi ház

Magyargencs

21.9 M Ft
2 szoba
60 m2
Eladó családi ház
Eladó családi ház

Mernye

24 M Ft
3 szoba
105 m2
Eladó családi ház
Eladó családi ház

Mezőzombor

13.8 M Ft
2 + 1 szoba
81 m2
Eladó családi ház
Eladó családi ház

Szécsisziget

12.5 M Ft
1 szoba
57 m2
Eladó családi ház
Eladó családi ház

Koppányszántó, Fő u 211

9.9 M Ft
2 szoba
55 m2
Eladó családi ház
Eladó családi ház

Balatonszárszó

56.5 M Ft
3 szoba
60 m2
Eladó családi ház
Eladó családi ház

Fonyód, Liszt Ferenc utca

69 M Ft
4 szoba
95 m2