Eladó téglalakás
Miskolc, 2. emelet

+ 15 kép 1/18
31 500 000 Ft31.5 M Ft 572 727 Ft/m2
2 + 1 szoba
55 m2
2. emelet
építés éve:1980

Részletes adatok

Állapot: Felújítandó
Fűtés: Gázkonvektor
Energetikai besorolás: Nem adta meg a hirdető

Az OTP Bank lakáshitel ajánlataFizetett hirdetés

+36 70 439
dr. Rohács Andrea
OTP IP Miskolc Corvin 1-3

Érdekel az OTP Bank kedvezményes lakáshitel ajánlata? *

* A kérdésre „Igen” válasz bejelölése esetén, az „Üzenet küldése” gombra kattintva kijelentem, hogy az OTP Bank Nyrt. Adatkezelési tájékoztatójának tartalmát megismertem és tudomásul vettem.

Eladó téglalakás leírása

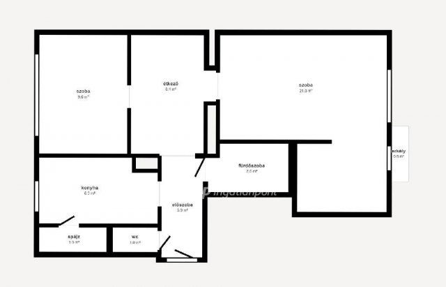
Miskolc egyik kedvelt részén, az Éder György utcában kínálunk eladásra egy 55 nm-es, második emeleti, erkélyes lakást, amely igazi lehetőséget rejt magában mind otthonteremtők, mind befektetők számára. Az ingatlan 2,5 szobával rendelkezik, tágas elrendezésének és jó beosztásának köszönhetően könnyen átalakítható és a saját igényekhez igazítható. A fűtést gázkonvektor biztosítja, az ablakokat redőnyök védik, a lakás állapota felújítandó, így kiváló alapot nyújt egy egyedi, modern otthon kialakításához.

A lakáshoz saját pince és spájz is tartozik, valamint külön helyiségben található a fürdőszoba és a wc, ami növeli a mindennapi kényelmet. Az ár különlegessége, hogy magában foglal egy 14 nm-es, szerelőaknás garázst is, amely közvetlenül a ház előtt található. Ez a lehetőség igazi ritkaságnak számít a környéken, hiszen a biztonságos parkolás és a garázsban tárolható extra hely nagyban megkönnyíti a mindennapokat, és önmagában is jelentős értéket képvisel.

A környék infrastrukturálisan rendkívül jól ellátott. Néhány száz méterre megtalálható villamos- és buszmegálló, a közelben óvoda, bölcsőde és iskola is biztosítja a családok számára a mindennapi praktikumot. A belváros gyalogosan mindössze 10 perc alatt elérhető, így minden fontos szolgáltatás karnyújtásnyira van. A társasház külső homlokzatának felújítása hamarosan elkezdődik, amely tovább növeli az ingatlan értékét és esztétikai vonzerejét.

Ez a lakás ideális választás mindazoknak, akik saját ízlésük szerint szeretnék megvalósítani új otthonukat, vagy hosszú távon értékálló befektetést keresnek.
A lakás a 3%-os Otthon Start hitelre is megvásárolható.
OTP Banki hátterünknek köszönhetően finanszírozási igényekben (pl. Otthon Start Hitelprogram , Babaváró, Falusi CSOK, CSOK Plusz, Lakáshitel, Személyi kölcsön stb.), illetve biztosítások tekintetében is díjmentesen, soron kívüli ügyintézéssel segítem ügyfeleim! Érdeklődés esetén hivatkozzon az M313195 referenciaszámra.

Referencia szám: M313195

Hirdetés feltöltve: 2025. 10. 03. Utoljára módosítva: 2025. 10. 03.

3 szobás téglalakások ára Miskolcon

Ebből az összehasonlításból megtudhatod, hogyan viszonyul a lakás ára a környékbeli téglalakások átlagos árához. Ez nem azt jelenti, hogy ennyivel olcsóbb vagy drágább, mint amennyit a lakás ér, hanem hogy ennyivel tér el a környékbeli átlagtól.

Ennek a m² ára
Miskolc m² ár
573 e Ft
710 e Ft 19%
Ennek az ára
Miskolc átlagár
31.5 M Ft m Ft
54.9 m Ft 43%

Az ingatlan elhelyezkedése

Cím: Miskolc, 2. emelet

Eladó téglalakások a környékről

Eladó téglalakás
Eladó téglalakás

Miskolc

59 M Ft
3 szoba
60 m2
Eladó téglalakás
Eladó téglalakás

Miskolc

11.5 M Ft
2 szoba
59 m2
Eladó téglalakás
Eladó téglalakás

Tiszaújváros

60.06 M Ft
2 szoba
68 m2
Eladó téglalakás
Eladó téglalakás

Kazincbarcika

18.8 M Ft
1 + 2 szoba
50 m2
Eladó téglalakás
Eladó téglalakás

Miskolc, Új Diósgyőr, Torontáli utca

19.99 M Ft
2 szoba
49 m2
Eladó téglalakás
Eladó téglalakás

Miskolc

49.9 M Ft
3 szoba
122 m2
Eladó téglalakás
Eladó téglalakás

Miskolc

64 M Ft
3 szoba
60 m2
Eladó téglalakás
Eladó téglalakás

Ózd

10.4 M Ft
2 szoba
48 m2
Eladó téglalakás
Eladó téglalakás

Sárospatak, Tompa Mihály utca

23.9 M Ft
2 szoba
62 m2
Eladó téglalakás
Eladó téglalakás

Putnok

13.6 M Ft
3 szoba
123 m2
Eladó téglalakás
Eladó téglalakás

Tiszaújváros

54.6 M Ft
2 szoba
80 m2
Eladó téglalakás
Eladó téglalakás

Miskolc

69.9 M Ft
3 + 2 szoba
105 m2
Eladó téglalakás
Eladó téglalakás

Miskolc

64 M Ft
3 szoba
60 m2
Eladó téglalakás
Eladó téglalakás

Miskolc

56.88 M Ft
3 szoba
76 m2
Eladó téglalakás
Eladó téglalakás

Miskolc

41.9 M Ft
3 szoba
81 m2
Eladó téglalakás
Eladó téglalakás

Miskolc

11.5 M Ft
2 szoba
59 m2
Eladó téglalakás
Eladó téglalakás

Miskolc, Új Diósgyőr, Torontáli utca

19.99 M Ft
2 szoba
49 m2
Eladó téglalakás
Eladó téglalakás

Miskolc

29.5 M Ft
2 szoba
65 m2
Eladó téglalakás
Eladó téglalakás

Tiszaújváros, Verebély utca

23.5 M Ft
1 + 1 szoba
39 m2
Eladó téglalakás
Eladó téglalakás

Miskolc

41.657 M Ft
2 szoba
51 m2
Eladó téglalakás
Eladó téglalakás

Miskolc

25 M Ft
2 + 1 szoba
55 m2
Eladó téglalakás
Eladó téglalakás

Miskolc

138 M Ft
4 szoba
110 m2
Eladó téglalakás
Eladó téglalakás

Miskolc

69.9 M Ft
3 + 2 szoba
105 m2
Eladó téglalakás
Eladó téglalakás

Miskolc

41.9 M Ft
3 szoba
81 m2

Falusi CSOK ingatlanok

Eladó ikerház
Eladó ikerház

Besnyő

89.5 M Ft
1 + 3 szoba
93 m2
Eladó családi ház
Eladó családi ház

Enese

72.025 M Ft
4 szoba
75 m2
Eladó családi ház
Eladó családi ház

Ceglédbercel

95 M Ft
6 szoba
220 m2
Eladó téglalakás
Eladó téglalakás

Besnyő

37.9 M Ft
2 szoba
35 m2
Eladó családi ház
Eladó családi ház

Badacsonytomaj

199.8 M Ft
3 szoba
166 m2
Eladó családi ház
Eladó családi ház

Bag

99 M Ft
6 + 1 szoba
194 m2
Eladó családi ház
Eladó családi ház

Bábolna

90.3 M Ft
5 szoba
100 m2
Eladó családi ház
Eladó családi ház

Szőlősgyörök, Arany János utca

89.9 M Ft
3 szoba
130 m2