Aerogate Homes

Eladó téglalakás
Miskolc, 2. emelet

+ 9 kép 1/12
67 700 000 Ft67.7 M Ft 697 938 Ft/m2
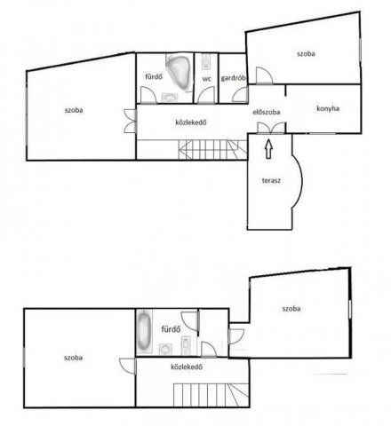
4 szoba
97 m2
2. emelet
építés éve:1995

Részletes adatok

Fűtés: Gázkazán
Energetikai besorolás: Nem adta meg a hirdető

Az OTP Bank lakáshitel ajánlataFizetett hirdetés

+36 30 340
Dandásné Fábián Klaudia
OTP IP Miskolc Corvin 1-3

Érdekel az OTP Bank kedvezményes lakáshitel ajánlata? *

* A kérdésre „Igen” válasz bejelölése esetén, az „Üzenet küldése” gombra kattintva kijelentem, hogy az OTP Bank Nyrt. Adatkezelési tájékoztatójának tartalmát megismertem és tudomásul vettem.

Eladó téglalakás leírása

Kivételes lehetőség Miskolc belvárosában - Ritkaságszámba menő lakás eladó udvari beállóval!

Kedvező áron eladó egy tulajdoni lapon 97nm- es, de a valóságban bruttó 110 m2-es, két szintes, 4 szobás, 2 fürdőszobás, klimatizált lakás Miskolc szívében, egyik igényes, szigetelt, téglaépítésű házában. Központi elhelyezkedése ellenére nagyon csendes lakás. Az ingatlan nem polgári, hanem újabb építésű, így korszerű elrendezéssel és kiváló állapottal rendelkezik.

A lakásban új konyhabútor, központi fűtés, saját pince, valamint egy ritka extrának számító, udvari gépkocsibeálló is a leendő tulajdonos kényelmét szolgálja zárható elektromos kapuval.

Elhelyezkedése páratlan: Miskolc legjobb részén, központi, mégis csendes környezetben található, ahol minden fontos szolgáltatás, bolt, iskola, hivatal, tömegközlekedés pár perc sétával elérhető.

Kiváló befektetési lehetőség is, hiszen a lokáció miatt a lakás könnyen és jól kiadható, ráadásul ezen a környéken rendkívül ritka az eladó ingatlan ? ez tovább növeli az értékét és megtérülését.

Az ingatlan hitelképes, és CSOK (3 vagy több gyermek esetén) is igénybe vehető.

Ne hagyja ki ezt az egyedülálló lehetőséget - ilyen lakás ritkán kerül a piacra!

Referencia szám: M311487

Hirdetés feltöltve: 2025. 10. 02. Utoljára módosítva: 2025. 11. 02.

4 szobás téglalakások ára Miskolcon

Ebből az összehasonlításból megtudhatod, hogyan viszonyul a lakás ára a környékbeli téglalakások átlagos árához. Ez nem azt jelenti, hogy ennyivel olcsóbb vagy drágább, mint amennyit a lakás ér, hanem hogy ennyivel tér el a környékbeli átlagtól.

Ennek a m² ára
Miskolc m² ár
698 e Ft
673 e Ft -4%
Ennek az ára
Miskolc átlagár
67.7 M Ft m Ft
74.1 m Ft 9%

Az ingatlan elhelyezkedése

Cím: Miskolc, 2. emelet

Eladó téglalakások a környékről

Eladó téglalakás
Eladó téglalakás

Miskolc

163.35 M Ft
4 szoba
110 m2
Eladó téglalakás
Eladó téglalakás

Miskolc, Új Diósgyőr, Torontáli utca

19.99 M Ft
2 szoba
49 m2
Eladó téglalakás
Eladó téglalakás

Miskolc

65.34 M Ft
1 + 1 szoba
40 m2
Eladó téglalakás
Eladó téglalakás

Miskolc

9.99 M Ft
2 szoba
59 m2
Eladó téglalakás
Eladó téglalakás

Miskolc

25.4 M Ft
2 szoba
51 m2
Eladó téglalakás
Eladó téglalakás

Ózd

10.4 M Ft
2 szoba
48 m2
Eladó téglalakás
Eladó téglalakás

Miskolc

59.9 M Ft
2 + 3 szoba
97 m2
Eladó téglalakás
Eladó téglalakás

Miskolc

65.34 M Ft
3 szoba
60 m2
Eladó téglalakás
Eladó téglalakás

Miskolc

9.99 M Ft
2 szoba
59 m2
Eladó téglalakás
Eladó téglalakás

Putnok

13.6 M Ft
3 szoba
123 m2
Eladó téglalakás
Eladó téglalakás

Tokaj

114.929 M Ft
2 szoba
73 m2
Eladó téglalakás
Eladó téglalakás

Miskolc

65.34 M Ft
3 szoba
60 m2
Eladó téglalakás
Eladó téglalakás

Miskolc

54.45 M Ft
2 szoba
51 m2
Eladó téglalakás
Eladó téglalakás

Miskolc

41.657 M Ft
2 szoba
51 m2
Eladó téglalakás
Eladó téglalakás

Miskolc

49.9 M Ft
3 szoba
122 m2
Eladó téglalakás
Eladó téglalakás

Sárospatak

13.9 M Ft
3 szoba
89 m2
Eladó téglalakás
Eladó téglalakás

Miskolc, Új Diósgyőr, Torontáli utca

19.99 M Ft
2 szoba
49 m2
Eladó téglalakás
Eladó téglalakás

Borsodnádasd

7.9 M Ft
4 szoba
113 m2
Eladó téglalakás
Eladó téglalakás

Miskolc

25.4 M Ft
2 szoba
51 m2
Eladó téglalakás
Eladó téglalakás

Miskolc

65.34 M Ft
3 szoba
60 m2
Eladó téglalakás
Eladó téglalakás

Miskolc

79.9 M Ft
4 szoba
90 m2
Eladó téglalakás
Eladó téglalakás

Miskolc

123.048 M Ft
2 szoba
102 m2
Eladó téglalakás
Eladó téglalakás

Miskolc

69.7 M Ft
3 szoba
60 m2
Eladó téglalakás
Eladó téglalakás

Miskolc

75.982 M Ft
3 szoba
78 m2

Falusi CSOK ingatlanok

Eladó családi ház
Eladó családi ház

Háromfa, Kossuth

22.4 M Ft
139 m2
Eladó családi ház
Eladó családi ház

Magyarszék

48.5 M Ft
3 + 1 szoba
86 m2
Eladó családi ház
Eladó családi ház

Abaújszántó

19.99 M Ft
3 szoba
84 m2
Eladó családi ház
Eladó családi ház

Mezőszilas

49.9 M Ft
3 + 1 szoba
198 m2
Eladó családi ház
Eladó családi ház

Apaj

59.6 M Ft
29 + 3 szoba
912 m2
Eladó családi ház
Eladó családi ház

Orci

59.9 M Ft
3 szoba
101 m2
Eladó családi ház
Eladó családi ház

Szentkirályszabadja

135.9 M Ft
4 szoba
150 m2
Eladó családi ház
Eladó családi ház

Szabadbattyán

30 M Ft
4 szoba
75 m2