Eladó téglalakás
Makó, földszint

+ 4 kép 1/7
59 900 000 Ft59.9 M Ft 998 333 Ft/m2
2 szoba
60 m2
földszint
építés éve:1980

Részletes adatok

Fűtés: Házközponti egyedi méréssel
Közmű: Villany, Csatorna
Energetikai besorolás: Nem adta meg a hirdető
Zenga Premier

Friss hirdetések, amiket nem találsz meg más ingatlankereső portálon.

Fedezd fel elsőként a Zenga Premier címkés eladó ingatlanokat!

További részletek a zenga.hu-n

Az OTP Bank lakáshitel ajánlataFizetett hirdetés

+36 70 465
Lipták Tibor István
Otthon Centrum Makó

Érdekel az OTP Bank kedvezményes lakáshitel ajánlata? *

* A kérdésre „Igen” válasz bejelölése esetén, az „Üzenet küldése” gombra kattintva kijelentem, hogy az OTP Bank Nyrt. Adatkezelési tájékoztatójának tartalmát megismertem és tudomásul vettem.

Eladó téglalakás leírása

Tisztelt Érdeklődő!
Makón, a Liget Lakóparkban jelenleg is zajlanak azok az átalakítási és felújítási munkálatok, amelyek egy teljesen megújult, modern földszinti lakást fognak eredményezni! Ez azt jelenti, hogy Ön lesz az elsők között, aki birtokba veheti ezt a világos, praktikus elrendezésű otthont – vadonatúj állapotban.
Az ingatlan a Liget utcában, egy zárt lépcsőházas, mindössze 14 lakásos társasházban található. A belváros autóval alig 3 perc, kerékpárral 5 perc, gyalog pedig körülbelül 17 perc alatt megközelíthető, így minden fontos hely könnyen elérhető. Bevásárlási lehetőségek, óvoda, iskola és buszmegálló néhány száz méterre található, ami a mindennapokat igazán kényelmessé teszi.
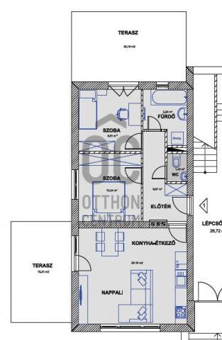
A 60,11 m²-es lakás kialakítása két szobát, egy nappali–konyha–étkező részt, előteret, kádas fürdőszobát és külön WC-t foglal magában. A belső burkolatok megújulnak: a szobákban laminált padló, míg az előtérben és a vizesblokkokban járólap kerül elhelyezésre. A lakáshoz két kertkapcsolatos terasz tartozik – az egyik 15,24 m²-es, a nappali–konyha–étkezőből nyílik, a másik pedig 20,18 m²-es, és a szobából közelíthető meg – így a szabadtéri pihenés egész évben adott lesz.
A lakás bútorozatlanul, beépített gépek nélkül kerül átadásra, de a szükséges kiállások és csatlakozási pontok előre kialakításra kerülnek, így az új tulajdonos könnyedén berendezheti saját ízlése szerint. A teljes áram-, víz- és csatornahálózat új, a gáz nincs bekötve a lakásba. A fűtés házközponti, gázzal üzemelő rendszerrel történik hőfokszabályzós radiátorokon keresztül, amely lakásonként egyedi hőmennyiség-mérőkkel van ellátva, így minden lakó saját fogyasztása után fizet. A melegvizet korszerű, energiahatékony okos bojler szolgáltatja. A lakásban klímaberendezés kiépítése is megtörténik, a műanyag, háromrétegű hőszigetelt nyílászárók pedig a hatékony működést garantálják.
A parkolás az utcán díjmentes, de igény esetén a telekhatáron belül külön költségért saját parkolóhely is vásárolható. A társasház udvarában kerékpártároló áll rendelkezésre.
A munkálatok befejezése után, legkésőbb 2026.05.31-ig a lakás birtokba vehető. Az alaprajzokon feltüntetett négyzetméterek tájékoztató jellegűek, a végső négyzetméterek kisebb mértékben változhatnak.
A részletes műszaki tartalomról és a fizetési ütemezésről irodánkban adunk bővebb tájékoztatást.
Ne maradjon le erről az új otthonról – hívjon most, vagy foglaljon időpontot személyes találkozóra!

Makóról bővebben itt: http://mako.hu/makoi-seta/

Legyen tisztában pénzügyeivel, mielőtt elkötelezi magát! Ebben díjmentesen az Ön rendelkezésére áll bankfüggetlen hitelközvetítőnk.
Vevőinket profi és kedvező díjazású ügyvédi háttérrel is segítjük a szerződéskötés során.

#otthoncentrummako #makoiingatlan #eladolakas #makoeladolakas #ingatlan #otthoncentrum #ingatlanpiac #otthon #hagymatikum #forsale #oc #hitel #ocmako #biztositas #realestate #veledmindenlepesnel #homesweethome #ingatlankozvetites #almokatepitunk #koltozes #felujitottlakas

Hirdetés feltöltve: 2025. 10. 09.

2 szobás téglalakások ára Makón

Ebből az összehasonlításból megtudhatod, hogyan viszonyul a lakás ára a környékbeli téglalakások átlagos árához. Ez nem azt jelenti, hogy ennyivel olcsóbb vagy drágább, mint amennyit a lakás ér, hanem hogy ennyivel tér el a környékbeli átlagtól.

Ennek a m² ára
Makó m² ár
998 e Ft
449 e Ft -122%
Ennek az ára
Makó átlagár
59.9 M Ft m Ft
27.8 m Ft -115%

Az ingatlan elhelyezkedése

Cím: Makó, földszint

Eladó ingatlanok a környékről

Eladó családi ház
Eladó családi ház

Maroslele

92.85 M Ft
1 + 3 szoba
135 m2
Eladó téglalakás
Eladó téglalakás

Kistelek, Kossuth utca

22.5 M Ft
71 m2
Eladó téglalakás
Eladó téglalakás

Makó

52.9 M Ft
2 szoba
63 m2
Eladó téglalakás
Eladó téglalakás

Makó

37 M Ft
2 szoba
57 m2
Eladó téglalakás
Eladó téglalakás

Deszk

44.9 M Ft
2 szoba
66 m2
Eladó téglalakás
Eladó téglalakás

Deszk

44.9 M Ft
3 szoba
66 m2
Eladó téglalakás
Eladó téglalakás

Makó

54.9 M Ft
2 szoba
62 m2
Eladó téglalakás
Eladó téglalakás

Makó, Csanád Vezért

49 M Ft
2 szoba
75 m2
Eladó téglalakás
Eladó téglalakás

Szeged, Tarján lakótelep, Zöldfa utca

34 M Ft
2 szoba
49 m2
Eladó téglalakás
Eladó téglalakás

Makó, Makovecz

39.5 M Ft
2 szoba
47 m2
Eladó téglalakás
Eladó téglalakás

Makó

23 M Ft
2 + 1 szoba
49 m2
Eladó téglalakás
Eladó téglalakás

Makó

23.9 M Ft
1 szoba
34 m2
Eladó téglalakás
Eladó téglalakás

Kistelek, Kossuth utca

58 M Ft
3 szoba
115 m2
Eladó téglalakás
Eladó téglalakás

Szeged

45 M Ft
3 + 1 szoba
100 m2
Eladó téglalakás
Eladó téglalakás

Szeged

79.9 M Ft
2 szoba
63 m2
Eladó téglalakás
Eladó téglalakás

Makó

44.9 M Ft
3 szoba
63 m2
Eladó téglalakás
Eladó téglalakás

Makó

41 M Ft
2 szoba
50 m2
Eladó téglalakás
Eladó téglalakás

Makó

49.9 M Ft
2 szoba
62 m2
Eladó téglalakás
Eladó téglalakás

Szeged

39.9 M Ft
2 szoba
32 m2
Eladó téglalakás
Eladó téglalakás

Makó

49.9 M Ft
4 szoba
82 m2
Eladó téglalakás
Eladó téglalakás

Makó

23.9 M Ft
1 szoba
31 m2
Eladó téglalakás
Eladó téglalakás

Szeged

39.9 M Ft
2 szoba
32 m2
Eladó téglalakás
Eladó téglalakás

Makó

27.9 M Ft
1 szoba
34 m2
Eladó téglalakás
Eladó téglalakás

Szeged

73.9 M Ft
3 szoba
66 m2

Falusi CSOK ingatlanok

Eladó családi ház
Eladó családi ház

Bakonya

48 M Ft
3 szoba
168 m2
Eladó családi ház
Eladó családi ház

Mezőfalva

39 M Ft
3 szoba
77 m2
Eladó családi ház
Eladó családi ház

Besnyő

110 M Ft
6 szoba
189 m2
Eladó családi ház
Eladó családi ház

Kamut

29.9 M Ft
3 szoba
100 m2
Eladó családi ház
Eladó családi ház

Lázi

18.9 M Ft
2 szoba
74 m2
Eladó családi ház
Eladó családi ház

Zsámbok

33 M Ft
2 szoba
80 m2
Eladó téglalakás
Eladó téglalakás

Balatonszemes

91.5 M Ft
2 szoba
60 m2
Eladó családi ház
Eladó családi ház

Kislőd

44.9 M Ft
3 szoba
115 m2