Astora Olive Club House

Eladó téglalakás
Levél, 2. emelet

1/2
35 000 000 Ft35 M Ft 1 000 000 Ft/m2
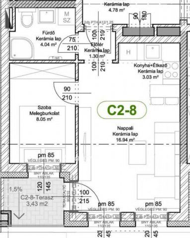
2 szoba
35 m2
2. emelet
építés éve:2025

Részletes adatok

Fűtés: Gázkazán
Energetikai besorolás: Nem adta meg a hirdető

Az OTP Bank lakáshitel ajánlataFizetett hirdetés

+36 20 911
Döbrentei Zsuzsanna Mária
referens

Érdekel az OTP Bank kedvezményes lakáshitel ajánlata? *

* A kérdésre „Igen” válasz bejelölése esetén, az „Üzenet küldése” gombra kattintva kijelentem, hogy az OTP Bank Nyrt. Adatkezelési tájékoztatójának tartalmát megismertem és tudomásul vettem.

Eladó téglalakás leírása

Győr-Moson-Sopron vármegyében, Levélen, modern lakások átgondolt műszaki tartalommal, jó minőségű beépített anyagokkal, új építésű projektben leköthetők! Épületszerkezet: Monolit vasbeton vázszerkezet, falazata: Leiertherm 30 N+F tégla, válaszfalak 10cm-es hanggátló téglából készülnek. Homlokzati hőszigetelés 15 cm vastagságú Austrotherm Dryvit rendszerrel, zárófödém szigetelés AUSTROTHERM AT-N100 rendszer. Nyílászárók: 3 rétegű 5 légkamrás üvegezéssel ellátott. A földszinti lakások - szinte mindegyike - kizárólagos használatú kerttel, az emeleti lakások erkéllyel rendelkeznek. A lakásokhoz tároló, és parkoló igény szerint vásárolható. A fűtésről-melegvízellátásról központi turbó gázkazán gondoskodik, padlófűtéssel egyedi hőmennyiségmérővel. A feltöltött képek csak illusztrációk! Modern megoldásokkal és változatos alaprajzokkal várja Önt is leendő lakása. Nyugodt, zöld környezet,tágas, napfényes lakások-hozzátartozó teraszokkal, kertekkel, több éves tapasztalattal rendelkező kivitelező! Kiemelt bérbeadhatóság, garantált bérleti díj!
Amennyiben további kérdése van forduljon hozzám bizalommal elérhetőségeimen!

Referencia szám: M313668-ZE

Hirdetés feltöltve: 2025. 10. 24. Utoljára módosítva: 2025. 12. 22.

2 szobás téglalakások ára Levélen

Ebből az összehasonlításból megtudhatod, hogyan viszonyul a lakás ára a környékbeli téglalakások átlagos árához. Ez nem azt jelenti, hogy ennyivel olcsóbb vagy drágább, mint amennyit a lakás ér, hanem hogy ennyivel tér el a környékbeli átlagtól.

Ennek a m² ára
Levél m² ár
1000 e Ft
845 e Ft -18%
Ennek az ára
Levél átlagár
35 M Ft m Ft
39.3 m Ft 11%

Az ingatlan elhelyezkedése

Cím: Levél, 2. emelet

Eladó téglalakások a környékről

Eladó téglalakás
Eladó téglalakás

Levél

48.5 M Ft
43 m²
43 m2
Eladó téglalakás
Eladó téglalakás

Győr

38.99 M Ft
2 szoba
43 m2
Eladó téglalakás
Eladó téglalakás

Sopron

105.99 M Ft
5 szoba
122 m2
Eladó téglalakás
Eladó téglalakás

Levél

40.9 M Ft
2 szoba
40 m2
Eladó téglalakás
Eladó téglalakás

Győr

38.99 M Ft
2 szoba
43 m2
Eladó téglalakás
Eladó téglalakás

Levél

44.9 M Ft
43 m²
43 m2
Eladó téglalakás
Eladó téglalakás

Nagycenk

63.9 M Ft
1 + 2 szoba
62 m2
Eladó téglalakás
Eladó téglalakás

Levél

37.3 M Ft
1 + 1 szoba
40 m2
Eladó téglalakás
Eladó téglalakás

Mosonmagyaróvár

31.9 M Ft
2 + 1 szoba
59 m2
Eladó téglalakás
Eladó téglalakás

Levél

34.5 M Ft
1 szoba
31 m2
Eladó téglalakás
Eladó téglalakás

Levél

48.8 M Ft
1 szoba
44 m2
Eladó téglalakás
Eladó téglalakás

Sopron

77 M Ft
4 szoba
143 m2
Eladó téglalakás
Eladó téglalakás

Sopron, Gólya utca

46.9 M Ft
2 szoba
44 m2
Eladó téglalakás
Eladó téglalakás

Levél

41.9 M Ft
1 szoba
41 m2
Eladó téglalakás
Eladó téglalakás

Levél

31.79 M Ft
1 szoba
30 m2
Eladó téglalakás
Eladó téglalakás

Győr

98.5 M Ft
3 szoba
96 m2
Eladó téglalakás
Eladó téglalakás

Levél

40.9 M Ft
2 szoba
39 m2
Eladó téglalakás
Eladó téglalakás

Levél, Napsugár

41.5 M Ft
2 szoba
38 m2
Eladó téglalakás
Eladó téglalakás

Sopron

84.99 M Ft
3 + 1 szoba
56 m2
Eladó téglalakás
Eladó téglalakás

Levél

41 M Ft
2 szoba
39 m2
Eladó téglalakás
Eladó téglalakás

Kapuvár, Erzsébet Királyné

31.598 M Ft
1 szoba
37 m2
Eladó téglalakás
Eladó téglalakás

Levél

31.79 M Ft
1 szoba
30 m2
Eladó téglalakás
Eladó téglalakás

Levél

41.8 M Ft
2 szoba
36 m2
Eladó téglalakás
Eladó téglalakás

Levél

41.8 M Ft
2 szoba
40 m2

Falusi CSOK ingatlanok

Eladó családi ház
Eladó családi ház

Somogygeszti

10.9 M Ft
2 szoba
115 m2
Eladó családi ház
Eladó családi ház

Kenyeri

21.8 M Ft
2 szoba
75 m2
Eladó családi ház
Eladó családi ház

Ceglédbercel

132 M Ft
5 szoba
189 m2
Eladó családi ház
Eladó családi ház

Újkígyós

11.99 M Ft
2 szoba
77 m2
Eladó családi ház
Eladó családi ház

Magyarszék

48.5 M Ft
3 + 1 szoba
86 m2
Eladó családi ház
Eladó családi ház

Kaszaper

14.5 M Ft
3 szoba
63 m2
Eladó családi ház
Eladó családi ház

Kesztölc

129.9 M Ft
8 szoba
210 m2
Eladó családi ház
Eladó családi ház

Enese

82.9 M Ft
4 szoba
90 m2