Astora Art House

Eladó téglalakás
Komló, Ikerház

+ 17 kép 1/20
18 500 000 Ft18.5 M Ft 370 000 Ft/m2
2 szoba
50 m2
Ikerház
építés éve:1960

Részletes adatok

Állapot: Átlagos
Fűtés: Elektromos
Emelet: 2. emelet
Energetikai besorolás: Nem adta meg a hirdető

Az OTP Bank lakáshitel ajánlataFizetett hirdetés

+36 20 938
Vincze László György
OTPIP - Pécs, Rákóczi út 19.

Érdekel az OTP Bank kedvezményes lakáshitel ajánlata? *

* A kérdésre „Igen” válasz bejelölése esetén, az „Üzenet küldése” gombra kattintva kijelentem, hogy az OTP Bank Nyrt. Adatkezelési tájékoztatójának tartalmát megismertem és tudomásul vettem.

Eladó téglalakás leírása

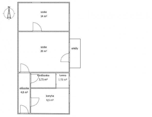
2 szobás 2. emeleti lakás eladó Komlón a Kökönyösben a Vájáriskola utcában.
2 emeletes tégla ház legfelső emeletén van. Csendes környezetben, kellemes szomszédokkal. Átlagos állapotú az összes nyílászárót műanyagra cserélték, redőnnyel. A fűtés gázkészülékkel, hőtárolós kályhával, és cserépkályhával is megoldható. Keleti irányba néz az erkélye utcai kilátással. Parkolni a ház előtt lehet, mindig van szabad hely. Az alagsorban tároló tartozik hozzá, ahová a babakocsit, vagy a kerékpárokat be lehet rakni. Játszótér, óvoda stb. van a közelben. SART 3 %-os hitelre is alkalmas.
Referenciaszám: M317260

18500000 Ft

Referencia szám: M317260

Hirdetés feltöltve: 2025. 11. 14. Utoljára módosítva: 2026. 01. 18.

2 szobás téglalakások ára Komlón

Ebből az összehasonlításból megtudhatod, hogyan viszonyul a lakás ára a környékbeli téglalakások átlagos árához. Ez nem azt jelenti, hogy ennyivel olcsóbb vagy drágább, mint amennyit a lakás ér, hanem hogy ennyivel tér el a környékbeli átlagtól.

Ennek a m² ára
Komló m² ár
370 e Ft
470 e Ft 21%
Ennek az ára
Komló átlagár
18.5 M Ft m Ft
24.4 m Ft 24%

Az ingatlan elhelyezkedése

Cím: Komló, Ikerház

Eladó téglalakások a környékről

Eladó téglalakás
Eladó téglalakás

Mohács

33 M Ft
5 szoba
110 m2
Eladó téglalakás
Eladó téglalakás

Komló, Zrinyi tér 6

22.9 M Ft
2 szoba
52 m2
Eladó téglalakás
Eladó téglalakás

Komló, Kazinczy Ferenc utca 6

11.5 M Ft
2 szoba
52 m2
Eladó téglalakás
Eladó téglalakás

Pécs

60.896 M Ft
2 szoba
48 m2
Eladó téglalakás
Eladó téglalakás

Komló, Május 1. utca

18.9 M Ft
1 szoba
40 m2
Eladó téglalakás
Eladó téglalakás

Pécs

90.38 M Ft
2 szoba
72 m2
Eladó téglalakás
Eladó téglalakás

Komló

34.5 M Ft
2 szoba
56 m2
Eladó téglalakás
Eladó téglalakás

Komló

17.5 M Ft
2 szoba
56 m2
Eladó téglalakás
Eladó téglalakás

Pécs

69.89 M Ft
1 szoba
51 m2
Eladó téglalakás
Eladó téglalakás

Pécs

74.77 M Ft
2 szoba
60 m2
Eladó téglalakás
Eladó téglalakás

Pécs

95.52 M Ft
3 szoba
62 m2
Eladó téglalakás
Eladó téglalakás

Pécs

58.09 M Ft
2 szoba
45 m2
Eladó téglalakás
Eladó téglalakás

Komló, Zrinyi Miklós utca 18

12.9 M Ft
2 szoba
53 m2
Eladó téglalakás
Eladó téglalakás

Komló

34.5 M Ft
2 szoba
56 m2
Eladó téglalakás
Eladó téglalakás

Komló, Zrínyi tér

13.5 M Ft
2 szoba
54 m2
Eladó téglalakás
Eladó téglalakás

Komló

42.8 M Ft
3 + 1 szoba
98 m2
Eladó téglalakás
Eladó téglalakás

Komló

16.9 M Ft
2 szoba
51 m2
Eladó téglalakás
Eladó téglalakás

Komló, Kossuth Lajos utca 119

33.9 M Ft
2 szoba
56 m2
Eladó téglalakás
Eladó téglalakás

Pécs, Belváros, Papnövelde utca

22.9 M Ft
1 szoba
28 m2
Eladó téglalakás
Eladó téglalakás

Komló, Kossuth Lajos utca

33.9 M Ft
2 + 1 szoba
56 m2
Eladó téglalakás
Eladó téglalakás

Komló

14.9 M Ft
3 szoba
52 m2
Eladó téglalakás
Eladó téglalakás

Pécs

62.698 M Ft
2 szoba
49 m2
Eladó téglalakás
Eladó téglalakás

Pécs

64.011 M Ft
2 szoba
52 m2
Eladó téglalakás
Eladó téglalakás

Komló, Bányász utca 13

19.9 M Ft
2 szoba
52 m2

Falusi CSOK ingatlanok

Eladó családi ház
Eladó családi ház

Nagykarácsony

34.9 M Ft
3 szoba
112 m2
Eladó családi ház
Eladó családi ház

Tésenfa, Kossuth utca 23/a

5.55 M Ft
1 + 1 szoba
109 m2
Eladó családi ház
Eladó családi ház

Hercegszántó

7 M Ft
3 szoba
120 m2
Eladó családi ház
Eladó családi ház

Recsk

35 M Ft
5 szoba
140 m2
Eladó családi ház
Eladó családi ház

Magyarszék

48.5 M Ft
3 + 1 szoba
86 m2
Eladó családi ház
Eladó családi ház

Gáborján

5.5 M Ft
2 szoba
68 m2
Eladó családi ház
Eladó családi ház

Fülöpháza

110 M Ft
10 + 3 szoba
330 m2
Eladó családi ház
Eladó családi ház

Szakmár

12.9 M Ft
3 + 1 szoba
90 m2