City Pearl

Eladó téglalakás
Komló, 2. emelet

+ 17 kép 1/20
20 300 000 Ft20.3 M Ft 406 000 Ft/m2
2 szoba
50 m2
2. emelet
építés éve:1960

Részletes adatok

Állapot: Átlagos
Fűtés: Elektromos
Energetikai besorolás: Nem adta meg a hirdető

Az OTP Bank lakáshitel ajánlataFizetett hirdetés

+36 20 509
Szabó Ágnes
OTPIP - Pécs, Rákóczi út 19.

Érdekel az OTP Bank kedvezményes lakáshitel ajánlata? *

* A kérdésre „Igen” válasz bejelölése esetén, az „Üzenet küldése” gombra kattintva kijelentem, hogy az OTP Bank Nyrt. Adatkezelési tájékoztatójának tartalmát megismertem és tudomásul vettem.

Eladó téglalakás leírása

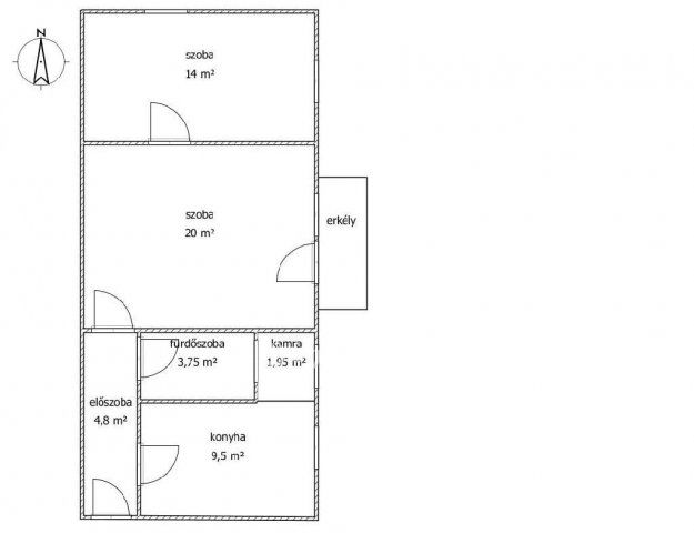
2 szobás 2. emeleti lakás eladó Komlón a Kökönyösben a Vájáriskola utcában.
2 emeletes tégla ház legfelső emeletén van. Csendes környezetben, kellemes szomszédokkal. Átlagos állapotú az összes nyílászárót műanyagra cserélték, redőnnyel. A fűtés gázkészülékkel, hőtárolós kályhával, és cserépkályhával is megoldható. Keleti irányba néz az erkélye utcai kilátással. Parkolni a ház előtt lehet, mindig van szabad hely. Az alagsorban tároló tartozik hozzá, ahová a babakocsit, vagy a kerékpárokat be lehet rakni. Játszótér, óvoda stb. van a közelben. SART 3 %-os hitelre is alkalmas.
Referenciaszám: M317260

Referencia szám: M317260

Hirdetés feltöltve: 2025. 11. 13. Utoljára módosítva: 2025. 11. 19.

2 szobás téglalakások ára Komlón

Ebből az összehasonlításból megtudhatod, hogyan viszonyul a lakás ára a környékbeli téglalakások átlagos árához. Ez nem azt jelenti, hogy ennyivel olcsóbb vagy drágább, mint amennyit a lakás ér, hanem hogy ennyivel tér el a környékbeli átlagtól.

Ennek a m² ára
Komló m² ár
406 e Ft
427 e Ft 5%
Ennek az ára
Komló átlagár
20.3 M Ft m Ft
22.6 m Ft 10%

Az ingatlan elhelyezkedése

Cím: Komló, 2. emelet

Eladó téglalakások a környékről

Eladó téglalakás
Eladó téglalakás

Pécs

81.7 M Ft
4 szoba
86 m2
Eladó téglalakás
Eladó téglalakás

Komló

42.8 M Ft
3 + 1 szoba
98 m2
Eladó téglalakás
Eladó téglalakás

Mohács

33 M Ft
5 szoba
110 m2
Eladó téglalakás
Eladó téglalakás

Komló, Zrínyi tér

13.5 M Ft
2 szoba
54 m2
Eladó téglalakás
Eladó téglalakás

Komló, Gagarin utca 21

43 M Ft
3 szoba
86 m2
Eladó téglalakás
Eladó téglalakás

Komló, Zrínyi tér

23.5 M Ft
3 szoba
53 m2
Eladó téglalakás
Eladó téglalakás

Pécs

91.2 M Ft
4 szoba
96 m2
Eladó téglalakás
Eladó téglalakás

Komló

13.5 M Ft
2 szoba
54 m2
Eladó téglalakás
Eladó téglalakás

Komló

17.5 M Ft
2 szoba
56 m2
Eladó téglalakás
Eladó téglalakás

Komló, Irinyi János utca

18.9 M Ft
2 szoba
54 m2
Eladó téglalakás
Eladó téglalakás

Pécs, Szigeti külváros, Hungária utca

29.9 M Ft
1 szoba
41 m2
Eladó téglalakás
Eladó téglalakás

Komló

42.8 M Ft
3 + 1 szoba
98 m2
Eladó téglalakás
Eladó téglalakás

Pécs

74.77 M Ft
2 szoba
60 m2
Eladó téglalakás
Eladó téglalakás

Komló, Május 1. utca

24 M Ft
2 szoba
52 m2
Eladó téglalakás
Eladó téglalakás

Pécs

70 M Ft
3 szoba
60 m2
Eladó téglalakás
Eladó téglalakás

Komló

13.5 M Ft
2 szoba
54 m2
Eladó téglalakás
Eladó téglalakás

Komló, Vörösmarty Mihály utca

8.4 M Ft
1 szoba
34 m2
Eladó téglalakás
Eladó téglalakás

Kozármisleny, Október 23. tér

60 M Ft
3 szoba
80 m2
Eladó téglalakás
Eladó téglalakás

Pécs

60.896 M Ft
2 szoba
48 m2
Eladó téglalakás
Eladó téglalakás

Komló, Irinyi János utca

9.49 M Ft
1 szoba
35 m2
Eladó téglalakás
Eladó téglalakás

Pécs

63.588 M Ft
2 szoba
52 m2
Eladó téglalakás
Eladó téglalakás

Komló, Zrínyi tér

13.5 M Ft
2 szoba
54 m2
Eladó téglalakás
Eladó téglalakás

Mohács

79.9 M Ft
3 szoba
105 m2
Eladó téglalakás
Eladó téglalakás

Pécs

60.958 M Ft
2 szoba
45 m2

Falusi CSOK ingatlanok

Eladó családi ház
Eladó családi ház

Vasszécseny, Szövetkezet

29.9 M Ft
2 + 1 szoba
85 m2
Eladó családi ház
Eladó családi ház

Zalaszabar

248 M Ft
4 szoba
197 m2
Eladó családi ház
Eladó családi ház

Tiszaroff

13.9 M Ft
2 szoba
81 m2
Eladó téglalakás
Eladó téglalakás

Balatonszemes

91.5 M Ft
2 szoba
60 m2
Eladó téglalakás
Eladó téglalakás

Balatonszemes

125.2 M Ft
2 szoba
50 m2
Eladó családi ház
Eladó családi ház

Rédics

49.9 M Ft
3 szoba
107 m2
Eladó családi ház
Eladó családi ház

Tiszaroff

12.9 M Ft
3 szoba
87 m2
Eladó családi ház
Eladó családi ház

Tápiógyörgye

32 M Ft
3 szoba
86 m2