Aerogate Homes

Eladó téglalakás
Komló, Ikerház

+ 17 kép 1/20
18 500 000 Ft18.5 M Ft 370 000 Ft/m2
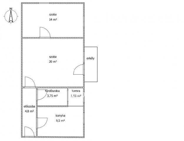
2 szoba
50 m2
Ikerház
építés éve:1960

Részletes adatok

Állapot: Átlagos
Fűtés: Elektromos
Emelet: 2. emelet
Energetikai besorolás: Nem adta meg a hirdető

Az OTP Bank lakáshitel ajánlataFizetett hirdetés

+36 20 938
Vincze László György
Pécs Király utca 75 - OTP Ingatlanpont Iroda

Érdekel az OTP Bank kedvezményes lakáshitel ajánlata? *

* A kérdésre „Igen” válasz bejelölése esetén, az „Üzenet küldése” gombra kattintva kijelentem, hogy az OTP Bank Nyrt. Adatkezelési tájékoztatójának tartalmát megismertem és tudomásul vettem.

Eladó téglalakás leírása

2 szobás 2. emeleti lakás eladó Komlón a Kökönyösben a Vájáriskola utcában.
2 emeletes tégla ház legfelső emeletén van. Csendes környezetben, kellemes szomszédokkal. Átlagos állapotú az összes nyílászárót műanyagra cserélték, redőnnyel. A fűtés gázkészülékkel, hőtárolós kályhával, és cserépkályhával is megoldható. Keleti irányba néz az erkélye utcai kilátással. Parkolni a ház előtt lehet, mindig van szabad hely. Az alagsorban tároló tartozik hozzá, ahová a babakocsit, vagy a kerékpárokat be lehet rakni. Játszótér, óvoda stb. van a közelben. SART 3 %-os hitelre is alkalmas.
Referenciaszám: M317260

Hirdetés feltöltve: 2025. 11. 13. Utoljára módosítva: 2026. 01. 08.

2 szobás téglalakások ára Komlón

Ebből az összehasonlításból megtudhatod, hogyan viszonyul a lakás ára a környékbeli téglalakások átlagos árához. Ez nem azt jelenti, hogy ennyivel olcsóbb vagy drágább, mint amennyit a lakás ér, hanem hogy ennyivel tér el a környékbeli átlagtól.

Ennek a m² ára
Komló m² ár
370 e Ft
449 e Ft 18%
Ennek az ára
Komló átlagár
18.5 M Ft m Ft
23.3 m Ft 21%

Az ingatlan elhelyezkedése

Cím: Komló, Ikerház

Eladó téglalakások a környékről

Eladó téglalakás
Eladó téglalakás

Komló, Anna akna

16.9 M Ft
2 szoba
53 m2
Eladó téglalakás
Eladó téglalakás

Pécs

90.38 M Ft
2 szoba
72 m2
Eladó téglalakás
Eladó téglalakás

Pécs

58.09 M Ft
2 szoba
45 m2
Eladó téglalakás
Eladó téglalakás

Mohács

33 M Ft
5 szoba
110 m2
Eladó téglalakás
Eladó téglalakás

Komló

36.5 M Ft
2 szoba
86 m2
Eladó téglalakás
Eladó téglalakás

Komló, Vörösmarty Mihály utca

9.99 M Ft
2 szoba
54 m2
Eladó téglalakás
Eladó téglalakás

Komló, Gagarin utca 21

43 M Ft
3 szoba
86 m2
Eladó téglalakás
Eladó téglalakás

Komló, Zrínyi tér

13.5 M Ft
2 szoba
54 m2
Eladó téglalakás
Eladó téglalakás

Komló

16.9 M Ft
2 szoba
51 m2
Eladó téglalakás
Eladó téglalakás

Pécs

70 M Ft
3 szoba
60 m2
Eladó téglalakás
Eladó téglalakás

Komló, Zrínyi tér

13.5 M Ft
2 szoba
54 m2
Eladó téglalakás
Eladó téglalakás

Komló

14.9 M Ft
3 szoba
52 m2
Eladó téglalakás
Eladó téglalakás

Komló, Irinyi János utca

9.49 M Ft
1 szoba
35 m2
Eladó téglalakás
Eladó téglalakás

Kozármisleny, Október 23. tér

60 M Ft
3 szoba
80 m2
Eladó téglalakás
Eladó téglalakás

Pécs

60.896 M Ft
2 szoba
48 m2
Eladó téglalakás
Eladó téglalakás

Komló, Bányász utca 13

19.9 M Ft
2 szoba
52 m2
Eladó téglalakás
Eladó téglalakás

Pécs

81.7 M Ft
4 szoba
86 m2
Eladó téglalakás
Eladó téglalakás

Komló, Zrínyi tér

23.5 M Ft
3 szoba
53 m2
Eladó téglalakás
Eladó téglalakás

Pécs

74.77 M Ft
2 szoba
60 m2
Eladó téglalakás
Eladó téglalakás

Komló

21.9 M Ft
2 szoba
53 m2
Eladó téglalakás
Eladó téglalakás

Komló, Kazinczy Ferenc utca 6

11.5 M Ft
2 szoba
52 m2
Eladó téglalakás
Eladó téglalakás

Pécs

62.7 M Ft
2 szoba
46 m2
Eladó téglalakás
Eladó téglalakás

Pécs

62.698 M Ft
2 szoba
49 m2
Eladó téglalakás
Eladó téglalakás

Komló, Zrinyi tér 6

22.9 M Ft
2 szoba
52 m2

Falusi CSOK ingatlanok

Eladó családi ház
Eladó családi ház

Tatárszentgyörgy

60.5 M Ft
7 szoba
305 m2
Eladó családi ház
Eladó családi ház

Szentliszló

29.9 M Ft
3 + 2 szoba
157 m2
Eladó családi ház
Eladó családi ház

Szentlőrinckáta

17 M Ft
4 szoba
67 m2
Eladó családi ház
Eladó családi ház

Somlóvásárhely

39.8 M Ft
1 szoba
78 m2
Eladó családi ház
Eladó családi ház

Szabolcs

64.9 M Ft
6 szoba
272 m2
Eladó családi ház
Eladó családi ház

Bakonya

38.5 M Ft
2 szoba
75 m2
Eladó panellakás
Eladó panellakás

Pétfürdő

49.9 M Ft
3 szoba
71 m2
Eladó családi ház
Eladó családi ház

Iharos

8 M Ft
2 szoba
45 m2