Aerogate Homes

Eladó téglalakás
Kiskunhalas, földszint

+ 17 kép 1/20
39 900 000 Ft39.9 M Ft 570 000 Ft/m2
2 szoba
70 m2
földszint
építés éve:1920

Részletes adatok

Fűtés: Gázkonvektor
Energetikai besorolás: Nem adta meg a hirdető

Az OTP Bank lakáshitel ajánlataFizetett hirdetés

+36 70 615
Csuka Bonita Zsófia
Szeged Széchenyi tér 6 - OTP Ingatlanpont Iroda

Érdekel az OTP Bank kedvezményes lakáshitel ajánlata? *

* A kérdésre „Igen” válasz bejelölése esetén, az „Üzenet küldése” gombra kattintva kijelentem, hogy az OTP Bank Nyrt. Adatkezelési tájékoztatójának tartalmát megismertem és tudomásul vettem.

Eladó téglalakás leírása

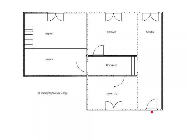
Bács-Kiskun vármegyében, Kiskunhalas belvárosában, két szobás 70 nm-es azonnal költözhető házrész eladó!
A vegyes falazatú, négy lakrészből álló ház osztatlan közös tulajdonú telken fekszik. Az eladásra kínált ingatlan egy belső lakrész, mely a közös udvarból, egy kerítéssel elválasztott, kedves hangulatú előkertből közelíthető meg.
A 2018-ban teljeskörűen felújított lakásban előszoba, konyha, közlekedő, hálógalériás nappali, szoba, fürdő és WC egy helyiségben kerültek kialakításra. Az otthon melegét gázkonvektorok biztosítják, a melegvizet villanybojler szolgáltatja. A felújítás során az elektromos vezetékek, vízvezeték ki lettek cserélve, az összes helyiség új járólapot, laminált padló burkolást kapott.
A lakrészhez saját udvari garázs és tároló mellett egy 250 nm-es kertrész is tartozik.
Az ingatlan infrastruktúrája nagyon jó, pár perc sétával elérhető a belváros, hivatalok, üzletek, iskola, óvoda, valamint a városi kórház és a városi fürdő is.
Kiváló választás fiatalok, idősebbek, vagy akár befektetési céllal is.
Megvásárlásához Babaváró és kedvezményes hitel is igénybe vehető, melynek ügyintézésében szakszerű segítséggel állunk a kedves vásárló rendelkezésére, igény szerint segítünk az adásvételi szerződés lebonyolításában, a szerződés megkötésétől a bírtokba adásig.

Hirdetés feltöltve: 2025. 12. 21.

2 szobás téglalakások ára Kiskunhalason

Ebből az összehasonlításból megtudhatod, hogyan viszonyul a lakás ára a környékbeli téglalakások átlagos árához. Ez nem azt jelenti, hogy ennyivel olcsóbb vagy drágább, mint amennyit a lakás ér, hanem hogy ennyivel tér el a környékbeli átlagtól.

Ennek a m² ára
Kiskunhalas m² ár
570 e Ft
425 e Ft -34%
Ennek az ára
Kiskunhalas átlagár
39.9 M Ft m Ft
31.1 m Ft -28%

Az ingatlan elhelyezkedése

Cím: Kiskunhalas, földszint

Eladó ingatlanok a környékről

Eladó téglalakás
Eladó téglalakás

Kiskunfélegyháza

27 M Ft
4 szoba
101 m2
Eladó panellakás
Eladó panellakás

Kecskemét

49 M Ft
3 szoba
62 m2
Eladó téglalakás
Eladó téglalakás

Bácsalmás

7.49 M Ft
3 szoba
77 m2
Eladó téglalakás
Eladó téglalakás

Kecskemét

120 M Ft
4 + 1 szoba
132 m2
Eladó téglalakás
Eladó téglalakás

Baja, Wesselényi utca

149.5 M Ft
1 szoba
620 m2
Eladó téglalakás
Eladó téglalakás

Kiskunhalas

15.9 M Ft
2 szoba
47 m2
Eladó téglalakás
Eladó téglalakás

Baja

38.9 M Ft
3 szoba
92 m2
Eladó mezogazdasagi ingatlan
Eladó mezogazdasagi ingatlan

Kecskemét

18.3 M Ft
2 szoba
60 m2
Eladó családi ház
Eladó családi ház

Kecskemét

325 M Ft
4 szoba
372 m2
Eladó téglalakás
Eladó téglalakás

Bácsalmás

16.49 M Ft
2 + 1 szoba
65 m2
Eladó téglalakás
Eladó téglalakás

Bácsalmás

11.99 M Ft
2 szoba
46 m2
Eladó téglalakás
Eladó téglalakás

Felsőszentiván

23.9 M Ft
3 szoba
76 m2
Eladó téglalakás
Eladó téglalakás

Baja, Jelky András tér

65 M Ft
3 szoba
75 m2
Eladó téglalakás
Eladó téglalakás

Kiskunhalas

47.9 M Ft
3 szoba
82 m2
Eladó téglalakás
Eladó téglalakás

Bácsalmás

35.99 M Ft
3 szoba
120 m2
Eladó téglalakás
Eladó téglalakás

Kiskunhalas

25.5 M Ft
2 szoba
59 m2
Eladó téglalakás
Eladó téglalakás

Kiskunhalas

39.9 M Ft
2 szoba
70 m2
Eladó panellakás
Eladó panellakás

Kecskemét

55 M Ft
2 + 1 szoba
63 m2
Eladó családi ház
Eladó családi ház

Kecskemét

92 M Ft
4 szoba
99 m2
Eladó téglalakás
Eladó téglalakás

Baja

55 M Ft
4 szoba
68 m2
Eladó téglalakás
Eladó téglalakás

Baja, Jelky András tér

65 M Ft
3 szoba
75 m2
Eladó téglalakás
Eladó téglalakás

Baja

149.5 M Ft
1 szoba
620 m2
Eladó téglalakás
Eladó téglalakás

Kiskunhalas

39.9 M Ft
2 szoba
70 m2
Eladó téglalakás
Eladó téglalakás

Baja

77.9 M Ft
5 szoba
200 m2

Falusi CSOK ingatlanok

Eladó családi ház
Eladó családi ház

Álmosd

13.9 M Ft
2 szoba
80 m2
Eladó családi ház
Eladó családi ház

Újszilvás

39.5 M Ft
3 szoba
62 m2
Eladó családi ház
Eladó családi ház

Kenyeri

39.9 M Ft
3 szoba
94 m2
Eladó családi ház
Eladó családi ház

Dunavecse

25 M Ft
3 szoba
120 m2
Eladó családi ház
Eladó családi ház

Petrivente, Kossuth Lajos utca

31.9 M Ft
3 szoba
127 m2
Eladó családi ház
Eladó családi ház

Tápióbicske

38 M Ft
3 szoba
50 m2
Eladó családi ház
Eladó családi ház

Balatonfenyves

430 M Ft
4 szoba
274 m2
Eladó családi ház
Eladó családi ház

Jászalsószentgyörgy

39.9 M Ft
2 szoba
74 m2