Eladó téglalakás
Kiskunhalas, földszint

+ 17 kép 1/20
39 900 000 Ft39.9 M Ft 570 000 Ft/m2
2 szoba
70 m2
földszint
építés éve:1920

Részletes adatok

Fűtés: Gázkonvektor
Energetikai besorolás: Nem adta meg a hirdető

Az OTP Bank lakáshitel ajánlataFizetett hirdetés

+36 30 733
Puskásné Ember Ninette
Szeged Széchenyi tér 6 - OTP Ingatlanpont Iroda

Érdekel az OTP Bank kedvezményes lakáshitel ajánlata? *

* A kérdésre „Igen” válasz bejelölése esetén, az „Üzenet küldése” gombra kattintva kijelentem, hogy az OTP Bank Nyrt. Adatkezelési tájékoztatójának tartalmát megismertem és tudomásul vettem.

Eladó téglalakás leírása

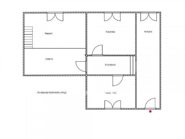
Bács-Kiskun vármegyében, Kiskunhalas belvárosában, két szobás 70 nm-es azonnal költözhető házrész eladó!
A vegyes falazatú, négy lakrészből álló ház osztatlan közös tulajdonú telken fekszik. Az eladásra kínált ingatlan egy belső lakrész, mely a közös udvarból, egy kerítéssel elválasztott, kedves hangulatú előkertből közelíthető meg.
A 2018-ban teljeskörűen felújított lakásban előszoba, konyha, közlekedő, hálógalériás nappali, szoba, fürdő és WC egy helyiségben kerültek kialakításra. Az otthon melegét gázkonvektorok biztosítják, a melegvizet villanybojler szolgáltatja. A felújítás során az elektromos vezetékek, vízvezeték ki lettek cserélve, az összes helyiség új járólapot, laminált padló burkolást kapott.
A lakrészhez saját udvari garázs és tároló mellett egy 250 nm-es kertrész is tartozik.
Az ingatlan infrastruktúrája nagyon jó, pár perc sétával elérhető a belváros, hivatalok, üzletek, iskola, óvoda, valamint a városi kórház és a városi fürdő is.
Kiváló választás fiatalok, idősebbek, vagy akár befektetési céllal is.
Megvásárlásához Babaváró és kedvezményes hitel is igénybe vehető, melynek ügyintézésében szakszerű segítséggel állunk a kedves vásárló rendelkezésére, igény szerint segítünk az adásvételi szerződés lebonyolításában, a szerződés megkötésétől a bírtokba adásig.

Referencia szám: M300114

Hirdetés feltöltve: 2025. 10. 12. Utoljára módosítva: 2025. 10. 12.

2 szobás téglalakások ára Kiskunhalason

Ebből az összehasonlításból megtudhatod, hogyan viszonyul a lakás ára a környékbeli téglalakások átlagos árához. Ez nem azt jelenti, hogy ennyivel olcsóbb vagy drágább, mint amennyit a lakás ér, hanem hogy ennyivel tér el a környékbeli átlagtól.

Ennek a m² ára
Kiskunhalas m² ár
570 e Ft
425 e Ft -34%
Ennek az ára
Kiskunhalas átlagár
39.9 M Ft m Ft
31.1 m Ft -28%

Az ingatlan elhelyezkedése

Cím: Kiskunhalas, földszint

Eladó ingatlanok a környékről

Eladó családi ház
Eladó családi ház

Tiszaalpár

29.9 M Ft
2 szoba
46 m2
Eladó téglalakás
Eladó téglalakás

Kiskunhalas

20 M Ft
2 szoba
55 m2
Eladó téglalakás
Eladó téglalakás

Baja

39.7 M Ft
3 szoba
51 m2
Eladó téglalakás
Eladó téglalakás

Helvécia

54 M Ft
2 szoba
65 m2
Eladó téglalakás
Eladó téglalakás

Bácsalmás

35.99 M Ft
3 szoba
120 m2
Eladó téglalakás
Eladó téglalakás

Baja, Jelky András tér

65 M Ft
3 szoba
75 m2
Eladó téglalakás
Eladó téglalakás

Kecskemét

37.9 M Ft
2 szoba
54 m2
Eladó téglalakás
Eladó téglalakás

Helvécia

54 M Ft
2 szoba
64 m2
Eladó téglalakás
Eladó téglalakás

Kecskemét

79.9 M Ft
3 szoba
89 m2
Eladó téglalakás
Eladó téglalakás

Kiskunhalas

38.8 M Ft
4 szoba
114 m2
Eladó családi ház
Eladó családi ház

Kecskemét

129.9 M Ft
7 szoba
192 m2
Eladó téglalakás
Eladó téglalakás

Baja

55 M Ft
4 szoba
68 m2
Eladó téglalakás
Eladó téglalakás

Baja

41.9 M Ft
3 szoba
64 m2
Eladó téglalakás
Eladó téglalakás

Bácsalmás

7.49 M Ft
3 szoba
77 m2
Eladó téglalakás
Eladó téglalakás

Kecskemét

59.9 M Ft
2 szoba
54 m2
Eladó téglalakás
Eladó téglalakás

Baja

77.9 M Ft
5 szoba
200 m2
Eladó családi ház
Eladó családi ház

Kecskemét

84.9 M Ft
4 szoba
96 m2
Eladó panellakás
Eladó panellakás

Kecskemét

44.9 M Ft
1 szoba
34 m2
Eladó családi ház
Eladó családi ház

Lajosmizse

44.99 M Ft
3 szoba
70 m2
Eladó téglalakás
Eladó téglalakás

Kecskemét

39.9 M Ft
2 szoba
46 m2
Eladó téglalakás
Eladó téglalakás

Baja

38.9 M Ft
3 szoba
92 m2
Eladó téglalakás
Eladó téglalakás

Baja

41.9 M Ft
4 szoba
111 m2
Eladó téglalakás
Eladó téglalakás

Kecskemét

43.9 M Ft
2 szoba
54 m2
Eladó családi ház
Eladó családi ház

Tiszaalpár

25.9 M Ft
5 szoba
170 m2

Falusi CSOK ingatlanok

Eladó családi ház
Eladó családi ház

Bogács

135 M Ft
2 szoba
106 m2
Eladó családi ház
Eladó családi ház

Törökkoppány

20.9 M Ft
2 szoba
80 m2
Eladó családi ház
Eladó családi ház

Galgahévíz

42 M Ft
4 szoba
101 m2
Eladó családi ház
Eladó családi ház

Úrkút, Temető utca

99 M Ft
7 szoba
540 m2
Eladó családi ház
Eladó családi ház

Orci

39.9 M Ft
3 szoba
80 m2
Eladó családi ház
Eladó családi ház

Egyházaskozár

59 M Ft
4 szoba
162 m2
Eladó családi ház
Eladó családi ház

Lengyeltóti

37.9 M Ft
3 szoba
90 m2
Eladó családi ház
Eladó családi ház

Szalánta, Hunyadi

41.9 M Ft
3 + 1 szoba
120 m2