Seven Pearl

Eladó téglalakás
Kecskemét, 1. emelet

+ 17 kép 1/20
99 000 000 Ft99 M Ft 1 414 286 Ft/m2
2 szoba
70 m²
1. emelet
építés éve:2026

Részletes adatok

Fűtés: Egyéb
Emelet: 1. emelet
Energetikai besorolás: Nem adta meg a hirdető

Az OTP Bank lakáshitel ajánlataFizetett hirdetés

3676998549
Jobbágy Miklós
referens

Érdekel az OTP Bank kedvezményes lakáshitel ajánlata? *

* A kérdésre „Igen” válasz bejelölése esetén, az „Üzenet küldése” gombra kattintva kijelentem, hogy az OTP Bank Nyrt. Adatkezelési tájékoztatójának tartalmát megismertem és tudomásul vettem.

Eladó téglalakás leírása

Prémium újépítésű lakás eladó Kecskemét belvárosában

Kecskemét szívében, a belváros egyik legértékesebb pontján kínálunk megvételre egy 2026-ban épült, azonnal költözhető, prémium minőségű lakást. Az ingatlan egy mindössze négy lakásos, exkluzív kis társasházban található, amelyet egy régi polgári ház teljes felújításával és korszerűsítésével hoztak létre. Az épület megőrizte eredeti karakterét és eleganciáját, miközben minden tekintetben megfelel a modern elvárásoknak. Ez a kecskeméti belvárosi eladó lakás ideális választás azoknak, akik kiváló elhelyezkedést, magas műszaki tartalmat és hosszú távú értékálló ingatlant keresnek.

Főbb paraméterek:

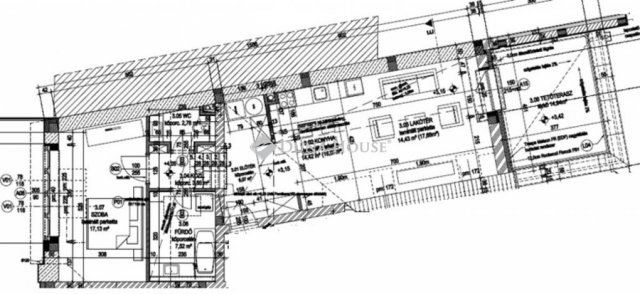
Vételár: 99 000 000 Ft (+ kötelezően megvásárolandó autóbeálló: 5 000 000 Ft)
Alapterület: 66 m²
Terasz: 15 m²
Szobák száma: nappali + 1 külön nyíló hálószoba
Emelet: 1. emelet
Emeletek száma az épületben: 1
Építés éve: 2026
Épület típusa: tégla, felújított polgári ház
Épület állapota: új építés / teljesen felújított
Fűtés: hőszivattyú, H tarifa
Tájolás: délnyugati
Fényviszonyok: napfényes
Kilátás: udvari
Parkolás: zárt udvari autóbeálló elektromos autó töltővel
Közös tároló: igen
Lift: nincs

Műszaki tartalom és prémium kivitelezés
A lakás kialakításánál kiemelt hangsúlyt fektettek az energiahatékonyságra és a hosszú távú fenntarthatóságra. A fűtést modern hőszivattyús rendszer biztosítja kedvező H tarifán, a padlófűtés az egész alapterületen egyenletes hőkomfortot nyújt. Az inverteres klímaberendezés a nyári hónapokban hatékony hűtést tesz lehetővé. A nyílászárók prémium minőségű fából készültek, szúnyoghálóval felszerelve, az elektromos redőnyök komfortos és egyszerű kezelést biztosítanak. A műkő párkányok igényes részletkidolgozást és tartósságot képviselnek.
A belső terek kialakítása során minőségi burkolatok és prémium világítótestek kerültek beépítésre. Az egyedi tervezésű konyhabútor beépített konyhai gépekkel felszerelt, így a lakás a vásárlás pillanatától teljesen beköltözhető állapotban van, felesleges felújítási költségek nélkül.

Elhelyezkedés és közlekedés
A kecskeméti belvárosban eladó újépítésű prémium lakás elhelyezkedése az egyik legfőbb értéke az ingatlannak. Kecskemét belvárosa kiváló infrastruktúrával rendelkezik: a bevásárlási lehetőségek, éttermek, kávézók, közintézmények és iskolák egyaránt gyalog elérhetők. A belváros jó közösségi közlekedési kapcsolatokkal bír, a vasútállomás és a buszpályaudvar is könnyen megközelíthető.

Parkolás és tárolás
A lakáshoz zárt udvari autóbeálló tartozik, amely elektromos autó töltőre alkalmas csatlakozóval van felszerelve. Ez jövőbiztos megoldást jelent az elektromos járművek terjedésével együtt. Az autóbeálló kötelezően megvásárolandó, vételára 5 000 000 Ft. Az ingatlanhoz közös tároló is tartozik, amely az elsőemeleti lakás mindennapi tárolási igényeit kényelmes módon egészíti ki.

Befektetési lehetőség és finanszírozás
A mindössze négy lakásos, belvárosi kis társasházban lévő prémium lakás kiemelkedő befektetési potenciállal rendelkezik. Az újépítésű, belvárosi kecskeméti ingatlanok iránt folyamatosan magas a kereslet mind saját célú vásárlás, mind hosszú távú bérbeadás szempontjából. Az ingatlan finanszírozható lakáshitellel, amelyhez az értékesítő pénzügyi tanácsadást is nyújt.

Hívjon még ma!
(30) 474 6890
Jobbágy Miklós Ingatlanos Duna House
Hívjon! (30) 474 6890

Referencia szám: LK075122

Hirdetés feltöltve: 2026. 03. 24. Utoljára módosítva: 2026. 04. 01.

2 szobás téglalakások ára Kecskeméten

Ebből az összehasonlításból megtudhatod, hogyan viszonyul a lakás ára a környékbeli téglalakások átlagos árához. Ez nem azt jelenti, hogy ennyivel olcsóbb vagy drágább, mint amennyit a lakás ér, hanem hogy ennyivel tér el a környékbeli átlagtól.

Ennek a m² ára
Kecskemét m² ár
1414 e Ft
993 e Ft -42%
Ennek az ára
Kecskemét átlagár
99 M Ft m Ft
57.8 m Ft -71%

Az ingatlan elhelyezkedése

Cím: Kecskemét, 1. emelet

Eladó téglalakások a környékről

Kecskemét
Eladó téglalakás

Kecskemét

44.9 M Ft
3 szoba
71 m²
Kiskunfélegyháza
Eladó téglalakás

Kiskunfélegyháza

27 M Ft
4 szoba
101 m²
Kecskemét
Eladó téglalakás

Kecskemét

44.8 M Ft
3 szoba
66 m²
Izsák
Eladó téglalakás

Izsák

15.3 M Ft
2 szoba
63 m²
Baja
Eladó téglalakás

Baja

37.99 M Ft
2 szoba
70 m²
Kecskemét
Eladó téglalakás

Kecskemét

44.8 M Ft
3 szoba
66 m²
Kecskemét
Eladó téglalakás

Kecskemét

145 M Ft
3 szoba
79 m²
Kecskemét, Kossuth-város, Bakócz Tamás utca 1
Eladó téglalakás

Kecskemét

77 M Ft
2 szoba
57 m²
Kecskemét, Kossuth-város, Bakócz Tamás utca 1
Eladó téglalakás

Kecskemét

81 M Ft
3 szoba
60 m²
Bácsalmás
Eladó téglalakás

Bácsalmás

7.49 M Ft
3 szoba
77 m²
Baja, Jelky András tér
Eladó téglalakás

Baja

65 M Ft
3 szoba
75 m²
Kecskemét
Eladó téglalakás

Kecskemét

69.9 M Ft
2 + 1 szoba
83 m²
Felsőszentiván
Eladó téglalakás

Felsőszentiván

23.9 M Ft
3 szoba
76 m²
Kecskemét
Eladó téglalakás

Kecskemét

52.8 M Ft
2 szoba
55 m²
Felsőszentiván
Eladó téglalakás

Felsőszentiván

23.9 M Ft
3 szoba
76 m²
Baja
Eladó téglalakás

Baja

92 M Ft
5 szoba
152 m²
Kecskemét, Kossuth-város, Bakócz Tamás utca 1
Eladó téglalakás

Kecskemét

81 M Ft
3 szoba
60 m²
Kecskemét
Eladó téglalakás

Kecskemét

64.5 M Ft
1 szoba
37 m²
Kecskemét
Eladó téglalakás

Kecskemét

145 M Ft
3 szoba
79 m²
Kecskemét
Eladó téglalakás

Kecskemét

99 M Ft
5 szoba
129 m²
Kecskemét
Eladó téglalakás

Kecskemét

24.9 M Ft
1 szoba
37 m²
Kecskemét
Eladó téglalakás

Kecskemét

44.8 M Ft
3 szoba
66 m²
Kecskemét
Eladó téglalakás

Kecskemét

69.99 M Ft
2 szoba
81 m²
Kecskemét
Eladó téglalakás

Kecskemét

69.99 M Ft
2 szoba
81 m²

Falusi CSOK ingatlanok

Cece
Eladó családi ház

Cece

56.95 M Ft
5 szoba
170 m²
Balatonőszöd
Eladó téglalakás

Balatonőszöd

167 M Ft
4 szoba
81 m²
Sződ
Eladó családi ház

Sződ

102.9 M Ft
4 szoba
92 m²
Ambrózfalva
Eladó családi ház

Ambrózfalva

26.9 M Ft
5 szoba
194 m²
Nyáregyháza
Eladó családi ház

Nyáregyháza

114.99 M Ft
7 szoba
267 m²
Balatonszepezd
Eladó családi ház

Balatonszepezd

219.99 M Ft
13 szoba
409 m²
Seregélyes
Eladó családi ház

Seregélyes

75 M Ft
6 szoba
160 m²
Nyáregyháza
Eladó családi ház

Nyáregyháza

15.9 M Ft
2 szoba
39 m²