Pesti Házak

Eladó téglalakás
Kecskemét, 2. emelet

1/2
91 800 000 Ft91.8 M Ft 1 257 534 Ft/m2
4 szoba
73 m2
2. emelet
építés éve:2026

Részletes adatok

Fűtés: Egyéb
Energetikai besorolás: Nem adta meg a hirdető

Az OTP Bank lakáshitel ajánlataFizetett hirdetés

+36 70 421
Horváthné Lovas Ildikó
HOUSE36 Ingatlanbázis Kft.

Érdekel az OTP Bank kedvezményes lakáshitel ajánlata? *

* A kérdésre „Igen” válasz bejelölése esetén, az „Üzenet küldése” gombra kattintva kijelentem, hogy az OTP Bank Nyrt. Adatkezelési tájékoztatójának tartalmát megismertem és tudomásul vettem.

Eladó téglalakás leírása

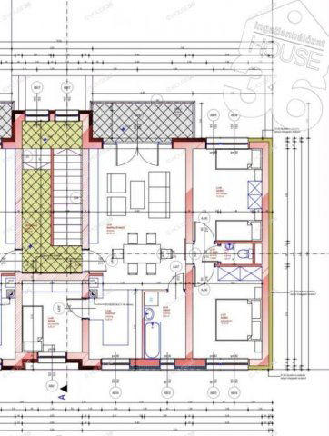
Új építésű, első emeleti tégla lakás nagy terasszal Kecskeméten!
Kecskemét frekventált részén, a Belváros és Máriaváros határán, eladó egy 73,5m²-es,lakóterű, nappali + 3 szobás, első emeleti lakás, 6,5 m²-es erkéllyel, egy mindössze 5 lakásos, zárt udvaros, új építésű társasházban.

Főbb jellemzők:

Téglaépítésű társasház, tégla belső válaszfalakkal

Átadás várható időpontja: 2026. június

Korszerű hőszivattyús fűtés és fan-coil hűtés

3 rétegű hőszigetelt nyílászárók redőnnyel

15 cm vastag homlokzati szigetelés

Választható burkolatok:

Hidegburkolat 8.000 Ft/m²-ig

Melegburkolat 7.000 Ft/m²-ig

Garázsvásárlási lehetőség: 9.900.000 Ft

Zárt udvari gépkocsibeálló vásárlási lehetősége: 2.000.000 Ft​

Figyelem az adatlap megbízónktól kapott adatok alapján készült, pontosságáért felelősséget nem tudunk vállalni!
Az iroda legfrissebb, aktuális kínálatát a HOUSE36 saját weboldalán találja!

Hirdetés feltöltve: 2025. 11. 11. Utoljára módosítva: 2025. 11. 29.

4 szobás téglalakások ára Kecskeméten

Ebből az összehasonlításból megtudhatod, hogyan viszonyul a lakás ára a környékbeli téglalakások átlagos árához. Ez nem azt jelenti, hogy ennyivel olcsóbb vagy drágább, mint amennyit a lakás ér, hanem hogy ennyivel tér el a környékbeli átlagtól.

Ennek a m² ára
Kecskemét m² ár
1258 e Ft
952 e Ft -32%
Ennek az ára
Kecskemét átlagár
91.8 M Ft m Ft
93.6 m Ft 2%

Az ingatlan elhelyezkedése

Cím: Kecskemét, 2. emelet

Eladó téglalakások a környékről

Eladó téglalakás
Eladó téglalakás

Baja

39.7 M Ft
3 szoba
51 m2
Eladó téglalakás
Eladó téglalakás

Kecskemét, Kossuth-város, Bakócz Tamás utca 1

81 M Ft
3 szoba
60 m2
Eladó téglalakás
Eladó téglalakás

Bácsalmás

16.49 M Ft
2 + 1 szoba
65 m2
Eladó téglalakás
Eladó téglalakás

Baja, Jelky András tér

65 M Ft
3 szoba
75 m2
Eladó téglalakás
Eladó téglalakás

Kecskemét

69.9 M Ft
2 + 1 szoba
83 m2
Eladó téglalakás
Eladó téglalakás

Kecskemét, Kossuth-város, Bakócz Tamás utca 1

72.9 M Ft
2 szoba
54 m2
Eladó téglalakás
Eladó téglalakás

Kecskemét

110 M Ft
5 szoba
132 m2
Eladó téglalakás
Eladó téglalakás

Kecskemét

86 M Ft
2 szoba
58 m2
Eladó téglalakás
Eladó téglalakás

Baja

38.9 M Ft
3 szoba
92 m2
Eladó téglalakás
Eladó téglalakás

Bácsalmás

35.99 M Ft
3 szoba
120 m2
Eladó téglalakás
Eladó téglalakás

Baja

43.2 M Ft
3 szoba
80 m2
Eladó téglalakás
Eladó téglalakás

Kecskemét, Kossuth-város, Bakócz Tamás utca 1

85.7 M Ft
3 szoba
62 m2
Eladó téglalakás
Eladó téglalakás

Kecskemét

79.9 M Ft
2 + 2 szoba
90 m2
Eladó téglalakás
Eladó téglalakás

Kecskemét

120 M Ft
4 + 1 szoba
132 m2
Eladó téglalakás
Eladó téglalakás

Bácsalmás

7.49 M Ft
3 szoba
77 m2
Eladó téglalakás
Eladó téglalakás

Baja

77.9 M Ft
5 szoba
200 m2
Eladó téglalakás
Eladó téglalakás

Kecskemét

106.9 M Ft
4 szoba
112 m2
Eladó téglalakás
Eladó téglalakás

Kecskemét, Kossuth-város, Bakócz Tamás utca 1

82.5 M Ft
3 szoba
66 m2
Eladó téglalakás
Eladó téglalakás

Kecskemét

65.9 M Ft
4 szoba
100 m2
Eladó téglalakás
Eladó téglalakás

Bácsalmás

35.99 M Ft
3 szoba
120 m2
Eladó téglalakás
Eladó téglalakás

Kecskemét

79.9 M Ft
2 + 2 szoba
90 m2
Eladó téglalakás
Eladó téglalakás

Bácsalmás

7.49 M Ft
3 szoba
77 m2
Eladó téglalakás
Eladó téglalakás

Bácsalmás

11.99 M Ft
2 szoba
46 m2
Eladó téglalakás
Eladó téglalakás

Kecskemét, Kossuth-város, Bakócz Tamás utca 1

86.5 M Ft
3 szoba
65 m2

Falusi CSOK ingatlanok

Eladó családi ház
Eladó családi ház

Ceglédbercel

95 M Ft
6 szoba
220 m2
Eladó családi ház
Eladó családi ház

Balatonfenyves

430 M Ft
4 szoba
274 m2
Eladó családi ház
Eladó családi ház

Ceglédbercel, Iskola utca

99.99 M Ft
5 szoba
128 m2
Eladó téglalakás
Eladó téglalakás

Nagyharsány

22.5 M Ft
3 szoba
71 m2
Eladó családi ház
Eladó családi ház

Sümegcsehi

119 M Ft
5 szoba
237 m2
Eladó családi ház
Eladó családi ház

Kondorfa, Alvég utca

29.6 M Ft
1 + 1 szoba
67 m2
Eladó családi ház
Eladó családi ház

Iváncsa

73.9 M Ft
1 + 3 szoba
97 m2
Eladó családi ház
Eladó családi ház

Balatonfenyves

119 M Ft
5 szoba
142 m2