Eladó téglalakás
Kazincbarcika, 3. emelet

+ 10 kép 1/13
17 900 000 Ft17.9 M Ft 426 190 Ft/m2
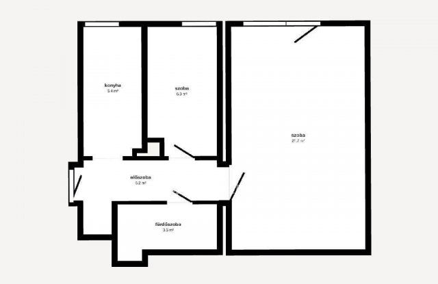
1 + 1 szoba
42 m2
3. emelet
építés éve:1960

Részletes adatok

Fűtés: Távfűtés
Energetikai besorolás: Nem adta meg a hirdető

Az OTP Bank lakáshitel ajánlataFizetett hirdetés

+36 70 907
Klubert Gergő
OTP Ingatlanpont Miskolc Szemere

Érdekel az OTP Bank kedvezményes lakáshitel ajánlata? *

* A kérdésre „Igen” válasz bejelölése esetén, az „Üzenet küldése” gombra kattintva kijelentem, hogy az OTP Bank Nyrt. Adatkezelési tájékoztatójának tartalmát megismertem és tudomásul vettem.

Eladó téglalakás leírása

Kazincbarcika városában 42m2-es, 1,5 szobás, 3. emeleti, azonnal költözhető, alacsony rezsijű, jó állapotú, frissen festett lakás eladó a Tavasz úton! OTTHON START 3%-os hitelre alkalmas!
A nyílászárók műanyagok, hőszigeteltek, redőnnyel felszereltek, a beltéri ajtók újak, a bejárat pedig masszív, fém biztonsági ajtón keresztül történik. A fűtést távhő szolgáltatja, hőleadás radiátorokon, a melegvizet pedig egy két éve cserélt villanybojler biztosítja. A nagy szobában beépített szekrény is rendelkezésre áll. A vételár tartalmazza a konyhabútort, gáztűzhelyet. A lakáshoz egy saját, zárható pincehelyiség is tartozik. A társasházban 2023-ban megtörtént a gáz- és villanyrendszer korszerűsítése, így az ingatlan műszaki állapota jó. Rendezett lépcsőház, zárt kapukódos bejárattal. A közelben iskola, óvoda, játszótér, kutyafuttató, kórház, bevásárlóközpont és buszmegálló is található. A ház előtt ingyenes parkolási lehetőség biztosított, a környék nyugodt, mégis minden fontos szolgáltatás könnyen elérhető.
Ingatlanirodánk ügyvédi háttérrel, babaváró hitel, CSOK Plusz, OTTHON START 3%-os hitel, valamint kamatkedvezményes hitel ügyintézésével támogatja ügyfelei ingatlanvásárlását! Érdeklődés esetén hivatkozzon az M314204 referencia számra!

Hirdetés feltöltve: 2025. 10. 22. Utoljára módosítva: 2025. 10. 22.

2 szobás téglalakások ára Kazincbarcikán

Ebből az összehasonlításból megtudhatod, hogyan viszonyul a lakás ára a környékbeli téglalakások átlagos árához. Ez nem azt jelenti, hogy ennyivel olcsóbb vagy drágább, mint amennyit a lakás ér, hanem hogy ennyivel tér el a környékbeli átlagtól.

Ennek a m² ára
Kazincbarcika m² ár
426 e Ft
430 e Ft 1%
Ennek az ára
Kazincbarcika átlagár
17.9 M Ft m Ft
24 m Ft 25%

Az ingatlan elhelyezkedése

Cím: Kazincbarcika, 3. emelet

Eladó téglalakások a környékről

Eladó téglalakás
Eladó téglalakás

Miskolc

49 M Ft
2 szoba
51 m2
Eladó téglalakás
Eladó téglalakás

Kazincbarcika

14.9 M Ft
1 szoba
38 m2
Eladó téglalakás
Eladó téglalakás

Kazincbarcika, Ifjúmunkás tér

14.6 M Ft
2 szoba
55 m2
Eladó téglalakás
Eladó téglalakás

Kazincbarcika

14.9 M Ft
1 szoba
38 m2
Eladó téglalakás
Eladó téglalakás

Kazincbarcika

14.9 M Ft
1 szoba
38 m2
Eladó téglalakás
Eladó téglalakás

Tiszaújváros, Verebély utca

23.9 M Ft
1 + 1 szoba
39 m2
Eladó téglalakás
Eladó téglalakás

Miskolc

59 M Ft
3 szoba
60 m2
Eladó téglalakás
Eladó téglalakás

Miskolc

11.5 M Ft
2 szoba
59 m2
Eladó téglalakás
Eladó téglalakás

Miskolc

49 M Ft
2 szoba
51 m2
Eladó téglalakás
Eladó téglalakás

Miskolc

64 M Ft
3 szoba
60 m2
Eladó téglalakás
Eladó téglalakás

Kazincbarcika

12 M Ft
1 szoba
27 m2
Eladó téglalakás
Eladó téglalakás

Ózd

9.99 M Ft
2 szoba
58 m2
Eladó téglalakás
Eladó téglalakás

Kazincbarcika

23.2 M Ft
1 + 2 szoba
50 m2
Eladó téglalakás
Eladó téglalakás

Kazincbarcika

19.5 M Ft
1 + 2 szoba
50 m2
Eladó téglalakás
Eladó téglalakás

Miskolc, Új Diósgyőr, Torontáli utca

19.99 M Ft
2 szoba
49 m2
Eladó téglalakás
Eladó téglalakás

Tiszaújváros

60.06 M Ft
2 szoba
68 m2
Eladó téglalakás
Eladó téglalakás

Kazincbarcika

13.2 M Ft
2 szoba
56 m2
Eladó téglalakás
Eladó téglalakás

Kazincbarcika

15.9 M Ft
1 szoba
44 m2
Eladó téglalakás
Eladó téglalakás

Kazincbarcika

15 M Ft
2 szoba
57 m2
Eladó téglalakás
Eladó téglalakás

Miskolc

138 M Ft
4 szoba
110 m2
Eladó téglalakás
Eladó téglalakás

Kazincbarcika

15.9 M Ft
1 szoba
44 m2
Eladó téglalakás
Eladó téglalakás

Ózd

4.99 M Ft
2 szoba
55 m2
Eladó téglalakás
Eladó téglalakás

Kazincbarcika

19.5 M Ft
1 + 2 szoba
50 m2
Eladó téglalakás
Eladó téglalakás

Kazincbarcika

25 M Ft
2 szoba
56 m2

Falusi CSOK ingatlanok

Eladó családi ház
Eladó családi ház

Jászkarajenő

25 M Ft
4 szoba
136 m2
Eladó családi ház
Eladó családi ház

Somogymeggyes

14 M Ft
3 szoba
86 m2
Eladó családi ház
Eladó családi ház

Dunaegyháza

34.6 M Ft
3 szoba
70 m2
Eladó családi ház
Eladó családi ház

Tök

125.4 M Ft
4 szoba
135 m2
Eladó családi ház
Eladó családi ház

Balatonberény

115.259 M Ft
5 szoba
145 m2
Eladó családi ház
Eladó családi ház

Balatonkeresztúr

117 M Ft
3 + 2 szoba
154 m2
Eladó téglalakás
Eladó téglalakás

Tiszakeszi

12.9 M Ft
2 + 1 szoba
80 m2
Eladó családi ház
Eladó családi ház

Tiszalúc

9 M Ft
3 + 2 szoba
130 m2