Metrodom

Eladó téglalakás
Hévíz, 2. emelet

+ 4 kép 1/7
54 290 000 Ft54.29 M Ft 1 107 959 Ft/m2
1 + 1 szoba
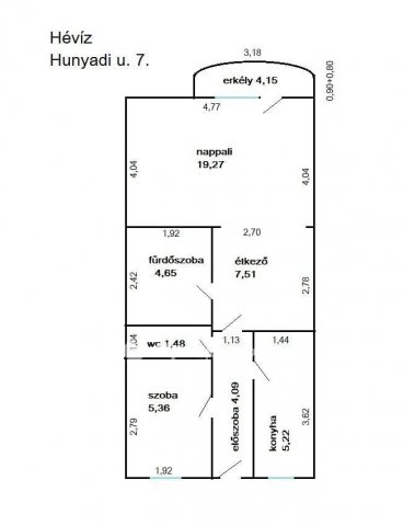
49 m²
2. emelet
építés éve:1997

Részletes adatok

Állapot: Felújítandó
Fűtés: Gázkazán
Emelet: 2. emelet
Parkolás: Garázs
Energetikai besorolás: Nem adta meg a hirdető
Zenga Premier

Friss hirdetések, amiket nem találsz meg más ingatlankereső portálon.

Fedezd fel elsőként a Zenga Premier címkés eladó ingatlanokat!

További részletek a zenga.hu-n

Az OTP Bank lakáshitel ajánlataFizetett hirdetés

+36 70 719
Csiszár Noémi
referens

Érdekel az OTP Bank kedvezményes lakáshitel ajánlata? *

* A kérdésre „Igen” válasz bejelölése esetén, az „Üzenet küldése” gombra kattintva kijelentem, hogy az OTP Bank Nyrt. Adatkezelési tájékoztatójának tartalmát megismertem és tudomásul vettem.

Eladó téglalakás leírása

Hévízen, kiváló lokációval eladó erkélyes lakás

A világhírű hévízi tófürdő városában kínálunk megvételre egy 49 m2-es, 2. emeleti, erkélyes lakást, amely kivételes lehetőséget rejt azok számára, akik értéket teremtenének. Ez az ingatlan egy olyan alap, amely megfelelő vízióval és felújítással modern, piacképes és jól hasznosítható lakássá alakítható akár saját célra, akár befektetésként.

A lakás elosztása ideális:
nappali + félszoba, konyha, külön fürdőszoba WC -vel, valamint egy külön mellékhelyiség, ami a mindennapi komfort szempontjából kifejezetten előnyös és ritka a piacon.

Hévíz adottságainak köszönhetően az ingatlan felújítást követően nemcsak otthonként, hanem értéknövelő befektetésként is megállja a helyét.

Az ilyen adottságokkal rendelkező, jól alakítható, erkélyes lakások Hévízen ritkán kerülnek piacra, különösen ebben a kategóriában. Ha látja benne a lehetőséget, érdemes időben lépni.

Hirdetés feltöltve: 2026. 04. 01.

2 szobás téglalakások ára Hévízen

Ebből az összehasonlításból megtudhatod, hogyan viszonyul a lakás ára a környékbeli téglalakások átlagos árához. Ez nem azt jelenti, hogy ennyivel olcsóbb vagy drágább, mint amennyit a lakás ér, hanem hogy ennyivel tér el a környékbeli átlagtól.

Ennek a m² ára
Hévíz m² ár
1108 e Ft
1426 e Ft 22%
Ennek az ára
Hévíz átlagár
54.29 M Ft m Ft
73 m Ft 26%

Az ingatlan elhelyezkedése

Cím: Hévíz, 2. emelet

Eladó téglalakások a környékről

Hévíz
Eladó téglalakás

Hévíz

82.9 M Ft
3 szoba
111 m²
Keszthely, Entz Géza sétány 11-13
Eladó téglalakás

Keszthely

180.6 M Ft
4 szoba
120 m²
Hévíz
Eladó téglalakás

Hévíz

84.9 M Ft
4 szoba
91 m²
Hévíz
Eladó téglalakás

Hévíz

41.5 M Ft
2 szoba
37 m²
Hévíz
Eladó téglalakás

Hévíz

119 M Ft
2 + 1 szoba
81 m²
Keszthely, Entz Géza sétány 11-13
Eladó téglalakás

Keszthely

96.5 M Ft
2 szoba
60 m²
Hévíz
Eladó téglalakás

Hévíz

42 M Ft
2 szoba
42 m²
Keszthely, Entz Géza sétány 11-13
Eladó téglalakás

Keszthely

370 M Ft
4 szoba
150 m²
Keszthely, Entz Géza sétány 11-13
Eladó téglalakás

Keszthely

99.9 M Ft
2 szoba
60 m²
Keszthely, Entz Géza sétány 11-13
Eladó téglalakás

Keszthely

212 M Ft
4 szoba
121 m²
Hévíz
Eladó téglalakás

Hévíz

89 M Ft
3 szoba
88 m²
Hévíz
Eladó téglalakás

Hévíz

149.9 M Ft
10 szoba
328 m²
Hévíz
Eladó téglalakás

Hévíz

86.816 M Ft
2 szoba
84 m²
Keszthely, Entz Géza sétány 11-13
Eladó téglalakás

Keszthely

78.645 M Ft
2 szoba
60 m²
Keszthely, Entz Géza sétány 11-13
Eladó téglalakás

Keszthely

216.93 M Ft
4 szoba
121 m²
Hévíz
Eladó téglalakás

Hévíz

69.99 M Ft
4 szoba
110 m²
Hévíz
Eladó téglalakás

Hévíz

64.99 M Ft
3 szoba
76 m²
Keszthely, Entz Géza sétány 11-13
Eladó téglalakás

Keszthely

360 M Ft
4 szoba
224 m²
Hévíz
Eladó téglalakás

Hévíz

149.9 M Ft
10 szoba
328 m²
Zalaegerszeg
Eladó téglalakás

Zalaegerszeg

45 M Ft
1 szoba
90 m²
Keszthely, Entz Géza sétány 11-13
Eladó téglalakás

Keszthely

370 M Ft
4 szoba
150 m²
Hévíz
Eladó téglalakás

Hévíz

119.609 M Ft
1 + 2 szoba
65 m²
Hévíz, Belváros
Eladó téglalakás

Hévíz

49.9 M Ft
2 szoba
56 m²
Keszthely, Entz Géza sétány 11-13
Eladó téglalakás

Keszthely

97.5 M Ft
2 szoba
60 m²

Falusi CSOK ingatlanok

Bogács
Eladó családi ház

Bogács

64.95 M Ft
7 szoba
125 m²
Ceglédbercel
Eladó családi ház

Ceglédbercel

65.9 M Ft
3 szoba
97 m²
Tápióság
Eladó családi ház

Tápióság

36.99 M Ft
2 szoba
81 m²
Nyáregyháza
Eladó családi ház

Nyáregyháza

189 M Ft
2 szoba
260 m²
Hásságy
Eladó családi ház

Hásságy

29.9 M Ft
2 szoba
70 m²
Ceglédbercel
Eladó családi ház

Ceglédbercel

65.9 M Ft
3 szoba
97 m²
Farmos
Eladó családi ház

Farmos

59.9 M Ft
4 szoba
90 m²
Cserépfalu
Eladó családi ház

Cserépfalu

58 M Ft
6 szoba
184 m²