Aerogate Homes

Eladó téglalakás
Herend, 1. emelet

Figyelem!

Ez az ingatlan a 2019.07.01-től induló falusi CSOK által támogatott településen található

+ 10 kép 1/13
79 000 000 Ft79 M Ft 1 000 000 Ft/m2
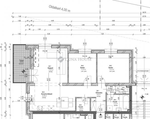
3 szoba
79 m²
1. emelet
építés éve:2026

Részletes adatok

Fűtés: Egyéb
Emelet: 1. emelet
Energetikai besorolás: Nem adta meg a hirdető

Az OTP Bank lakáshitel ajánlataFizetett hirdetés

3688815003
Grósz Henrietta
Veszprém DH

Érdekel az OTP Bank kedvezményes lakáshitel ajánlata? *

* A kérdésre „Igen” válasz bejelölése esetén, az „Üzenet küldése” gombra kattintva kijelentem, hogy az OTP Bank Nyrt. Adatkezelési tájékoztatójának tartalmát megismertem és tudomásul vettem.

Eladó téglalakás leírása

*** Eladó Újépítésű ingatlanok Herend szívében minden karnyújtásnyira ***

Megvételre kínálok Veszprém kedvelt agglomerációjában, újépítésű lakásokat.

Herend, a világhírű porcelán hazája, ahol a nyugodt kisvárosi élet kényelme találkozik a mindennapi praktikumokkal. A társasház a város központjában helyezkedik el, pár perc sétára boltoktól, orvosi rendelőtől, gyógyszertártól, étteremtől, játszótértől és gondozott parktól. Herend, Veszprém közelsége miatt ideális választás azoknak is, akik csendes, biztonságos környezetben élnének, mégis gyorsan elérnék a nagyobb várost.

Kiváló minőség, modern kialakítás, zárt parkos környezet!
Nagyszerű elhelyezkedéssel, 22 lakásos, új építésű társasház kerül kialakításra, sorompóval zárt területen, felszíni gépkocsi-beállókkal, tárolókkal. A projekt célja olyan korszerű, energiatakarékos otthonok létrehozása, amelyek hosszú távon értékállóak maradnak.

A lakásokhoz térkövezett, udvari beálló vásárolható, amely vételára bruttó 1 000 000 Ft.
Minden szinten, minden lakáshoz tároló helyiségek kerültek kialakításra, amit most AJÁNDÉKBA ad a kivitelező.

Legfontosabb műszaki jellemzők,

Falazat:
Külső főfalak: 30 cm-es Leier N+F falazóelem, falazóhabarccsal vagy ragasztóhabbal
Lakáselválasztó falak: Leiertherm 25/30 AKU MD hanggátló téglafal

Nyílászárók:
Műanyag, legalább 5 kamrás, 82 mm-es, 3 rétegű üvegezés
Kiváló hő- és hangszigetelés, redőny előkészítés minden nyílászárónál (vakolt rejtett redőnytokok, elektromos kiállással)

Fűtés-hűtés:
Fűtésről energiatakarékos hőszivattyús padlófűtés, hűtésről fan-coil rendszer gondoskodik, helyiségenként szabályozva.

Burkolatok:
Vevő által választható, I. osztályú hideg- és melegburkolatok, ár kerettel
Fürdőszobákban minőségi szaniterek, RAVAK zuhanykabin vagy kád

Homlokzati szigetelés:
15 cm vastag EPS hőszigetelés, nemesvakolat befejezéssel

Tetőfedés:
Antracit színű betoncserép, korszerű víz- és páraelvezetéssel

Hang- és hőszigetelés:
Valamennyi födém, válaszfal és nyílászáró kialakítása megfelel a korszerű épületenergetikai előírásoknak

Előnyök röviden:
Zárt, biztonságos, parkosított udvar
Saját gépkocsi-beálló
Minden lakáshoz külön tároló, mely benne van az árban
Modern hűtés-fűtés
Választható burkolatok és szaniterek
Kiváló hang- és hőszigetelés
Ideális saját részre és befektetésnek is

Amennyiben hirdetésem felkeltette érdeklődését, valamint további információra van szüksége, várom hívást.

A hirdetésben szereplő FIX 3%-os lakáshitel részét képező támogatásokat Magyarország Kormánya nyújtja.

Hirdetés feltöltve: 2026. 04. 10. Utoljára módosítva: 2026. 04. 10.

Az ingatlan elhelyezkedése

Cím: Herend, 1. emelet

Eladó ingatlanok a környékről

Balatonakarattya
Eladó családi ház

Balatonakarattya

81.9 M Ft
3 szoba
87 m²
Herend
Eladó téglalakás

Herend

79 M Ft
3 szoba
79 m²
Balatonakarattya
Eladó téglalakás

Balatonakarattya

184.95 M Ft
2 szoba
70 m²
Balatonakarattya
Eladó téglalakás

Balatonakarattya

176.581 M Ft
2 szoba
67 m²
Balatonakarattya
Eladó téglalakás

Balatonakarattya

225.4 M Ft
3 szoba
86 m²
Herend
Eladó téglalakás

Herend

59.99 M Ft
3 szoba
69 m²
Herend
Eladó téglalakás

Herend

82.9 M Ft
3 szoba
82 m²
Alsóörs
Eladó téglalakás

Alsóörs

81 M Ft
2 szoba
38 m²
Herend
Eladó téglalakás

Herend

64.9 M Ft
2 szoba
59 m²
Úrkút
Eladó téglalakás

Úrkút

149 M Ft
14 szoba
386 m²
Herend
Eladó téglalakás

Herend

64.9 M Ft
2 szoba
59 m²
Herend
Eladó téglalakás

Herend

57 M Ft
2 szoba
59 m²
Balatonkenese, Mókus utca
Eladó családi ház

Balatonkenese

111.9 M Ft
4 szoba
131 m²
Pápa
Eladó téglalakás

Pápa

51.3 M Ft
3 szoba
79 m²
Herend
Eladó téglalakás

Herend

79 M Ft
3 szoba
79 m²
Herend
Eladó téglalakás

Herend

79 M Ft
3 szoba
79 m²
Balatonalmádi
Eladó családi ház

Balatonalmádi

135 M Ft
2 + 1 szoba
80 m²
Herend
Eladó téglalakás

Herend

82.9 M Ft
3 szoba
82 m²
Balatonakarattya
Eladó téglalakás

Balatonakarattya

239.192 M Ft
3 szoba
92 m²
Várpalota
Eladó téglalakás

Várpalota

41.9 M Ft
2 szoba
37 m²
Pápa
Eladó téglalakás

Pápa

55.9 M Ft
3 szoba
86 m²
Mihályháza
Eladó családi ház

Mihályháza

12.99 M Ft
2 szoba
62 m²
Balatonfüred
Eladó téglalakás

Balatonfüred

143 M Ft
3 szoba
83 m²
Herend
Eladó téglalakás

Herend

64.9 M Ft
2 szoba
59 m²

Falusi CSOK ingatlanok

Cserépfalu
Eladó családi ház

Cserépfalu

58 M Ft
4 szoba
143 m²
Nagybörzsöny
Eladó családi ház

Nagybörzsöny

79.9 M Ft
4 szoba
129 m²
Zalalövő
Eladó családi ház

Zalalövő

23 M Ft
2 szoba
0 m²
Balatonszemes
Eladó téglalakás

Balatonszemes

119.9 M Ft
2 szoba
81 m²
Szentmártonkáta
Eladó családi ház

Szentmártonkáta

51.9 M Ft
5 szoba
150 m²
Bodrogkeresztúr
Eladó családi ház

Bodrogkeresztúr

98 M Ft
3 + 1 szoba
189 m²
Enese
Eladó családi ház

Enese

72.025 M Ft
4 szoba
75 m²
Ásványráró
Eladó családi ház

Ásványráró

42.5 M Ft
703 m²
69 m²

Falusi CSOK ingatlanok

Vásárosdombó
Eladó családi ház

Vásárosdombó

14.99 M Ft
2 szoba
69 m²
Bodajk
Eladó ikerház

Bodajk

69.4 M Ft
5 szoba
90 m²
Kenyeri
Eladó családi ház

Kenyeri

39.9 M Ft
3 szoba
94 m²
Ceglédbercel
Eladó családi ház

Ceglédbercel

79.9 M Ft
5 szoba
140 m²
Szabadbattyán
Eladó családi ház

Szabadbattyán

147.99 M Ft
5 szoba
255 m²
Kenyeri
Eladó családi ház

Kenyeri

21.8 M Ft
2 szoba
75 m²
Dunavecse
Eladó családi ház

Dunavecse

37 M Ft
2 szoba
110 m²
Somlójenő
Eladó családi ház

Somlójenő

64.9 M Ft
4 szoba
221 m²