Astora Márvány8

Eladó téglalakás
Hatvan, Csaba utca, földszint

1/2
43 500 000 Ft43.5 M Ft 750 000 Ft/m2
2 szoba
58 m2
földszint

Részletes adatok

Állapot: Átlagos
Fűtés: Gázkazán
Parkolás: Kocsibeálló
Energetikai besorolás: Nem adta meg a hirdető

Az OTP Bank lakáshitel ajánlataFizetett hirdetés

+36 30 370
Szabó Ottó
Hatvan - Mobil Ingatlan - Partneriroda

Érdekel az OTP Bank kedvezményes lakáshitel ajánlata? *

* A kérdésre „Igen” válasz bejelölése esetén, az „Üzenet küldése” gombra kattintva kijelentem, hogy az OTP Bank Nyrt. Adatkezelési tájékoztatójának tartalmát megismertem és tudomásul vettem.

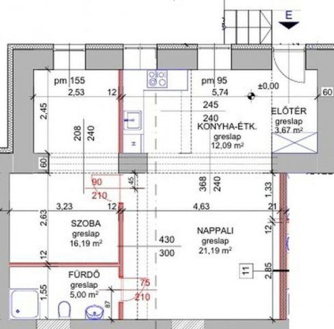
Eladó téglalakás leírása

Hatvan szívében – Teljes körűen felújított, modern földszinti lakás eladó!
Hatvan központjában, a Kossuth tértől mindössze 500 méterre kínálunk eladásra egy 58,1 m²-es, földszinti, önálló bejáratú téglalakást egy 10 lakásos, hőszigetelt társasházban. A 3800 m²-es telek része a 1600 m²-es közös, parkosított zöldfelület, ami kellemes, nyugodt környezetet biztosít a mindennapokra.
A társasház és a lakások teljes körű felújítása szeptemberben kezdődik, amely során fiatalos, modern stílus és kiváló minőségű anyaghasználat kerül előtérbe. Az ingatlan praktikus helyiségkapcsolatokkal, klimatizált nappalival, kondenzációs gázkazánnal és egyéni parkolóhellyel várja új tulajdonosát (a parkoló az ár részét képezi).
Főbb jellemzők:
• 58,1 m², földszinti, önálló bejárattal
• Téglafalazat, hőszigetelt
• Modern, mindenre kiterjedő, teljes körű felújítás
• Kiváló elrendezés
• Klímás nappali
• Kondenzációs gázkazán (fűtés + meleg víz)
• Parkoló az árban
• 1600 m² közös zöldfelület
Lokáció előnyei:
Minden fontos közszolgáltatás, bevásárlási lehetőség, a Zagyva kerékpárút, kondipark és futópálya 500 méteren belül elérhető. A város központjának nyüzsgése és a zöldövezeti nyugalom egyaránt adott.
Ha szeretne egy modern, kulcsrakész lakást Hatvan egyik legjobb helyén, ne maradjon le erről a lehetőségről!
3%-os hitel igénybe vehető.
Irodánk teljeskörű hitel, jogi, ingatlanközvetítési szolgáltatással és tapasztalattal áll ügyfeleink rendelkezésére.
Hívj most, mielőtt elfogy!”

Mottónk: "Harmonikus kombinációk ingatlan- és pénzügyi kérdésekben."

Irodánk, mely Hatvan főterén, a Kossuth tér 14. szám alatt található, 1998. óta működik Hatvanban és vonzáskörzetében.
Irodánk 8 és 16 óra között tart nyitva, de előre egyeztetett időpontban és a terület specialitását figyelembe véve szükség esetén ezen kívül is ügyfeleink rendelkezésére állunk.

Hirdetés feltöltve: 2025. 08. 28. Utoljára módosítva: 2025. 12. 17.

2 szobás téglalakások ára Hatvanban

Ebből az összehasonlításból megtudhatod, hogyan viszonyul a lakás ára a környékbeli téglalakások átlagos árához. Ez nem azt jelenti, hogy ennyivel olcsóbb vagy drágább, mint amennyit a lakás ér, hanem hogy ennyivel tér el a környékbeli átlagtól.

Ennek a m² ára
Hatvan m² ár
750 e Ft
773 e Ft 3%
Ennek az ára
Hatvan átlagár
43.5 M Ft m Ft
53.2 m Ft 18%

Az ingatlan elhelyezkedése

Cím: Hatvan, Csaba utca, földszint

Eladó téglalakások a környékről

Eladó téglalakás
Eladó téglalakás

Eger

34.9 M Ft
1 szoba
50 m2
Eladó téglalakás
Eladó téglalakás

Gyöngyös

91.114 M Ft
3 szoba
75 m2
Eladó téglalakás
Eladó téglalakás

Hatvan

73.9 M Ft
3 szoba
80 m2
Eladó téglalakás
Eladó téglalakás

Hatvan

36.99 M Ft
2 + 1 szoba
58 m2
Eladó téglalakás
Eladó téglalakás

Hatvan

39.9 M Ft
2 szoba
47 m2
Eladó téglalakás
Eladó téglalakás

Hatvan, Klapka utca

62.3 M Ft
5 szoba
92 m2
Eladó téglalakás
Eladó téglalakás

Eger, Hatvani hóstya, Pacsirta utca

160 M Ft
7 szoba
252 m2
Eladó téglalakás
Eladó téglalakás

Hatvan, Csaba utca

42.2 M Ft
2 szoba
54 m2
Eladó téglalakás
Eladó téglalakás

Hatvan

37.5 M Ft
2 szoba
55 m2
Eladó téglalakás
Eladó téglalakás

Hatvan, Klapka utca

59.5 M Ft
4 szoba
85 m2
Eladó téglalakás
Eladó téglalakás

Hatvan

80.61 M Ft
3 + 1 szoba
88 m2
Eladó téglalakás
Eladó téglalakás

Gyöngyös

133.283 M Ft
4 szoba
165 m2
Eladó téglalakás
Eladó téglalakás

Hatvan

41.9 M Ft
2 szoba
51 m2
Eladó téglalakás
Eladó téglalakás

Hatvan

41.5 M Ft
2 szoba
50 m2
Eladó téglalakás
Eladó téglalakás

Eger, Kertész utca

66.5 M Ft
4 szoba
70 m2
Eladó téglalakás
Eladó téglalakás

Hatvan

36.99 M Ft
2 + 1 szoba
58 m2
Eladó téglalakás
Eladó téglalakás

Gyöngyös

36.6 M Ft
2 szoba
58 m2
Eladó téglalakás
Eladó téglalakás

Eger

57 M Ft
1 szoba
57 m2
Eladó téglalakás
Eladó téglalakás

Eger

79 M Ft
5 szoba
130 m2
Eladó téglalakás
Eladó téglalakás

Eger

86 M Ft
3 szoba
62 m2
Eladó téglalakás
Eladó téglalakás

Eger, Mecset utca

295 M Ft
5 szoba
204 m2
Eladó téglalakás
Eladó téglalakás

Gyöngyös

143.068 M Ft
4 szoba
136 m2
Eladó téglalakás
Eladó téglalakás

Hatvan

36.99 M Ft
2 + 1 szoba
58 m2
Eladó téglalakás
Eladó téglalakás

Hatvan

36.99 M Ft
2 + 1 szoba
58 m2

Falusi CSOK ingatlanok

Eladó családi ház
Eladó családi ház

Ráksi

69.9 M Ft
4 szoba
139 m2
Eladó családi ház
Eladó családi ház

Győrság

475 M Ft
13 szoba
1115 m2
Eladó családi ház
Eladó családi ház

Letenye

49.9 M Ft
7 szoba
220 m2
Eladó családi ház
Eladó családi ház

Mezőlak, Arany János utca

35.7 M Ft
3 szoba
104 m2
Eladó családi ház
Eladó családi ház

Annavölgy

34.99 M Ft
4 szoba
80 m2
Eladó családi ház
Eladó családi ház

Hernádnémeti

18.9 M Ft
2 szoba
62 m2
Eladó családi ház
Eladó családi ház

Kisdér

149.8 M Ft
4 szoba
205 m2
Eladó családi ház
Eladó családi ház

Nemesszalók

41.9 M Ft
5 + 1 szoba
170 m2