Aerogate Homes

Eladó téglalakás
Hajdúnánás, földszint

+ 16 kép 1/19
46 300 000 Ft46.3 M Ft 1 052 273 Ft/m2
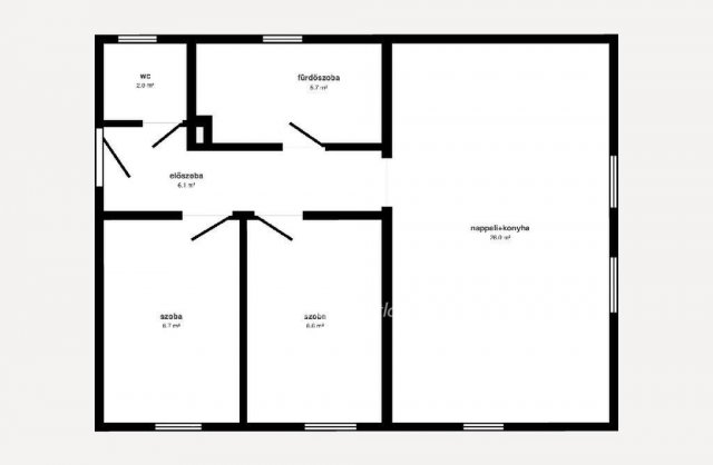
2 szoba
44 m²
földszint
építés éve:2009

Részletes adatok

Állapot: Felújított
Fűtés: Gázkazán
Emelet: földszint
Energetikai besorolás: Nem adta meg a hirdető

Az OTP Bank lakáshitel ajánlataFizetett hirdetés

+36 30 181
Kiss Zoltán Bence
OTPIP Nyíregyháza Hunyadi u.

Érdekel az OTP Bank kedvezményes lakáshitel ajánlata? *

* A kérdésre „Igen” válasz bejelölése esetén, az „Üzenet küldése” gombra kattintva kijelentem, hogy az OTP Bank Nyrt. Adatkezelési tájékoztatójának tartalmát megismertem és tudomásul vettem.

Eladó téglalakás leírása

Eladó 2 szobás, kiváló állapotú lakás Hajdúnánás szívében !

Hajdúnánás belvárosában kínáljuk ezt a 44 nm-es, téglaépítésű, 2 szobás, modern lakást, ahol minden fontos szolgáltatás és üzlet gyalogosan elérhető, a tökéletes elhelyezkedés biztosítja a kényelmet a mindennapokra.

Az ingatlan 2009-ben épült, folyamatosan karbantartott, és 2022-ben korszerű gázkazánnal lett felszerelve. A klímaberendezés még komfortosabbá teszi a lakást a nyári hónapokban.
Belső zárt udvarán biztonságos parkolás biztosított, illetve a kialakított zöld övezet ideális családi események helyszínéhez.

Az ingatlan alacsony fenntartású, ideális választás saját otthonként vagy befektetés céljára, kiváló lakóközösség, kedves szomszédok várják új tulajdonosát.

A bútorok az ingatlan méreteihez készültek, így igény szerint megegyezés tárgyát képezhetik. Rövid időn belül költözhető.

Ne hagyja ki ezt a kiváló lehetőséget Hajdúnánás szívében!

OTP Banki hátterünknek köszönhetően finanszírozási igényekben (pl. Otthon Start Hitelprogram, Babaváró, Falusi CSOK, CSOK Plusz, Lakáshitel, Személyi kölcsön stb.), illetve biztosítások tekintetében is díjmentesen, soron kívüli ügyintézéssel segítem ügyfeleim! Referenciaszám: M321815

Virtuáris séta:

Hirdetés feltöltve: 2026. 04. 18. Utoljára módosítva: 2026. 05. 08.

Az ingatlan elhelyezkedése

Cím: Hajdúnánás, földszint

Eladó ingatlanok a környékről

Hosszúpályi
Eladó telek

Hosszúpályi

12.9 M Ft
1031 m²
0 m²
Debrecen
Eladó téglalakás

Debrecen

69.9 M Ft
4 szoba
95 m²
Mikepércs
Eladó sorház

Mikepércs

80.5 M Ft
3 szoba
84 m²
Hajdúnánás
Eladó téglalakás

Hajdúnánás

42 M Ft
2 + 1 szoba
75 m²
Debrecen
Eladó panellakás

Debrecen

40 M Ft
2 szoba
35 m²
Debrecen, Belváros, Hatvan köz
Eladó téglalakás

Debrecen

83.943 M Ft
2 szoba
64 m²
Debrecen
Eladó téglalakás

Debrecen

106 M Ft
4 szoba
84 m²
Debrecen, Belváros, Piac utca
Eladó téglalakás

Debrecen

124 M Ft
2 szoba
102 m²
Hajdúböszörmény, Szabadhajdú utca
Eladó családi ház

Hajdúböszörmény

114.9 M Ft
5 szoba
245 m²
Debrecen, Belváros, Hatvan köz
Eladó téglalakás

Debrecen

118.936 M Ft
4 szoba
107 m²
Hajdúszoboszló
Eladó telek

Hajdúszoboszló

36.99 M Ft
540 m²
Hajdúnánás
Eladó téglalakás

Hajdúnánás

42 M Ft
2 + 1 szoba
75 m²
Hajdúszoboszló
Eladó téglalakás

Hajdúszoboszló

69 M Ft
2 szoba
45 m²
Hajdúnánás
Eladó téglalakás

Hajdúnánás

46.3 M Ft
2 szoba
44 m²
Hajdúszoboszló
Eladó téglalakás

Hajdúszoboszló

84 M Ft
5 szoba
90 m²
Debrecen
Eladó téglalakás

Debrecen

106 M Ft
3 szoba
83 m²
Debrecen, Belváros, Hatvan köz
Eladó téglalakás

Debrecen

98.181 M Ft
2 szoba
85 m²
Debrecen
Eladó téglalakás

Debrecen

42.9 M Ft
2 szoba
56 m²
Debrecen
Eladó ikerház

Debrecen

132 M Ft
4 szoba
170 m²
Debrecen, Belváros, Hatvan köz
Eladó téglalakás

Debrecen

120.891 M Ft
3 szoba
103 m²
Hajdúszoboszló, József Attila utca
Eladó téglalakás

Hajdúszoboszló

137.5 M Ft
2 szoba
106 m²
Hajdúnánás
Eladó téglalakás

Hajdúnánás

46.3 M Ft
2 szoba
44 m²
Debrecen
Eladó ikerház

Debrecen

119.9 M Ft
4 szoba
123 m²
Debrecen
Eladó téglalakás

Debrecen

87.9 M Ft
3 szoba
64 m²

Falusi CSOK ingatlanok

Balatonszemes, Ady E. utca 6
Eladó téglalakás

Balatonszemes

108.9 M Ft
2 + 1 szoba
63 m²
Balatonőszöd
Eladó családi ház

Balatonőszöd

72 M Ft
4 szoba
92 m²
Kaposfő
Eladó családi ház

Kaposfő

15 M Ft
2 szoba
68 m²
Nemesszentandrás
Eladó családi ház

Nemesszentandrás

68 M Ft
4 szoba
164 m²
Szob
Eladó sorház

Szob

16 M Ft
2 szoba
45 m²
Sárosd
Eladó családi ház

Sárosd

21.9 M Ft
3 szoba
86 m²
Marcalgergelyi
Eladó családi ház

Marcalgergelyi

31 M Ft
2 + 1 szoba
120 m²
Berzence
Eladó családi ház

Berzence

40 M Ft
3 szoba
233 m²