Astora Olive Club House

Eladó téglalakás
Hajdúböszörmény, 1. emelet

+ 6 kép 1/9
61 900 000 Ft61.9 M Ft 897 101 Ft/m2
3 szoba
69 m²
1. emelet
építés éve:2026

Részletes adatok

Fűtés: Egyéb
Emelet: 1. emelet
Parkolás: Kocsibeálló
Komfort: Összkomfortos
Energetikai besorolás: A+

Az OTP Bank lakáshitel ajánlataFizetett hirdetés

+36 30 269
Müller Panna Petra
referens

Érdekel az OTP Bank kedvezményes lakáshitel ajánlata? *

* A kérdésre „Igen” válasz bejelölése esetén, az „Üzenet küldése” gombra kattintva kijelentem, hogy az OTP Bank Nyrt. Adatkezelési tájékoztatójának tartalmát megismertem és tudomásul vettem.

Eladó téglalakás leírása

ÚJ ÉPÍTÉSŰ LAKÁS ELADÓ HAJDÚBÖSZÖRMÉNYBEN – JÓKAI U-BAN

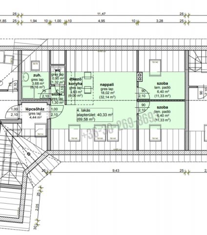
Bruttó:69,58 m², nettó: 40,33 m2-es modern emeleti nappali + 2 szobás lakás leköthető.
Várható költözés: 2026. december

Irányár: 61,9 millió Ft

Elővásárlási kedvezmény 2026. május 31-ig!
AJÁNDÉK GÉPESÍTETT KONYHABÚTOR!

A lakás főbb jellemzői

Korszerű, hőszigetelt épület
Beépített konyhabútor sütővel és főzőlappal
Modern villanyszerelés, minőségi szerelvények
Fürdőszoba teljes burkolattal és szaniterekkel
Hőszivattyús fűtés és hűtés napelemes rendszerrel
Energetikai besorolás: A+
Zárt udvar automata kapuval
Térburkolt parkolók
Nagy zöldfelület, közös kert

Elérhető lakás

4. lakás – Emelet
Bruttó: 69,58 m² – 61.900.000 Ft
Nettó: 40,33 m2

Kültéri parkoló (15 m²): 2.000.000 Ft / db
(a parkoló megvásárlása kötelező)

Kiegészítő lehetőségek
(nem kötelező megvásárolni)
Fedett garázs (17,3 m²) – 10 000 000 Ft / db
Pince tároló (7,61 m²) – 2 800 000 Ft / db
Pince tároló (5,29 m²) – 1 950 000 Ft / db

Kinek ideális ez a lakás?

Fiatal pároknak vagy kisebb családoknak, akik egy modern, energiatakarékos otthonban szeretnék megkezdeni közös életüket.

Befektetőknek, mivel az új építésű, jó műszaki állapotú lakások iránt folyamatos a kereslet, így könnyen kiadható és stabil bérleti bevételt biztosíthat.

Az új építésnek és a korszerű gépészetnek köszönhetően alacsony fenntartási költségekkel lehet számolni, ami hosszú távon jelentős megtakarítást jelent.

Kizárólag irodánk kínálatában!

Teljes körű, ingyenes hitelügyintézés:
CSOK, OSP, Babaváró, piaci hitelek intézése.
Ügyvédi háttér.

Forduljon hozzánk bizalommal – levesszük az ügyintézés terheit az Ön válláról!

Érdeklődés: 06 70 611 1318

Hirdetés feltöltve: 2026. 04. 09. Utoljára módosítva: 2026. 05. 21.

3 szobás téglalakások ára Hajdúböszörményen

Ebből az összehasonlításból megtudhatod, hogyan viszonyul a lakás ára a környékbeli téglalakások átlagos árához. Ez nem azt jelenti, hogy ennyivel olcsóbb vagy drágább, mint amennyit a lakás ér, hanem hogy ennyivel tér el a környékbeli átlagtól.

Ennek a m² ára
Hajdúböszörmény m² ár
897 e Ft
879 e Ft -2%
Ennek az ára
Hajdúböszörmény átlagár
61.9 M Ft m Ft
69.6 m Ft 11%

Az ingatlan elhelyezkedése

Cím: Hajdúböszörmény, 1. emelet

Eladó téglalakások a környékről

Hajdúszoboszló, József Attila utca
Eladó téglalakás

Hajdúszoboszló

137.5 M Ft
2 szoba
106 m²
Hajdúböszörmény
Eladó téglalakás

Hajdúböszörmény

89.9 M Ft
2 szoba
80 m²
Püspökladány
Eladó téglalakás

Püspökladány

39.9 M Ft
1 szoba
336 m²
Hajdúböszörmény
Eladó téglalakás

Hajdúböszörmény

65.9 M Ft
2 szoba
53 m²
Hajdúböszörmény
Eladó téglalakás

Hajdúböszörmény

65 M Ft
4 szoba
67 m²
Hajdúböszörmény
Eladó téglalakás

Hajdúböszörmény

91.9 M Ft
2 szoba
89 m²
Hajdúböszörmény
Eladó téglalakás

Hajdúböszörmény

50 M Ft
2 szoba
52 m²
Hajdúböszörmény
Eladó téglalakás

Hajdúböszörmény

49.9 M Ft
2 szoba
54 m²
Debrecen
Eladó téglalakás

Debrecen

106 M Ft
4 szoba
84 m²
Hajdúböszörmény
Eladó téglalakás

Hajdúböszörmény

49.9 M Ft
2 szoba
54 m²
Hajdúsámson
Eladó téglalakás

Hajdúsámson

75 M Ft
4 szoba
92 m²
Hajdúböszörmény
Eladó téglalakás

Hajdúböszörmény

49.9 M Ft
2 szoba
54 m²
Debrecen
Eladó téglalakás

Debrecen

99.7 M Ft
3 szoba
66 m²
Debrecen
Eladó téglalakás

Debrecen

144.6 M Ft
4 szoba
101 m²
Debrecen
Eladó téglalakás

Debrecen

69.9 M Ft
4 szoba
95 m²
Hajdúböszörmény
Eladó téglalakás

Hajdúböszörmény

59.9 M Ft
3 szoba
86 m²
Debrecen
Eladó téglalakás

Debrecen

71.9 M Ft
2 szoba
52 m²
Debrecen
Eladó téglalakás

Debrecen

86.5 M Ft
3 szoba
62 m²
Hajdúböszörmény
Eladó téglalakás

Hajdúböszörmény

65.9 M Ft
2 szoba
0 m²
Hajdúböszörmény
Eladó téglalakás

Hajdúböszörmény

49.9 M Ft
2 szoba
54 m²
Hajdúböszörmény
Eladó téglalakás

Hajdúböszörmény

65 M Ft
2 szoba
71 m²
Hajdúböszörmény
Eladó téglalakás

Hajdúböszörmény

49.9 M Ft
2 szoba
54 m²
Hajdúszoboszló, József Attila utca
Eladó téglalakás

Hajdúszoboszló

107.5 M Ft
3 szoba
107 m²
Debrecen
Eladó téglalakás

Debrecen

106 M Ft
3 szoba
83 m²

Falusi CSOK ingatlanok

Rábaszentmihály
Eladó családi ház

Rábaszentmihály

53 M Ft
3 szoba
156 m²
Fertőd
Eladó családi ház

Fertőd

140.91 M Ft
4 + 2 szoba
190 m²
Badacsonytomaj
Eladó családi ház

Badacsonytomaj

285 M Ft
4 szoba
230 m²
Nemesnádudvar
Eladó családi ház

Nemesnádudvar

29.9 M Ft
3 szoba
145 m²
Lovasberény
Eladó sorház

Lovasberény

78 M Ft
4 + 1 szoba
124 m²
Arló, Mátyás Király utca
Eladó családi ház

Arló

14.99 M Ft
2 szoba
66 m²
Ceglédbercel
Eladó családi ház

Ceglédbercel

39.9 M Ft
3 szoba
55 m²
Érsekcsanád
Eladó családi ház

Érsekcsanád

69.9 M Ft
4 + 2 szoba
206 m²