BAM Living

Eladó téglalakás
Győr

49 600 000 Ft49.6 M Ft 1 180 952 Ft/m2
1 szoba
42 m²
építés éve:1963

Részletes adatok

Állapot: Átlagos
Fűtés: Távfűtés
Energetikai besorolás: Nem adta meg a hirdető
Zenga Premier

Friss hirdetések, amiket nem találsz meg más ingatlankereső portálon.

Fedezd fel elsőként a Zenga Premier címkés eladó ingatlanokat!

További részletek a zenga.hu-n

Az OTP Bank lakáshitel ajánlataFizetett hirdetés

+36 70 639
Szabó Gábor
Győr Bartók Béla utca 8 - OTP Ingatlanpont Iroda

Érdekel az OTP Bank kedvezményes lakáshitel ajánlata? *

* A kérdésre „Igen” válasz bejelölése esetén, az „Üzenet küldése” gombra kattintva kijelentem, hogy az OTP Bank Nyrt. Adatkezelési tájékoztatójának tartalmát megismertem és tudomásul vettem.

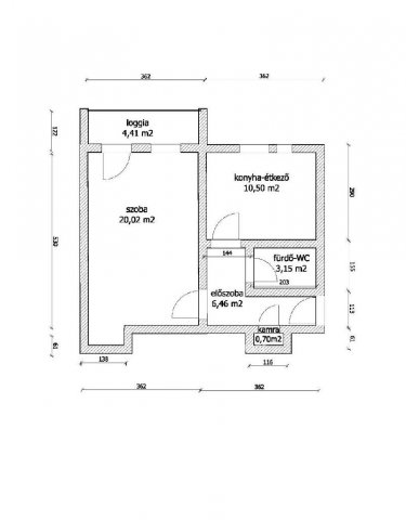
Eladó téglalakás leírása

Erkélyes lakás eladó Győr egyik legkeresettebb városrészében, Nádorvárosban!
Győr kedvelt városrészében, Nádorvárosban kínálok megvételre egy 42 m2-es, 2. emeleti, erkélyes lakást. Az ingatlan 1 szobás, közepes állapotú, így új tulajdonosa saját elképzelései szerint alakíthatja.
A lakás egyik nagy előnye a parkra néző kilátás, amely csendes, nyugodt lakókörnyezetet biztosít. A tágas konyha lehetőséget ad egy kényelmes étkező kialakítására is.
Elhelyezkedésének köszönhetően kiváló választás saját otthonnak vagy befektetésnek, hiszen a környék infrastruktúrája kiváló, minden fontos szolgáltatás könnyen elérhető.
A vásárlás finanszírozásában is segítünk:
INGYENES ügyintézéssel támogatjuk az Otthon Start és Babaváró kölcsön igénylését, valamint egyedi, kedvezményes banki ajánlatokat biztosítunk.
Segítséget nyújtok az adásvételi szerződés megszervezésében, az energetikai tanúsítvány elkészítésében, a banki folyamatok lebonyolításában és a földhivatali ügyintézésben egészen a birtokbaadásig.
Hívjon bizalommal további információért és megtekintésért!
Referencia szám: M324086

Hirdetés feltöltve: 2026. 03. 17. Utoljára módosítva: 2026. 03. 17.

1 szobás téglalakások ára Győrött

Ebből az összehasonlításból megtudhatod, hogyan viszonyul a lakás ára a környékbeli téglalakások átlagos árához. Ez nem azt jelenti, hogy ennyivel olcsóbb vagy drágább, mint amennyit a lakás ér, hanem hogy ennyivel tér el a környékbeli átlagtól.

Ennek a m² ára
Győr m² ár
1181 e Ft
1166 e Ft -1%
Ennek az ára
Győr átlagár
49.6 M Ft m Ft
43.2 m Ft -15%

Az ingatlan elhelyezkedése

Cím: Győr

Eladó téglalakások a környékről

Győr
Eladó téglalakás

Győr

55.844 M Ft
2 szoba
55 m²
Győr
Eladó téglalakás

Győr

38.99 M Ft
2 szoba
46 m²
Győr
Eladó téglalakás

Győr

56.447 M Ft
2 szoba
56 m²
Győr
Eladó téglalakás

Győr

38.99 M Ft
2 szoba
43 m²
Sopron
Eladó téglalakás

Sopron

9.9 M Ft
320 m²
Nagycenk
Eladó téglalakás

Nagycenk

68.9 M Ft
1 + 2 szoba
62 m²
Győr
Eladó téglalakás

Győr

199.99 M Ft
3 + 1 szoba
160 m²
Győr
Eladó téglalakás

Győr

48.99 M Ft
3 szoba
57 m²
Győr
Eladó téglalakás

Győr

38.99 M Ft
2 szoba
46 m²
Győr
Eladó téglalakás

Győr

38.99 M Ft
2 szoba
46 m²
Győr
Eladó téglalakás

Győr

56.447 M Ft
2 szoba
56 m²
Győr
Eladó téglalakás

Győr

60.282 M Ft
3 szoba
59 m²
Győr
Eladó téglalakás

Győr

48.99 M Ft
3 szoba
57 m²
Győr
Eladó téglalakás

Győr

48.99 M Ft
3 szoba
57 m²
Győr
Eladó téglalakás

Győr

38.99 M Ft
2 szoba
43 m²
Győr
Eladó téglalakás

Győr

199.99 M Ft
3 + 1 szoba
160 m²
Győr
Eladó téglalakás

Győr

98.745 M Ft
4 szoba
98 m²
Győr
Eladó téglalakás

Győr

115.875 M Ft
4 szoba
115 m²
Nagycenk
Eladó téglalakás

Nagycenk

59.9 M Ft
1 + 2 szoba
54 m²
Győr
Eladó téglalakás

Győr

38.99 M Ft
2 szoba
43 m²
Győr
Eladó téglalakás

Győr

38.99 M Ft
2 szoba
43 m²
Győr
Eladó téglalakás

Győr

71.978 M Ft
3 szoba
71 m²
Győr
Eladó téglalakás

Győr

48.99 M Ft
3 szoba
57 m²
Győr
Eladó téglalakás

Győr

89 M Ft
4 szoba
112 m²

Falusi CSOK ingatlanok

Balatonszemes
Eladó téglalakás

Balatonszemes

91.5 M Ft
2 szoba
60 m²
Balatonszemes
Eladó téglalakás

Balatonszemes

119.9 M Ft
3 szoba
67 m²
Somogyjád
Eladó családi ház

Somogyjád

35.5 M Ft
2 + 1 szoba
88 m²
Tápiógyörgye
Eladó családi ház

Tápiógyörgye

24.9 M Ft
2 szoba
71 m²
Ceglédbercel
Eladó családi ház

Ceglédbercel

66.66 M Ft
3 szoba
92 m²
Újpetre
Eladó családi ház

Újpetre

22 M Ft
5 szoba
130 m²
Nyírbogdány
Eladó családi ház

Nyírbogdány

48 M Ft
4 szoba
135 m²
Dunatetétlen
Eladó családi ház

Dunatetétlen

37 M Ft
2 szoba
110 m²