BAM Living

Eladó téglalakás
Győr, 2. emelet

+ 1 kép 1/4
64 900 000 Ft64.9 M Ft 1 046 774 Ft/m2
1 + 2 szoba
62 m2
2. emelet
építés éve:2025

Részletes adatok

Telekméret: 62 m2
Fűtés: Házközponti egyedi méréssel
Parkolás: Kocsibeálló
Közmű: Víz, Villany, Csatorna
Energetikai besorolás: Nem adta meg a hirdető

Az OTP Bank lakáshitel ajánlataFizetett hirdetés

+36 20 334
Horváthné Erika
referens

Érdekel az OTP Bank kedvezményes lakáshitel ajánlata? *

* A kérdésre „Igen” válasz bejelölése esetén, az „Üzenet küldése” gombra kattintva kijelentem, hogy az OTP Bank Nyrt. Adatkezelési tájékoztatójának tartalmát megismertem és tudomásul vettem.

Eladó téglalakás leírása

Vámosszabadi-Szitásdomb II. Modern-fiatalos környezetben - szép épületek között épül fel ez az impozáns 35 lakásos társasház. Az épület kialakítása a kortárs építészet szellemében egyszerű, letisztult formavilágú.

Egyedi megjelenés - modern dizájn - energiatakarékos fenntartás.

Várható átadás: 2026. III. negyedéve. A kivitelezés megkezdődött.

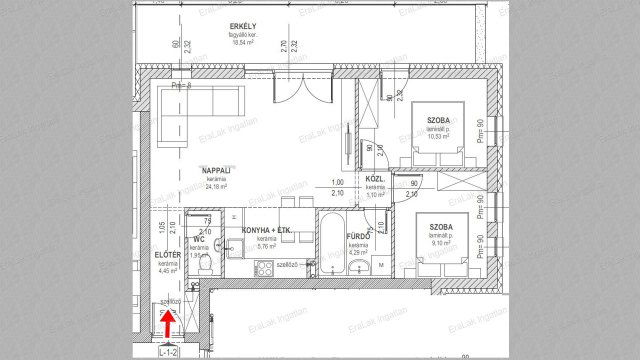
A szóban forgó ingatlan az 2. emeleten lévő 2. számú lakás.

Nettó 61,67 nm + 19 nm-es erkély.

Amerikai konyhás nappali + 2 hálószoba + erkély.

Korlátozott számban az adott emeleten lévő tárolót lehet vásárolni.

Az udvaron belüli kocsibeálló megvásárolandó, melynek ára 1,7 MFt.

Az U alakú épületben 3 szinten lettek a lakások elhelyezve.

A külső- és teherhordó falszerkezetek: POROTHERM 30 N+F falazóelemből,

a lakáselválasztó falazat: LEIEERTHERM 25/30 AKU hanggátló téglából,

a válaszfalak: POROTHERM 10 N+F falazóelemből, 10 cm vastagságban készülnek.

A homlokzati hőszigetelés : 15 cm AUSTROTHERM AT-H80 lesz.

A homlokzati nyílászárók: VEKA 76AD kívül-belül fehér szerkezetek, toktoldókkal, melyek hőszigeteltek. /5légkamrás-3rétegű üvegezéssel/

A hőenergia előállítása központilag, levegő-víz hőszivattyú teleppel lesz megoldva, melyek nyáron hűtést is biztosítanak.

A hőleadás padló- és mennyezetfűtéssel, lakások egyedi hőmennyiségmérővel, szobatermosztáttal, fürdőszobában csővázas radiátorral.

Az árak emeletszintű fűtéskész árat jelentenek.

Telek adásvételi és Vállalkozói kivitelezési szerződéssel, készültségnek megfelelő fizetéssel lehet szerződni.

Kulcsrakész kivitelezés külön megállapodás alapján lehetséges. Erre a bank külön biztosít összeget.

Most még választhat. Nézzük meg együtt ezt a ragyogó ajánlatot. Hívjon, akár hétvégén is.

Irodánkban bankfüggetlen hiteltanácsadással és ügyintézéssel segítjük álmai megvalósításában.

Energetikai és ügyvédi háttér.

Hirdetés feltöltve: 2025. 11. 27.

3 szobás téglalakások ára Győrött

Ebből az összehasonlításból megtudhatod, hogyan viszonyul a lakás ára a környékbeli téglalakások átlagos árához. Ez nem azt jelenti, hogy ennyivel olcsóbb vagy drágább, mint amennyit a lakás ér, hanem hogy ennyivel tér el a környékbeli átlagtól.

Ennek a m² ára
Győr m² ár
1047 e Ft
1006 e Ft -4%
Ennek az ára
Győr átlagár
64.9 M Ft m Ft
71.6 m Ft 9%

Az ingatlan elhelyezkedése

Cím: Győr, 2. emelet

Eladó téglalakások a környékről

Eladó téglalakás
Eladó téglalakás

Sopron, Gólya utca

46.9 M Ft
2 szoba
44 m2
Eladó téglalakás
Eladó téglalakás

Győr

48.99 M Ft
3 szoba
57 m2
Eladó téglalakás
Eladó téglalakás

Nagycenk

63.9 M Ft
1 + 2 szoba
62 m2
Eladó téglalakás
Eladó téglalakás

Sopron

77 M Ft
4 szoba
143 m2
Eladó téglalakás
Eladó téglalakás

Győr

48.99 M Ft
3 szoba
57 m2
Eladó téglalakás
Eladó téglalakás

Győr

71.978 M Ft
3 szoba
71 m2
Eladó téglalakás
Eladó téglalakás

Mosonmagyaróvár

31.9 M Ft
2 + 1 szoba
59 m2
Eladó téglalakás
Eladó téglalakás

Győr

38.99 M Ft
2 szoba
43 m2
Eladó téglalakás
Eladó téglalakás

Győr

98.5 M Ft
3 szoba
96 m2
Eladó téglalakás
Eladó téglalakás

Győr

38.99 M Ft
2 szoba
46 m2
Eladó téglalakás
Eladó téglalakás

Győr

115.875 M Ft
4 szoba
115 m2
Eladó téglalakás
Eladó téglalakás

Sopron

54.99 M Ft
1 + 1 szoba
55 m2
Eladó téglalakás
Eladó téglalakás

Győr

57 M Ft
2 szoba
57 m2
Eladó téglalakás
Eladó téglalakás

Mosonmagyaróvár

46.9 M Ft
2 szoba
60 m2
Eladó téglalakás
Eladó téglalakás

Győr

56.04 M Ft
2 szoba
56 m2
Eladó téglalakás
Eladó téglalakás

Sopron

96.9 M Ft
3 szoba
72 m2
Eladó téglalakás
Eladó téglalakás

Kapuvár, Erzsébet Királyné

31.598 M Ft
1 szoba
37 m2
Eladó téglalakás
Eladó téglalakás

Győr

199.99 M Ft
3 + 1 szoba
160 m2
Eladó téglalakás
Eladó téglalakás

Győr

38.99 M Ft
2 szoba
46 m2
Eladó téglalakás
Eladó téglalakás

Győr

85 M Ft
4 szoba
112 m2
Eladó téglalakás
Eladó téglalakás

Győr

95 M Ft
4 szoba
94 m2
Eladó téglalakás
Eladó téglalakás

Győr

48.99 M Ft
3 szoba
57 m2
Eladó téglalakás
Eladó téglalakás

Győr

38.99 M Ft
2 szoba
43 m2
Eladó téglalakás
Eladó téglalakás

Győr

57.99 M Ft
3 szoba
57 m2

Falusi CSOK ingatlanok

Eladó családi ház
Eladó családi ház

Seregélyes

75 M Ft
6 szoba
160 m2
Eladó téglalakás
Eladó téglalakás

Táborfalva

26.8 M Ft
2 szoba
54 m2
Eladó családi ház
Eladó családi ház

Ságvár

64.9 M Ft
3 szoba
70 m2
Eladó családi ház
Eladó családi ház

Jászkarajenő

19.9 M Ft
3 szoba
81 m2
Eladó családi ház
Eladó családi ház

Sárisáp, Orgona utca

60 M Ft
4 szoba
145 m2
Eladó családi ház
Eladó családi ház

Ceglédbercel, Iskola utca

89.99 M Ft
5 szoba
110 m2
Eladó családi ház
Eladó családi ház

Gégény, Kossuth

15 M Ft
4 szoba
135 m2
Eladó ikerház
Eladó ikerház

Balatonkenese

84.99 M Ft
3 szoba
76 m2