City Pearl

Eladó téglalakás
Győr, 2. emelet

+ 2 kép 1/5
49 779 800 Ft49.78 M Ft 1 059 145 Ft/m2
2 szoba
47 m2
2. emelet

Részletes adatok

Telekméret: 47 m2
Fűtés: Egyéb
Közmű: Víz, Villany, Csatorna
Energetikai besorolás: Nem adta meg a hirdető

Az OTP Bank lakáshitel ajánlataFizetett hirdetés

+36 70 886
Neizer Éva
Trendi Ingatlan

Érdekel az OTP Bank kedvezményes lakáshitel ajánlata? *

* A kérdésre „Igen” válasz bejelölése esetén, az „Üzenet küldése” gombra kattintva kijelentem, hogy az OTP Bank Nyrt. Adatkezelési tájékoztatójának tartalmát megismertem és tudomásul vettem.

Eladó téglalakás leírása

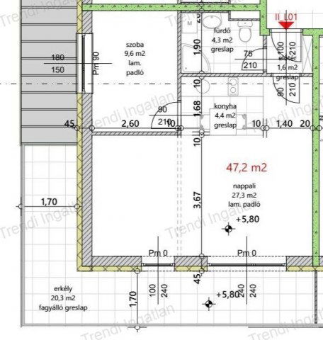
Győr-Belvárosától pár perces autóútra, Szitásdomb új kialakítású részén épülő 35 lakásos társasházban különböző alapterületű lakások eladók.

A meghirdetett 2. emeleten található 47,20 nm-es lakásban amerikai konyhás nappali, szoba, fürdőszoba, külön WC, előtér kerül kialakításra. Nappaliból tágas 20,30 nm-es erkély nyílik.

A lakás fűtéskész ára: 49.779.800 Ft. Kulcsrakész befejezés kérhető.
Gépkocsibeállló ára: 1.900.000 Ft
Garázs ára: 12.000.000 Ft-tól
Lehetőség van tároló vásárlására is, ára: 1.508.000 Ft-tól
Várható átadás: 2027 ősz

Magas műszaki tartalommal épülő társasház 30 cm-es falazóelemből, 15 cm-es homlokzati szigeteléssel épül. A nyílászárók 5 légkamrás profilrendszerű, 3 rétegű üvegezéssel rendelkeznek. A rejtett alumínium elektromos redőny előkészítését és a redőny dobok beépítését a vételár tartalmazza. Az épület fűtését és melegvíz-ellátását hőszivattyú biztosítja. Minden lakás 1 db klíma előkészítéssel rendelkezik. Az épület tetőszerkezetén napelemes rendszer kerül kialakításra, ami a társasház működésének költségeit fogja csökkenteni.

Szitásdomb új kialakítású részén épülő társasházban különböző alapterületű lakások kerülnek kialakításra, így minden kedves érdeklődő megtalálhatja álmai otthonát. A földszinti lakások kertkapcsolattal és terasszal, az emeleti lakások erkéllyel rendelkeznek. A társasház zárt udvarán közös nyitott biciklitároló és felszíni parkolók kerülnek kialakításra.

Bővebb információkért forduljon hozzám bizalommal.
Hétköznap és hétvégén is várom hívását!

Díjmentes, bankfüggetlen hitelügyintézéssel állunk rendelkezésére.

A hirdetésben feltüntetett képek illusztrációk.

Hirdetés feltöltve: 2025. 11. 14. Utoljára módosítva: 2025. 12. 29.

2 szobás téglalakások ára Győrött

Ebből az összehasonlításból megtudhatod, hogyan viszonyul a lakás ára a környékbeli téglalakások átlagos árához. Ez nem azt jelenti, hogy ennyivel olcsóbb vagy drágább, mint amennyit a lakás ér, hanem hogy ennyivel tér el a környékbeli átlagtól.

Ennek a m² ára
Győr m² ár
1059 e Ft
1049 e Ft -1%
Ennek az ára
Győr átlagár
49.78 M Ft m Ft
56.6 m Ft 12%

Az ingatlan elhelyezkedése

Cím: Győr, 2. emelet

Eladó téglalakások a környékről

Eladó téglalakás
Eladó téglalakás

Győr

115.875 M Ft
4 szoba
115 m2
Eladó téglalakás
Eladó téglalakás

Győr

56.447 M Ft
2 szoba
56 m2
Eladó téglalakás
Eladó téglalakás

Győr

85 M Ft
4 szoba
112 m2
Eladó téglalakás
Eladó téglalakás

Győr

71.978 M Ft
3 szoba
71 m2
Eladó téglalakás
Eladó téglalakás

Győr

57.99 M Ft
3 szoba
57 m2
Eladó téglalakás
Eladó téglalakás

Győr

54.99 M Ft
3 szoba
64 m2
Eladó téglalakás
Eladó téglalakás

Győr

38.99 M Ft
2 szoba
43 m2
Eladó téglalakás
Eladó téglalakás

Győr

48.99 M Ft
3 szoba
57 m2
Eladó téglalakás
Eladó téglalakás

Kapuvár, Erzsébet Királyné

31.598 M Ft
1 szoba
37 m2
Eladó téglalakás
Eladó téglalakás

Győr

199.99 M Ft
3 + 1 szoba
160 m2
Eladó téglalakás
Eladó téglalakás

Győr

48.99 M Ft
3 szoba
57 m2
Eladó téglalakás
Eladó téglalakás

Győr

38.99 M Ft
2 szoba
43 m2
Eladó téglalakás
Eladó téglalakás

Győr

38.99 M Ft
2 szoba
46 m2
Eladó téglalakás
Eladó téglalakás

Sopron

96.9 M Ft
3 szoba
72 m2
Eladó téglalakás
Eladó téglalakás

Győr

56.04 M Ft
2 szoba
56 m2
Eladó téglalakás
Eladó téglalakás

Mosonmagyaróvár

46.9 M Ft
2 szoba
60 m2
Eladó téglalakás
Eladó téglalakás

Győr

48.99 M Ft
3 szoba
57 m2
Eladó téglalakás
Eladó téglalakás

Győr

48.99 M Ft
3 szoba
57 m2
Eladó téglalakás
Eladó téglalakás

Győr

38.99 M Ft
2 szoba
46 m2
Eladó téglalakás
Eladó téglalakás

Győr

38.99 M Ft
2 szoba
46 m2
Eladó téglalakás
Eladó téglalakás

Győr

48.99 M Ft
3 szoba
57 m2
Eladó téglalakás
Eladó téglalakás

Győr

55.844 M Ft
2 szoba
55 m2
Eladó téglalakás
Eladó téglalakás

Sopron

109 M Ft
5 szoba
130 m2
Eladó téglalakás
Eladó téglalakás

Sopron

95.7 M Ft
3 szoba
87 m2

Falusi CSOK ingatlanok

Eladó családi ház
Eladó családi ház

Kétegyháza

13.9 M Ft
4 szoba
140 m2
Eladó családi ház
Eladó családi ház

Abaújszántó

19.99 M Ft
3 szoba
84 m2
Eladó téglalakás
Eladó téglalakás

Újlengyel

72.99 M Ft
2 szoba
68 m2
Eladó családi ház
Eladó családi ház

Iváncsa

73.9 M Ft
1 + 3 szoba
97 m2
Eladó családi ház
Eladó családi ház

Sümegcsehi

119 M Ft
5 szoba
237 m2
Eladó családi ház
Eladó családi ház

Nyékládháza

75 M Ft
4 szoba
140 m2
Eladó családi ház
Eladó családi ház

Szirmabesenyő

56 M Ft
5 szoba
127 m2
Eladó családi ház
Eladó családi ház

Mezőzombor

13.8 M Ft
2 + 1 szoba
81 m2