Eladó téglalakás
Győr, 2. emelet 
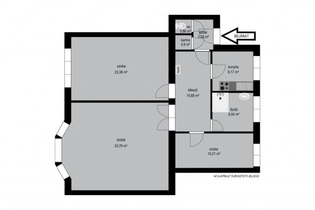
Részletes adatok
Az OTP Bank lakáshitel ajánlataFizetett hirdetés
Induló törlesztőrészlet
101 262 Ft /hóTörlesztőrészlet a 13. hónaptól
129 106 Ft /hóInduló törlesztőrészlet
135 016 Ft /hóTörlesztőrészlet a 13. hónaptól
172 142 Ft /hóA tájékoztatás nem teljes körű és nem minősül ajánlattételnek. Az OTP Évnyerő Lakáshitelei 1 éves türelmi idős kölcsönök, amellyel az első 12 hónapban alacsonyabb a havi törlesztőrészlet. A tőke törlesztését a 13. hónaptól kell megkezdeni.
Eladó téglalakás leírása
Győr történelmi belvárosában, az egyik legszebb belső udvarral rendelkező, három szintes épületében található ez a második emeleti, 94 m²-es, tágas és világos lakás.
Elosztása szerint: 1 hatalmas nappali, 1 nagyméretű szoba, 1 félszoba, konyha, étkező, fürdőszoba, wc, kamra, előszoba, helyiségekből áll. Az ingatlan átlagos állapotú, de számos lehetőséget rejt magában, hogy saját ízlésére formálja. A régi nagypolgári lakásokban talán az a legizgalmasabb, hogy ízlés szerint formálhatók szinte bármilyen stílusúra, a lofttól a klasszikusig, a minimáltól az eklektikáig bármi szóba jöhet. Így ez is tökéletes megoldást kínál azok számára, akik értékelik a klasszikus stílust, a központi fekvést és a kényelmet. 
A fűtésről saját gázkazán gondoskodik, radiátoros hőleadókkal. A nyílászárók faablakok, az utcafronton redőnnyel felszereltek.
Vastag falainak köszönhetően a nagy belmagasság ellenére is kedvező a fűtési költség!
A klasszikus stílust sugárzó ház, a bájos belső udvarával, a nagy belmagassággal, remekül visszaadja az ingatlan eredeti patinás mivoltát.
PARKOLÁS: a környező utcákban fizetős, de a parkoláshoz kedvezményes lakossági bérlet igényelhető, vagy a közelben levő parkolóházak valamelyikében is lehetséges fix béreltet váltani.
TÁROLÓ: a lakáshoz tartozik egy saját tároló a pinceszinten.
KINEK AJÁNLOM?
Frekventált elhelyezkedése és mérete révén alkalmas lehet vállalkozások számára, exkluzív irodának, rendelőnek, vagy akár szépségszalonnak, de egy meghitt családi otthonként is jól funkcionál.
Befektetők számára is kiváló lehetőség, hiszen a nagyvárosok belvárosi ingatlanjai örök, értékálló befektetések, könnyen kiadhatók, szükség esetén gyorsan értékesíthetőek.
Ma is nagy presztízsérteke van annak, ha valaki egy ilyen lakás tulajdonosa lehet.
Ügyfeleimnek az adásvétel során teljes körű lebonyolítást vállalok, igény esetén bankfüggetlen, díjmentes hiteltanácsadással és ügyintézéssel segítem őket.
Várom hívását!
Hirdetés feltöltve: 2025. 10. 08. Utoljára módosítva: 2025. 10. 09.
3 szobás téglalakások ára Győrött
Ebből az összehasonlításból megtudhatod, hogyan viszonyul a lakás ára a környékbeli téglalakások átlagos árához. Ez nem azt jelenti, hogy ennyivel olcsóbb vagy drágább, mint amennyit a lakás ér, hanem hogy ennyivel tér el a környékbeli átlagtól.
Az ingatlan elhelyezkedése
Cím: Győr, 2. emelet
 
 
 
 
 
 
 
 
 
 
 
 
 
 
 
 
 
 
 
 
 
 
 
 
 
 
 
 
 
 
 
 
 
