Avico Greentop

Eladó téglalakás
Gyöngyös

+ 7 kép 1/10
49 500 000 Ft49.5 M Ft 707 143 Ft/m2
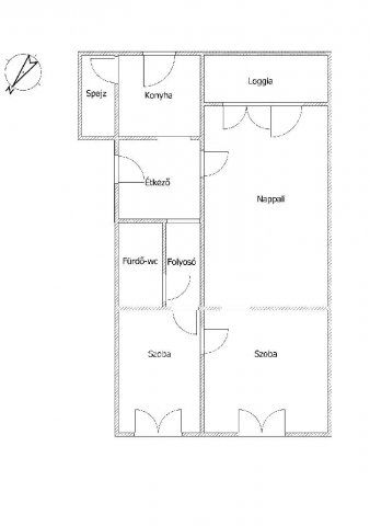
2 + 1 szoba
70 m2
építés éve:1970

Részletes adatok

Állapot: Átlagos
Fűtés: Gázkazán
Energetikai besorolás: Nem adta meg a hirdető

Az OTP Bank lakáshitel ajánlataFizetett hirdetés

+36 30 903
Sánta István
referens

Érdekel az OTP Bank kedvezményes lakáshitel ajánlata? *

* A kérdésre „Igen” válasz bejelölése esetén, az „Üzenet küldése” gombra kattintva kijelentem, hogy az OTP Bank Nyrt. Adatkezelési tájékoztatójának tartalmát megismertem és tudomásul vettem.

Eladó téglalakás leírása

Gyöngyösön, 70m2-es lakást kínálok eladásra!
Az ingatlan a város kedvelt, Csalogány utcai részén, a földszinten található.
Kedveltségét a jó lakóközösség, közbiztonsága teszi híressé. A tégla építésű ház értékét emelik az remek statikai állapota, lakók által megóvott közös terei . A közös udvart mindössze az első emeleti lakóval kell megosztani. A tulajdoni lapon is szerepelő, saját, 20m2-es garázs önmagában is jelentős értéket képvisel! A lakás jó elosztású, gázcirkós fűtése, villanybojleres meleg víz adója jó állapotú. Tisztasági festés után akár azonnal költözhető.
Amennyiben a fotók és információk felkeltették figyelmét keressen bizalommal!

Hirdetés feltöltve: 2025. 12. 10. Utoljára módosítva: 2025. 12. 30.

3 szobás téglalakások ára Gyöngyösön

Ebből az összehasonlításból megtudhatod, hogyan viszonyul a lakás ára a környékbeli téglalakások átlagos árához. Ez nem azt jelenti, hogy ennyivel olcsóbb vagy drágább, mint amennyit a lakás ér, hanem hogy ennyivel tér el a környékbeli átlagtól.

Ennek a m² ára
Gyöngyös m² ár
707 e Ft
668 e Ft -6%
Ennek az ára
Gyöngyös átlagár
49.5 M Ft m Ft
57.1 m Ft 13%

Az ingatlan elhelyezkedése

Cím: Gyöngyös

Eladó téglalakások a környékről

Eladó téglalakás
Eladó téglalakás

Gyöngyös

39.99 M Ft
4 szoba
96 m2
Eladó téglalakás
Eladó téglalakás

Gyöngyös

53 M Ft
3 szoba
77 m2
Eladó téglalakás
Eladó téglalakás

Gyöngyös

91.114 M Ft
3 szoba
75 m2
Eladó téglalakás
Eladó téglalakás

Eger

94.5 M Ft
4 szoba
85 m2
Eladó téglalakás
Eladó téglalakás

Eger

39 M Ft
1 szoba
30 m2
Eladó téglalakás
Eladó téglalakás

Hatvan

80.61 M Ft
3 + 1 szoba
88 m2
Eladó téglalakás
Eladó téglalakás

Gyöngyös

133.283 M Ft
4 szoba
165 m2
Eladó téglalakás
Eladó téglalakás

Gyöngyös

29.5 M Ft
1 + 1 szoba
50 m2
Eladó téglalakás
Eladó téglalakás

Gyöngyös

91.114 M Ft
3 szoba
75 m2
Eladó téglalakás
Eladó téglalakás

Gyöngyös

36.6 M Ft
2 szoba
58 m2
Eladó téglalakás
Eladó téglalakás

Gyöngyös

143.068 M Ft
4 szoba
136 m2
Eladó téglalakás
Eladó téglalakás

Eger

75.9 M Ft
3 szoba
68 m2
Eladó téglalakás
Eladó téglalakás

Gyöngyös

133.283 M Ft
4 szoba
165 m2
Eladó téglalakás
Eladó téglalakás

Hatvan

42.9 M Ft
6 szoba
151 m2
Eladó téglalakás
Eladó téglalakás

Gyöngyös

43.12 M Ft
2 + 1 szoba
77 m2
Eladó téglalakás
Eladó téglalakás

Gyöngyös

45 M Ft
2 + 2 szoba
98 m2
Eladó téglalakás
Eladó téglalakás

Eger, Kertész utca

66.5 M Ft
4 szoba
70 m2
Eladó téglalakás
Eladó téglalakás

Gyöngyös

133.283 M Ft
4 szoba
165 m2
Eladó téglalakás
Eladó téglalakás

Gyöngyös

108.091 M Ft
4 szoba
107 m2
Eladó téglalakás
Eladó téglalakás

Gyöngyös, Katona József utca

41.8 M Ft
2 szoba
75 m2
Eladó téglalakás
Eladó téglalakás

Eger, Mecset utca

295 M Ft
5 szoba
204 m2
Eladó téglalakás
Eladó téglalakás

Eger

56 M Ft
2 szoba
53 m2
Eladó téglalakás
Eladó téglalakás

Gyöngyös

133.283 M Ft
4 szoba
165 m2
Eladó téglalakás
Eladó téglalakás

Gyöngyös

49.5 M Ft
2 + 2 szoba
98 m2

Falusi CSOK ingatlanok

Eladó családi ház
Eladó családi ház

Hahót

64.9 M Ft
5 szoba
118 m2
Eladó családi ház
Eladó családi ház

Pápakovácsi

33 M Ft
3 szoba
87 m2
Eladó családi ház
Eladó családi ház

Onga

72.9 M Ft
4 szoba
109 m2
Eladó családi ház
Eladó családi ház

Egyed

24.9 M Ft
2 + 1 szoba
56 m2
Eladó családi ház
Eladó családi ház

Pécsely, Szőlő Dülő

399 M Ft
4 + 2 szoba
183 m2
Eladó családi ház
Eladó családi ház

Vasszécseny

20 M Ft
2 szoba
139 m2
Eladó családi ház
Eladó családi ház

Balatonszentgyörgy

60.579 M Ft
4 szoba
126 m2
Eladó családi ház
Eladó családi ház

Nyékládháza

75 M Ft
4 szoba
140 m2