Avico Greentop

Eladó téglalakás
Fonyód, Családi ház

Figyelem!

Ez az ingatlan a 2019.07.01-től induló falusi CSOK által támogatott településen található

+ 10 kép 1/13
64 192 000 Ft64.192 M Ft 1 689 263 Ft/m2
1 + 1 szoba
38 m2
Családi ház
építés éve:2025

Részletes adatok

Fűtés: Egyéb
Emelet: 1. emelet
Extrák: Lift
Energetikai besorolás: A

Az OTP Bank lakáshitel ajánlataFizetett hirdetés

+36 70 334
Pál Miklós
referens

Érdekel az OTP Bank kedvezményes lakáshitel ajánlata? *

* A kérdésre „Igen” válasz bejelölése esetén, az „Üzenet küldése” gombra kattintva kijelentem, hogy az OTP Bank Nyrt. Adatkezelési tájékoztatójának tartalmát megismertem és tudomásul vettem.

Eladó téglalakás leírása

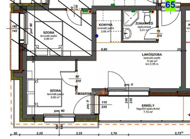
A ütem első emelet 65, 1+1 szoba. Balaton déli partjának egyik leghosszabb szabad strandjának közelében, Fonyódon új építésű lakóparkban kínálunk ingatlanokat kedvező áron. Az 50 lakásból, apartmanból, nyaralóból álló modern épület luxus színvonalú és meghatározó szereplője a környéknek. A tervezés során a magas műszaki tartalom mellett fontos szempont volt, hogy jól funkcionáló, élhető terek legyenek kialakítva elegáns megjelenésű épületben. Minden lakáshoz tartozik terasz, a földszinti lakásokhoz saját használatú zöld terület biztosított. A fűtésről és a lakás hűtéséről fűtő-hűtő hőszivattyú gondoskodik.
A napozó tetőn közösségi tér a jó használhatóságot biztosítja, ezen kívül jakuzzi és szauna kerül kialakításra Balatonra néző panorámával.
A projekt átadása a tervek szerint: 2026. II. negyedéve.
A lakás besorolás: Társasház A lakásvásárláshoz államilag támogatott hitelek, CSOK, kedvezményes hitelek és lakástámogatási termékek igényelhetőek, ennek elérésében díjmentes szolgáltatásunkkal segítjük a vásárlást!
Érdeklődni: Otp Ingatlanpont Kft. Pál Miklós 70 3341099

Referencia szám: M298999-ZE

Hirdetés feltöltve: 2025. 03. 27. Utoljára módosítva: 2026. 01. 25.

2 szobás téglalakások ára Fonyódon

Ebből az összehasonlításból megtudhatod, hogyan viszonyul a lakás ára a környékbeli téglalakások átlagos árához. Ez nem azt jelenti, hogy ennyivel olcsóbb vagy drágább, mint amennyit a lakás ér, hanem hogy ennyivel tér el a környékbeli átlagtól.

Ennek a m² ára
Fonyód m² ár
1689 e Ft
1307 e Ft -29%
Ennek az ára
Fonyód átlagár
64.192 M Ft m Ft
70 m Ft 8%

Az ingatlan elhelyezkedése

Cím: Fonyód, Családi ház

Eladó téglalakások a környékről

Eladó téglalakás
Eladó téglalakás

Fonyód

92.923 M Ft
3 szoba
62 m2
Eladó téglalakás
Eladó téglalakás

Balatonfenyves

563.75 M Ft
4 szoba
114 m2
Eladó téglalakás
Eladó téglalakás

Fonyód

55 M Ft
3 szoba
85 m2
Eladó téglalakás
Eladó téglalakás

Balatonfenyves

218.75 M Ft
2 szoba
66 m2
Eladó téglalakás
Eladó téglalakás

Fonyód

81.638 M Ft
2 szoba
55 m2
Eladó téglalakás
Eladó téglalakás

Balatonfenyves

115.625 M Ft
2 szoba
51 m2
Eladó téglalakás
Eladó téglalakás

Balatonfenyves

135.05 M Ft
2 szoba
59 m2
Eladó téglalakás
Eladó téglalakás

Fonyód

59.99 M Ft
2 szoba
36 m2
Eladó téglalakás
Eladó téglalakás

Fonyód

49.99 M Ft
1 szoba
31 m2
Eladó téglalakás
Eladó téglalakás

Balatonföldvár

125.4 M Ft
4 szoba
114 m2
Eladó téglalakás
Eladó téglalakás

Fonyód

101.54 M Ft
3 + 1 szoba
86 m2
Eladó téglalakás
Eladó téglalakás

Siófok, Ezustparti utca

84.9 M Ft
3 szoba
58 m2
Eladó téglalakás
Eladó téglalakás

Balatonfenyves

127.65 M Ft
2 szoba
51 m2
Eladó téglalakás
Eladó téglalakás

Fonyód

52.417 M Ft
2 szoba
30 m2
Eladó téglalakás
Eladó téglalakás

Fonyód

75.788 M Ft
3 szoba
51 m2
Eladó téglalakás
Eladó téglalakás

Fonyód

61.99 M Ft
3 szoba
109 m2
Eladó téglalakás
Eladó téglalakás

Balatonfenyves

78.975 M Ft
1 szoba
35 m2
Eladó téglalakás
Eladó téglalakás

Balatonszemes, Ady E. utca 6

132.9 M Ft
3 szoba
62 m2
Eladó téglalakás
Eladó téglalakás

Fonyód

99 M Ft
3 szoba
75 m2
Eladó téglalakás
Eladó téglalakás

Siófok, Ezustparti utca

86.9 M Ft
3 szoba
60 m2
Eladó téglalakás
Eladó téglalakás

Fonyód

55 M Ft
3 szoba
85 m2
Eladó téglalakás
Eladó téglalakás

Balatonfenyves

213.4 M Ft
3 szoba
73 m2
Eladó téglalakás
Eladó téglalakás

Fonyód

101.54 M Ft
3 + 1 szoba
86 m2
Eladó téglalakás
Eladó téglalakás

Balatonfenyves

78 M Ft
1 szoba
35 m2

Falusi CSOK ingatlanok

Eladó családi ház
Eladó családi ház

Tab

58.5 M Ft
4 szoba
80 m2
Eladó családi ház
Eladó családi ház

Csengőd

42 M Ft
2 szoba
81 m2
Eladó családi ház
Eladó családi ház

Nagypall, Szabadság utca

35.9 M Ft
3 szoba
125 m2
Eladó családi ház
Eladó családi ház

Szőlősgyörök

85 M Ft
6 szoba
243 m2
Eladó családi ház
Eladó családi ház

Egyed

24.9 M Ft
2 + 1 szoba
56 m2
Eladó családi ház
Eladó családi ház

Véménd, Rákóczi Ferenc utca

31 M Ft
4 szoba
120 m2
Eladó családi ház
Eladó családi ház

Gyömöre

45.99 M Ft
2 szoba
118 m2
Eladó családi ház
Eladó családi ház

Balatonudvari

79.9 M Ft
4 szoba
97 m2

Falusi CSOK ingatlanok

Eladó családi ház
Eladó családi ház

Balatonudvari

79.9 M Ft
4 szoba
97 m2
Eladó családi ház
Eladó családi ház

Hosszúpereszteg

27.9 M Ft
4 szoba
121 m2
Eladó családi ház
Eladó családi ház

Vid

29 M Ft
4 szoba
100 m2
Eladó családi ház
Eladó családi ház

Balatonszepezd

299 M Ft
5 szoba
220 m2
Eladó családi ház
Eladó családi ház

Tapsony

23.8 M Ft
3 szoba
130 m2
Eladó családi ház
Eladó családi ház

Szászvár, Zártkert

3.4 M Ft
1 szoba
58 m2
Eladó családi ház
Eladó családi ház

Rábapaty

99.99 M Ft
5 szoba
132 m2
Eladó családi ház
Eladó családi ház

Somogygeszti

38.6 M Ft
3 + 1 szoba
98 m2