Avico Greentop

Eladó téglalakás
Érd, Családi ház

+ 11 kép 1/14
87 500 000 Ft87.5 M Ft 1 182 432 Ft/m2
3 szoba
74 m2
Családi ház
építés éve:2026

Részletes adatok

Fűtés: Egyéb
Emelet: 1. emelet
Energetikai besorolás: A

Az OTP Bank lakáshitel ajánlataFizetett hirdetés

+36 70 242
Erdélyi Miklós István
Otp Ingatlanpont Falk Miksa

Érdekel az OTP Bank kedvezményes lakáshitel ajánlata? *

* A kérdésre „Igen” válasz bejelölése esetén, az „Üzenet küldése” gombra kattintva kijelentem, hogy az OTP Bank Nyrt. Adatkezelési tájékoztatójának tartalmát megismertem és tudomásul vettem.

Eladó téglalakás leírása

Új építésű otthonok Érd központjában kiemelkedő minőség és kényelem!

Fedezzen fel Érd központjához közel egy prémium kategóriás, új építésű társasház lakásait, melyek tágas teraszokkal/erkélyekkel, vagy akár saját kerttel is rendelkeznek!

Kiemelt figyelmet fordítottunk a kiváló infrastruktúrára, a magas minőségű kivitelezésre és a kényelmes, funkcionális élettérre.

E 15 lakásos társasház lakásai már leköthetők, az aktuális szabad listáról telefonon tudom tájékoztatni.

Műszaki tartalom: Korszerű és energiatakarékos megoldások:

A lakások a legmodernebb technológiákkal és minőségi anyagokkal épülnek, biztosítva a hosszú távú értékállóságot és az alacsony rezsiköltségeket.

Szerkezet: Tartós beton alap, Porotherm tégla főfalak 15 cm-es Dryvit szigeteléssel. A belső falak Porotherm hanggátló blokktéglából készülnek.

Födém és tető: Stabil monolit beton födém 25 cm kőzetgyapot szigeteléssel a kiváló hőszigetelésért, cserép fedésű tetővel, padlásszigetelés 30 cm.

Nyílászárók: Prémium minőségű, műanyag szerkezetű külső nyílászárók 3 rétegű, fokozottan hőszigetelt üvegezéssel, kívül antracit, belül fehér színben, rejtett redőnytok beépítéssel és elektromos redőny előkészítéssel (redőnyök és szúnyoghálók külön rendelhetők). A belső ajtók dekorfóliás kivitelűek.

Fűtés és hűtés:

Hőszivattyús rendszer: Minden helyiségben padlófűtés biztosítja az egyenletes meleget, lakásonkénti hőmennyiségmérővel.

Fan-coil rendszer: A nappaliban felszerelt magasfali Fan-coil egység, valamint a szobákban lévő előkészítés lehetővé teszi mind a fűtést, mind a hatékony hűtést.

Fürdőszoba: Kényelmi törölközőszárítós radiátor a fürdőszobákban.

Melegvíz: Hőszivattyús villanybojlerek biztosítják a melegvíz ellátást.

Egyedi befejezés: Lehetőség van a hideg és meleg burkolatok egyéni kiválasztására a műszaki tartalomban rögzített árak szerint.

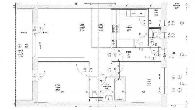
E hirdetésben szereplő lakás:
10-es lakás

Elérhető lakások a társasházban (folyamatosan változik):
Földszint:

1-es lakás: ELADVA!
2-es lakás: ELADVA!
3-as lakás: Nappali + 2 hálószoba (68,18 m2 + 25,38 m2 terasz + 35 m2 saját kert). Ára: 94,5 millió Ft, tartozik hozzá 1db kocsibeálló és 1db tároló!
4-es lakás: Nappali + 2 hálószoba (72,12 m2 + 28,7 m2 terasz + 35 m2 saját kert). Ára: 99,5 millió Ft, tartozik hozzá 1db kocsibeálló és 1db tároló!
5-ös lakás: ELADVA!
6-os lakás: ELADVA!

I. Emelet:
7-es lakás: LEKÖTVE!
8-as lakás: Nappali + 1 hálószoba (59 m2 + 19,97 m2 terasz). Ára: 81,4 millió Ft, tartozik hozzá 1db kocsibeálló és 1db tároló!
9-es lakás: ELADVA!
10-es lakás: Nappali + 2 hálószoba (68.18m2 + erkély 13.13m2) Ára: 87,5 millió Ft, tartozik hozzá 1db kocsibeálló és 1db tároló!
11-es lakás: ELADVA!
12-es lakás: ELADVA!
13-as lakás: LEKÖTVE!

II. Emelet:

14-es lakás: ELADVA!
15-ös lakás: ELADVA!

Várható átadás: 2026. március.

Az ár a kulcsrakész állapotra vonatkozik, a képek referencia- és látványképeket is tartalmaznak. (Az ár konyhabútort nem tartalmaz).

A hirdetésben szereplő információkat a kivitelezőtől kapott adatok alapján közöltem.

Ingatlanjogász ügyvédi iroda vagyunk.

Referencia szám: M306644-ZE

Hirdetés feltöltve: 2025. 12. 13. Utoljára módosítva: 2026. 01. 14.

3 szobás téglalakások ára Érden

Ebből az összehasonlításból megtudhatod, hogyan viszonyul a lakás ára a környékbeli téglalakások átlagos árához. Ez nem azt jelenti, hogy ennyivel olcsóbb vagy drágább, mint amennyit a lakás ér, hanem hogy ennyivel tér el a környékbeli átlagtól.

Ennek a m² ára
Érd m² ár
1182 e Ft
1206 e Ft 2%
Ennek az ára
Érd átlagár
87.5 M Ft m Ft
91.1 m Ft 4%

Az ingatlan elhelyezkedése

Cím: Érd, Családi ház

Eladó téglalakások a környékről

Eladó téglalakás
Eladó téglalakás

Göd

42.9 M Ft
3 szoba
61 m2
Eladó téglalakás
Eladó téglalakás

Érd

79.9 M Ft
3 szoba
68 m2
Eladó téglalakás
Eladó téglalakás

Érd

230.76 M Ft
5 szoba
164 m2
Eladó téglalakás
Eladó téglalakás

Érd

54.9 M Ft
3 szoba
83 m2
Eladó téglalakás
Eladó téglalakás

Érd

230.76 M Ft
6 szoba
164 m2
Eladó téglalakás
Eladó téglalakás

Érd

86.9 M Ft
4 szoba
88 m2
Eladó téglalakás
Eladó téglalakás

Göd

29.5 M Ft
2 szoba
44 m2
Eladó téglalakás
Eladó téglalakás

Érd

210 M Ft
3 szoba
82 m2
Eladó téglalakás
Eladó téglalakás

Göd

28.9 M Ft
2 szoba
46 m2
Eladó téglalakás
Eladó téglalakás

Göd

46.5 M Ft
4 szoba
72 m2
Eladó téglalakás
Eladó téglalakás

Göd

32.5 M Ft
2 szoba
44 m2
Eladó téglalakás
Eladó téglalakás

Érd

248 M Ft
6 szoba
164 m2
Eladó téglalakás
Eladó téglalakás

Göd

28.9 M Ft
2 szoba
46 m2
Eladó téglalakás
Eladó téglalakás

Göd

27.9 M Ft
2 szoba
44 m2
Eladó téglalakás
Eladó téglalakás

Göd

27.9 M Ft
2 szoba
43 m2
Eladó téglalakás
Eladó téglalakás

Érd

115 M Ft
3 szoba
108 m2
Eladó téglalakás
Eladó téglalakás

Érd, Érdliget - Kutyavár, Fürdő utca

214.06 M Ft
7 szoba
175 m2
Eladó téglalakás
Eladó téglalakás

Érd

189.53 M Ft
5 szoba
164 m2
Eladó téglalakás
Eladó téglalakás

Érd

230.76 M Ft
4 szoba
163 m2
Eladó téglalakás
Eladó téglalakás

Göd

27.9 M Ft
2 szoba
43 m2
Eladó téglalakás
Eladó téglalakás

Göd

90 M Ft
2 szoba
44 m2
Eladó téglalakás
Eladó téglalakás

Göd

32.9 M Ft
2 szoba
44 m2
Eladó téglalakás
Eladó téglalakás

Göd

44.5 M Ft
3 szoba
70 m2
Eladó téglalakás
Eladó téglalakás

Göd

44.9 M Ft
3 szoba
58 m2

Falusi CSOK ingatlanok

Eladó családi ház
Eladó családi ház

Pánd

31.5 M Ft
4 szoba
74 m2
Eladó családi ház
Eladó családi ház

Telekgerendás

35 M Ft
2 + 1 szoba
95 m2
Eladó családi ház
Eladó családi ház

Bakonyszentiván

9.19 M Ft
2 szoba
89 m2
Eladó családi ház
Eladó családi ház

Nagybörzsöny

79.9 M Ft
4 szoba
149 m2
Eladó családi ház
Eladó családi ház

Perkáta

62.4 M Ft
5 szoba
120 m2
Eladó családi ház
Eladó családi ház

Sorkifalud

12.5 M Ft
2 szoba
70 m2
Eladó családi ház
Eladó családi ház

Látrány

48 M Ft
5 szoba
120 m2
Eladó családi ház
Eladó családi ház

Somogymeggyes

14 M Ft
3 szoba
86 m2