Astora Art House

Eladó téglalakás
Érd, 1. emelet

+ 15 kép 1/18
74 900 000 Ft74.9 M Ft 891 667 Ft/m2
2 + 1 szoba
84 m2
1. emelet
építés éve:2006

Részletes adatok

Fűtés: Gázkazán
Energetikai besorolás: Nem adta meg a hirdető

Az OTP Bank lakáshitel ajánlataFizetett hirdetés

+36 70 941
Terjék Nikolett Erzsébet
OTP Ingatlanpont Dunaharaszti

Érdekel az OTP Bank kedvezményes lakáshitel ajánlata? *

* A kérdésre „Igen” válasz bejelölése esetén, az „Üzenet küldése” gombra kattintva kijelentem, hogy az OTP Bank Nyrt. Adatkezelési tájékoztatójának tartalmát megismertem és tudomásul vettem.

Eladó téglalakás leírása

Kivételes lehetőség Érd Dombosvárosában!
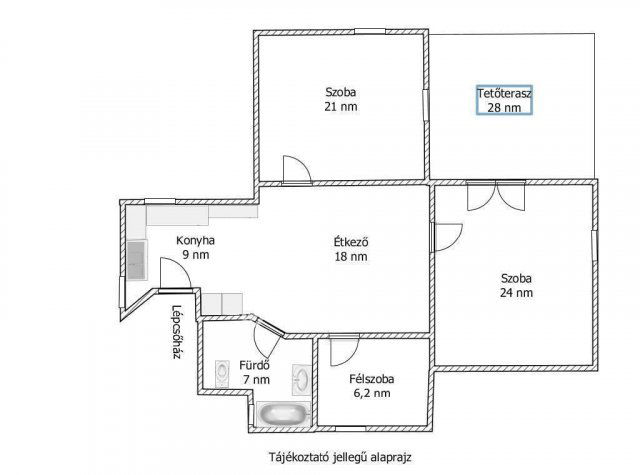
Tágas, panorámás, felújított emeleti lakás eladó, saját kertrésszel!
Érd kedvelt, csendes, családi házas övezetében, Dombosváros városrészben eladó egy kétszintes, 3 lakásos téglaépítésű ház, emeleti lakása.
A 194 nm alapterületű épület 2018-ban teljeskörű felújításon esett át, így a kínált 84,5 nm-es tetőtéri lakás modern, gondozott állapotban várja új tulajdonosát.
A lakás világos, jól átgondolt elrendezésű, 2,5 szobás + étkezős kialakítású, melyhez egy 28 nm-es, panorámás tetőterasz is tartozik, tökéletes helyszín reggeli kávézáshoz vagy esti pihenéshez.

A 718 nm-es, rendezett telken az ingatlanhoz 89 nm saját, lekerített kertrész tartozik, valamint térkövezett autóbeálló biztosít kényelmes parkolási lehetőséget két gépkocsi számára.

Műszaki leírása:
-ház tégla építésű
- betoncserépfedésű,
-5 cm dryvit homlokzati szigeteléssel,
- belső szigetelt válaszfalakkal,
- műanyag, redőnyös és szúnyoghálós nyílászárókkal.
- padlás tárolásra is alkalmas

A fűtésről és melegvízről Ariston kondenzációs kombi cirkó gondoskodik, radiátoros hőleadással, a nappaliban pedig hűtő-fűtő klíma növeli a komfortot.

A rezsi rendkívül kedvező: víz, gáz, villany együttesen mindössze kb. 20.000 Ft / hó átalányban!

Az ingatlan osztatlan közös tulajdon, ügyvédi használati megállapodással, tehermentes.
Közös költség nincs.

Az OTP Bankcsoport teljes körű ügyintézéssel áll az eladók és a vevők rendelkezésére! A kínálatunkból választott ingatlan finanszírozásához kedvezményes hitel konstrukciókat kínálunk. Az adásvételi szerződés megkötéséhez igény szerint megbízható ügyvédi közreműködést biztosítunk, és segítséget nyújtunk az adásvételhez kapcsolódó ügyek intézésében. További információért vagy megtekintéssel kapcsolatban hívjon a hét bármely napján.

Hirdetés feltöltve: 2025. 12. 10.

3 szobás téglalakások ára Érden

Ebből az összehasonlításból megtudhatod, hogyan viszonyul a lakás ára a környékbeli téglalakások átlagos árához. Ez nem azt jelenti, hogy ennyivel olcsóbb vagy drágább, mint amennyit a lakás ér, hanem hogy ennyivel tér el a környékbeli átlagtól.

Ennek a m² ára
Érd m² ár
892 e Ft
1212 e Ft 26%
Ennek az ára
Érd átlagár
74.9 M Ft m Ft
92.5 m Ft 19%

Az ingatlan elhelyezkedése

Cím: Érd, 1. emelet

Eladó téglalakások a környékről

Eladó téglalakás
Eladó téglalakás

Göd

44.9 M Ft
3 szoba
58 m2
Eladó téglalakás
Eladó téglalakás

Érd

79 M Ft
3 + 3 szoba
153 m2
Eladó téglalakás
Eladó téglalakás

Érd

73.9 M Ft
2 szoba
59 m2
Eladó téglalakás
Eladó téglalakás

Göd

27.9 M Ft
2 szoba
43 m2
Eladó téglalakás
Eladó téglalakás

Göd

27.9 M Ft
2 szoba
43 m2
Eladó téglalakás
Eladó téglalakás

Érd

84.9 M Ft
3 szoba
68 m2
Eladó téglalakás
Eladó téglalakás

Érd, Érdliget - Kutyavár, Fürdő utca 7

230.76 M Ft
7 szoba
176 m2
Eladó téglalakás
Eladó téglalakás

Érd

74.9 M Ft
3 szoba
102 m2
Eladó téglalakás
Eladó téglalakás

Göd

42.5 M Ft
3 szoba
65 m2
Eladó téglalakás
Eladó téglalakás

Érd

230.76 M Ft
6 szoba
164 m2
Eladó téglalakás
Eladó téglalakás

Göd

28.9 M Ft
2 szoba
46 m2
Eladó téglalakás
Eladó téglalakás

Érd

248 M Ft
6 szoba
164 m2
Eladó téglalakás
Eladó téglalakás

Érd

86.9 M Ft
4 szoba
88 m2
Eladó téglalakás
Eladó téglalakás

Göd

46.5 M Ft
3 szoba
69 m2
Eladó téglalakás
Eladó téglalakás

Göd

32.5 M Ft
2 szoba
44 m2
Eladó téglalakás
Eladó téglalakás

Érd

230.76 M Ft
7 szoba
164 m2
Eladó téglalakás
Eladó téglalakás

Göd

44.5 M Ft
3 szoba
69 m2
Eladó téglalakás
Eladó téglalakás

Érd

49.5 M Ft
3 szoba
87 m2
Eladó téglalakás
Eladó téglalakás

Érd

172.3 M Ft
6 + 1 szoba
164 m2
Eladó téglalakás
Eladó téglalakás

Göd, Oázis utca

27.9 M Ft
2 szoba
44 m2
Eladó téglalakás
Eladó téglalakás

Érd

89.9 M Ft
3 szoba
72 m2
Eladó téglalakás
Eladó téglalakás

Érd

230.76 M Ft
7 szoba
164 m2
Eladó téglalakás
Eladó téglalakás

Érd

189.53 M Ft
7 szoba
165 m2
Eladó téglalakás
Eladó téglalakás

Érd

210 M Ft
3 szoba
82 m2

Falusi CSOK ingatlanok

Eladó családi ház
Eladó családi ház

Tapsony

23.8 M Ft
3 szoba
130 m2
Eladó családi ház
Eladó családi ház

Olaszfa

70.38 M Ft
3 szoba
139 m2
Eladó családi ház
Eladó családi ház

Ráksi

69.9 M Ft
4 szoba
139 m2
Eladó családi ház
Eladó családi ház

Tápióság

17 M Ft
1 szoba
44 m2
Eladó családi ház
Eladó családi ház

Tésenfa, Kossuth utca 23/a

5.55 M Ft
1 + 1 szoba
109 m2
Eladó családi ház
Eladó családi ház

Balatonfőkajár

40 M Ft
2 szoba
64 m2
Eladó családi ház
Eladó családi ház

Kondorfa, Fővég utca

24.9 M Ft
3 szoba
102 m2
Eladó családi ház
Eladó családi ház

Bajánsenye

34.9 M Ft
5 szoba
130 m2