Kedves Felhasználónk! Rendszerfrissítés miatt az oldalunk 2026. február 9-én 12 órától várhatóan 20 óráig nem lesz elérhető. Köszönjük megértésed!
City Pearl

Eladó téglalakás
Érd, földszint

+ 10 kép 1/13
89 000 000 Ft89 M Ft 659 259 Ft/m2
4 + 1 szoba
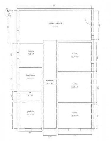
135 m2
földszint
építés éve:1984

Részletes adatok

Állapot: Átlagos
Fűtés: Elektromos
Emelet: földszint
Energetikai besorolás: A

Az OTP Bank lakáshitel ajánlataFizetett hirdetés

+36 20 461
Dsugán Béla
Terc Kft.

Érdekel az OTP Bank kedvezményes lakáshitel ajánlata? *

* A kérdésre „Igen” válasz bejelölése esetén, az „Üzenet küldése” gombra kattintva kijelentem, hogy az OTP Bank Nyrt. Adatkezelési tájékoztatójának tartalmát megismertem és tudomásul vettem.

Eladó téglalakás leírása

Felújított, tágas családi otthon saját kerttel Érd egyik legkedveltebb részén! Kivételes lehetőség Érd Parkváros szívében!

Ez a 2 lakásos családiház alsó szintjén lévő 135 nm-es, 4 + egy félszobás, teljeskörűen felújított lakás, amely a modern kényelem és az otthonos hangulat tökéletes egyensúlyát kínálja.
A 2018-ban végzett felújítás során minden megújult: víz-, villany- és csatornahálózat, valamint új, korszerű nyílászárók kerültek beépítésre. A fűtést energiatakarékos elektromos norvég panelek biztosítják, amelyek egyenletes meleget és alacsony fenntartási költséget nyújtanak.
A melegvízről villanybojler gondoskodik.

A lakás elrendezése átgondolt és praktikus: a világos nappali, a külön nyíló hálószobák és a félszoba ( ami jelenleg gardróbként funkcionál, de akár plusz 1 szoba kialakítására is megfelelő) ideális választás akár nagyobb család számára is.

A tágas terek, minőségi burkolatok és ízléses kialakítás azonnal otthonos hangulatot árasztanak.
Saját, szeparált kertrész is tartozik az ingatlanhoz, amely kiváló helyszín pihenésre, grillezésre vagy gyerekeknek biztonságos játéktérnek.
Privát kertrész 300 nm körül.
A lakás jogilag rendezett, hitelezhető. Ügyvédi használati megosztással rendelkezik és külön mérőórákkal.
A két lakás teljesen külön, egymástól független bejárattal rendelkezik, 2 utcáról van a bejárás.

Ára: 89 000 000 Ft

Ez az ingatlan ritka lehetőség Érden modern, felújított, saját kerttel, kiváló elhelyezkedéssel.

Környék előnyei:
Csendes, rendezett, zöldövezeti környezet, mégis mindenhez közel. Iskola, óvoda, boltok és tömegközlekedés pár percen belül elérhető, így ideális otthon mind családoknak, mind nyugodt életet keresőknek

Az OTP Bankcsoport teljes körű ügyintézéssel áll az eladók és a vevők rendelkezésére! Az adásvételi szerződés megkötéséhez igény szerint megbízható ügyvédi közreműködést és sorban állás nélküli hitel tanácsadást biztosítunk ügyfeleink részére! További információkért várom megtisztelő hívását a hét bármely napján!

Referencia szám: M315057

Hirdetés feltöltve: 2025. 10. 17. Utoljára módosítva: 2026. 02. 03.

5 szobás téglalakások ára Érden

Ebből az összehasonlításból megtudhatod, hogyan viszonyul a lakás ára a környékbeli téglalakások átlagos árához. Ez nem azt jelenti, hogy ennyivel olcsóbb vagy drágább, mint amennyit a lakás ér, hanem hogy ennyivel tér el a környékbeli átlagtól.

Ennek a m² ára
Érd m² ár
659 e Ft
1169 e Ft 44%
Ennek az ára
Érd átlagár
89 M Ft m Ft
188.2 m Ft 53%

Az ingatlan elhelyezkedése

Cím: Érd, földszint

Eladó téglalakások a környékről

Eladó téglalakás
Eladó téglalakás

Göd

27.9 M Ft
2 szoba
43 m2
Eladó téglalakás
Eladó téglalakás

Érd

248 M Ft
6 szoba
180 m2
Eladó téglalakás
Eladó téglalakás

Göd

32.9 M Ft
2 szoba
44 m2
Eladó téglalakás
Eladó téglalakás

Érd

214.06 M Ft
6 szoba
164 m2
Eladó téglalakás
Eladó téglalakás

Göd

27.9 M Ft
2 szoba
43 m2
Eladó téglalakás
Eladó téglalakás

Göd

44.5 M Ft
3 szoba
70 m2
Eladó téglalakás
Eladó téglalakás

Göd

46.5 M Ft
4 szoba
72 m2
Eladó téglalakás
Eladó téglalakás

Göd

28.9 M Ft
2 szoba
44 m2
Eladó téglalakás
Eladó téglalakás

Göd

42.9 M Ft
3 szoba
61 m2
Eladó téglalakás
Eladó téglalakás

Göd

32.5 M Ft
2 szoba
44 m2
Eladó téglalakás
Eladó téglalakás

Göd

44.9 M Ft
3 szoba
58 m2
Eladó téglalakás
Eladó téglalakás

Göd

46.5 M Ft
3 szoba
69 m2
Eladó téglalakás
Eladó téglalakás

Göd

29.5 M Ft
2 szoba
44 m2
Eladó téglalakás
Eladó téglalakás

Érd

89 M Ft
2 szoba
65 m2
Eladó téglalakás
Eladó téglalakás

Göd

27.9 M Ft
2 szoba
44 m2
Eladó téglalakás
Eladó téglalakás

Érd

97.858 M Ft
3 szoba
72 m2
Eladó téglalakás
Eladó téglalakás

Göd

32.5 M Ft
2 szoba
44 m2
Eladó téglalakás
Eladó téglalakás

Érd

230.76 M Ft
5 szoba
164 m2
Eladó téglalakás
Eladó téglalakás

Érd

230.76 M Ft
6 szoba
164 m2
Eladó téglalakás
Eladó téglalakás

Érd

248 M Ft
6 szoba
164 m2
Eladó téglalakás
Eladó téglalakás

Érd

54.9 M Ft
3 szoba
83 m2
Eladó téglalakás
Eladó téglalakás

Göd

28.9 M Ft
2 szoba
46 m2
Eladó téglalakás
Eladó téglalakás

Érd

194.6 M Ft
3 + 2 szoba
164 m2
Eladó téglalakás
Eladó téglalakás

Göd

90 M Ft
2 szoba
44 m2

Falusi CSOK ingatlanok

Eladó téglalakás
Eladó téglalakás

Kőröshegy

83.5 M Ft
2 szoba
65 m2
Eladó családi ház
Eladó családi ház

Tápióság

62 M Ft
4 szoba
72 m2
Eladó téglalakás
Eladó téglalakás

Balatonszemes

119.9 M Ft
2 szoba
81 m2
Eladó téglalakás
Eladó téglalakás

Balatonszemes

123.3 M Ft
2 szoba
70 m2
Eladó családi ház
Eladó családi ház

Pétfürdő

74.9 M Ft
3 szoba
89 m2
Eladó családi ház
Eladó családi ház

Gégény, Kossuth

15 M Ft
4 szoba
135 m2
Eladó családi ház
Eladó családi ház

Újlengyel

110 M Ft
4 szoba
121 m2
Eladó családi ház
Eladó családi ház

Recsk

40 M Ft
3 + 1 szoba
130 m2