City Pearl

Eladó téglalakás
Edelény, 1. emelet

+ 13 kép 1/16
31 900 000 Ft31.9 M Ft 483 333 Ft/m2
2 + 1 szoba
66 m²
1. emelet
építés éve:1984

Részletes adatok

Állapot: Átlagos
Fűtés: Házközponti
Emelet: 1. emelet
Energetikai besorolás: Nem adta meg a hirdető

Az OTP Bank lakáshitel ajánlataFizetett hirdetés

+36 30 716
Balogh Gergő
OTP Ingatlanpont Miskolc Szemere

Érdekel az OTP Bank kedvezményes lakáshitel ajánlata? *

* A kérdésre „Igen” válasz bejelölése esetén, az „Üzenet küldése” gombra kattintva kijelentem, hogy az OTP Bank Nyrt. Adatkezelési tájékoztatójának tartalmát megismertem és tudomásul vettem.

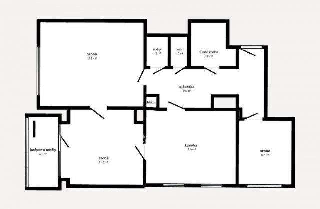
Eladó téglalakás leírása

Eladó Edelényben, a Miklós Gyula úton egy 66 m2-es, tehermentes, akár azonnal költözhető lakás!
Edelény kedvelt, jól frekventált részén kínálunk eladásra egy jó állapotú, tégla építésű, 2+1 félszobás lakást, amely kiváló választás családoknak, pároknak vagy befektetésnek is.
A lakás tehermentes, így a birtokbaadás rövid időn belül megoldható.
Főbb jellemzők:
66 m2 alapterület
2+1 félszoba
nagyméretű konyha étkező egyben
tégla építésű társasház
felújított fürdőszoba és WC
meleg vizet villanybojler biztosítja
kicserélt vízvezetékek
réz villanyvezeték
műanyag nyílászárók, minden ablakon redőnnyel
alumínium bejárati ajtó
beépített loggia szintén műanyag ablakokkal és redőnnyel, mely télikertként is hasznosítható
Fűtés:
Házi központi, radiátoros fűtés, a tömb saját gázkazánnal rendelkezik, ami gazdaságos fenntartást biztosít.
Garázs:
A lakáshoz külön áron megvásárolható egy 16 m2-es garázs, amely szintén a tömbben helyezkedik el.
A garázs víz- és villanyellátással rendelkezik, tehermentes.
Elhelyezkedés:
Kiváló infrastruktúrával rendelkező környék, a közelben:
iskola
óvoda
boltok
gyógyszertár
buszpályaudvar
vasútállomás
Minden fontos intézmény és szolgáltatás könnyen elérhető.
OTP Banki hátterünknek köszönhetően finanszírozási igényekben (pl. Otthon Start Hitelprogram, Babaváró, CSOK Plusz, Lakáshitel, Személyi kölcsön stb.), illetve biztosítások tekintetében is díjmentesen, soron kívüli ügyintézéssel segítem ügyfeleim! Érdeklődés esetén hivatkozzon M320851 azonosítási számra.

Hirdetés feltöltve: 2026. 04. 21.

Az ingatlan elhelyezkedése

Cím: Edelény, 1. emelet

Eladó ingatlanok a környékről

Miskolc
Eladó ikerház

Miskolc

34.9 M Ft
3 szoba
90 m²
Edelény
Eladó téglalakás

Edelény

17.5 M Ft
2 szoba
72 m²
Miskolc
Eladó téglalakás

Miskolc

59.94 M Ft
2 szoba
51 m²
Sátoraljaújhely
Eladó téglalakás

Sátoraljaújhely

17 M Ft
2 szoba
52 m²
Miskolc
Eladó téglalakás

Miskolc

59.99 M Ft
4 szoba
119 m²
Ózd
Eladó téglalakás

Ózd

8.9 M Ft
2 szoba
57 m²
Edelény
Eladó téglalakás

Edelény

25 M Ft
1 + 1 szoba
63 m²
Edelény
Eladó téglalakás

Edelény

13.8 M Ft
2 szoba
54 m²
Miskolc
Eladó családi ház

Miskolc

98 M Ft
3 szoba
120 m²
Edelény
Eladó téglalakás

Edelény

14.2 M Ft
3 szoba
91 m²
Edelény
Eladó téglalakás

Edelény

35 M Ft
2 szoba
72 m²
Edelény
Eladó téglalakás

Edelény

35 M Ft
2 szoba
72 m²
Edelény
Eladó téglalakás

Edelény

17.5 M Ft
2 szoba
72 m²
Edelény
Eladó téglalakás

Edelény

35 M Ft
2 szoba
72 m²
Edelény
Eladó téglalakás

Edelény

31.9 M Ft
2 + 1 szoba
66 m²
Miskolc
Eladó téglalakás

Miskolc

54.9 M Ft
3 szoba
122 m²
Ózd
Eladó téglalakás

Ózd

4.99 M Ft
2 szoba
55 m²
Tiszaújváros, Verebély utca
Eladó téglalakás

Tiszaújváros

23.9 M Ft
1 + 1 szoba
39 m²
Borsodnádasd
Eladó családi ház

Borsodnádasd

10.9 M Ft
4 szoba
200 m²
Sajószentpéter
Eladó családi ház

Sajószentpéter

49.9 M Ft
4 szoba
100 m²
Miskolc
Eladó panellakás

Miskolc

37.9 M Ft
2 szoba
51 m²
Miskolc
Eladó téglalakás

Miskolc

163.35 M Ft
4 szoba
110 m²
Ózd
Eladó téglalakás

Ózd

10.4 M Ft
2 szoba
48 m²
Edelény
Eladó téglalakás

Edelény

17.5 M Ft
2 szoba
72 m²

Falusi CSOK ingatlanok

Bakonyszentlászló
Eladó családi ház

Bakonyszentlászló

69.99 M Ft
2 szoba
73 m²
Dombrád, Rákóczi út 22
Eladó családi ház

Dombrád

12.74 M Ft
1 + 1 szoba
125 m²
Tápiógyörgye
Eladó családi ház

Tápiógyörgye

34.9 M Ft
3 szoba
74 m²
Ceglédbercel
Eladó családi ház

Ceglédbercel

53 M Ft
3 szoba
67 m²
Maráza
Eladó családi ház

Maráza

29.9 M Ft
3 szoba
96 m²
Gádoros
Eladó családi ház

Gádoros

30 M Ft
3 szoba
100 m²
Somogygeszti
Eladó családi ház

Somogygeszti

10.9 M Ft
2 szoba
115 m²
Ostffyasszonyfa
Eladó családi ház

Ostffyasszonyfa

37.9 M Ft
5 szoba
494 m²