Oasis Residence

Eladó téglalakás
Edelény, 1. emelet

+ 13 kép 1/16
31 900 000 Ft31.9 M Ft 483 333 Ft/m2
2 + 1 szoba
66 m²
1. emelet
építés éve:1984

Részletes adatok

Állapot: Átlagos
Fűtés: Házközponti
Emelet: 1. emelet
Energetikai besorolás: Nem adta meg a hirdető

Az OTP Bank lakáshitel ajánlataFizetett hirdetés

+36 20 361
Spéth Gábor György
OTP Ingatlanpont Miskolc Szemere

Érdekel az OTP Bank kedvezményes lakáshitel ajánlata? *

* A kérdésre „Igen” válasz bejelölése esetén, az „Üzenet küldése” gombra kattintva kijelentem, hogy az OTP Bank Nyrt. Adatkezelési tájékoztatójának tartalmát megismertem és tudomásul vettem.

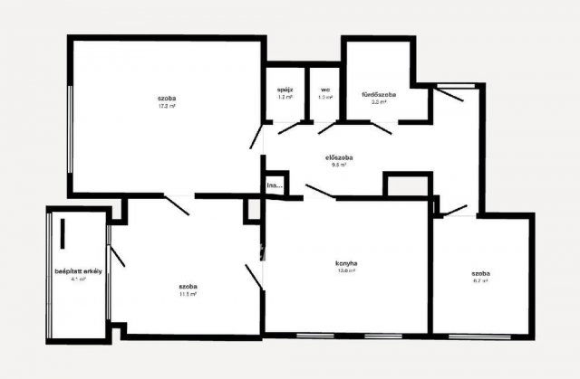
Eladó téglalakás leírása

Eladó Edelényben, a Miklós Gyula úton egy 66 m2-es, tehermentes, akár azonnal költözhető lakás!
Edelény kedvelt, jól frekventált részén kínálunk eladásra egy jó állapotú, tégla építésű, 2+1 félszobás lakást, amely kiváló választás családoknak, pároknak vagy befektetésnek is.
A lakás tehermentes, így a birtokbaadás rövid időn belül megoldható.
Főbb jellemzők:
66 m2 alapterület
2+1 félszoba
nagyméretű konyha étkező egyben
tégla építésű társasház
felújított fürdőszoba és WC
meleg vizet villanybojler biztosítja
kicserélt vízvezetékek
réz villanyvezeték
műanyag nyílászárók, minden ablakon redőnnyel
alumínium bejárati ajtó
beépített loggia szintén műanyag ablakokkal és redőnnyel, mely télikertként is hasznosítható
Fűtés:
Házi központi, radiátoros fűtés, a tömb saját gázkazánnal rendelkezik, ami gazdaságos fenntartást biztosít.
Garázs:
A lakáshoz külön áron megvásárolható egy 16 m2-es garázs, amely szintén a tömbben helyezkedik el.
A garázs víz- és villanyellátással rendelkezik, tehermentes.
Elhelyezkedés:
Kiváló infrastruktúrával rendelkező környék, a közelben:
iskola
óvoda
boltok
gyógyszertár
buszpályaudvar
vasútállomás
Minden fontos intézmény és szolgáltatás könnyen elérhető.
OTP Banki hátterünknek köszönhetően finanszírozási igényekben (pl. Otthon Start Hitelprogram, Babaváró, CSOK Plusz, Lakáshitel, Személyi kölcsön stb.), illetve biztosítások tekintetében is díjmentesen, soron kívüli ügyintézéssel segítem ügyfeleim! Érdeklődés esetén hivatkozzon M320851 azonosítási számra.

Hirdetés feltöltve: 2026. 03. 05. Utoljára módosítva: 2026. 03. 05.

Az ingatlan elhelyezkedése

Cím: Edelény, 1. emelet

Eladó ingatlanok a környékről

Edelény
Eladó téglalakás

Edelény

17.5 M Ft
2 szoba
72 m²
Miskolc
Eladó téglalakás

Miskolc

75.982 M Ft
3 szoba
77 m²
Borsodnádasd
Eladó téglalakás

Borsodnádasd

7.9 M Ft
4 szoba
113 m²
Miskolc
Eladó téglalakás

Miskolc

54.9 M Ft
3 szoba
122 m²
Miskolc
Eladó téglalakás

Miskolc

69.7 M Ft
3 szoba
60 m²
Edelény
Eladó téglalakás

Edelény

35 M Ft
2 szoba
72 m²
Miskolc
Eladó téglalakás

Miskolc

65.34 M Ft
1 + 1 szoba
40 m²
Edelény
Eladó téglalakás

Edelény

31.9 M Ft
2 + 1 szoba
66 m²
Edelény
Eladó téglalakás

Edelény

35 M Ft
2 szoba
72 m²
Edelény
Eladó téglalakás

Edelény

35 M Ft
2 szoba
72 m²
Edelény
Eladó téglalakás

Edelény

35 M Ft
2 szoba
72 m²
Bogács
Eladó családi ház

Bogács

35 M Ft
2 szoba
75 m²
Tállya
Eladó családi ház

Tállya

49.9 M Ft
3 szoba
174 m²
Edelény
Eladó téglalakás

Edelény

35 M Ft
2 szoba
72 m²
Miskolc
Eladó téglalakás

Miskolc

39.9 M Ft
1 + 2 szoba
56 m²
Miskolc
Eladó téglalakás

Miskolc

65.34 M Ft
3 szoba
60 m²
Miskolc
Eladó téglalakás

Miskolc

65.34 M Ft
3 szoba
60 m²
Ózd
Eladó téglalakás

Ózd

8.9 M Ft
2 szoba
57 m²
Ózd
Eladó téglalakás

Ózd

10.4 M Ft
2 szoba
48 m²
Sárospatak, Tompa Mihály utca
Eladó téglalakás

Sárospatak

23.9 M Ft
2 szoba
62 m²
Ózd
Eladó téglalakás

Ózd

4.99 M Ft
2 szoba
55 m²
Edelény
Eladó téglalakás

Edelény

31.9 M Ft
2 + 1 szoba
66 m²
Edelény
Eladó téglalakás

Edelény

13.8 M Ft
2 szoba
54 m²
Edelény
Eladó téglalakás

Edelény

35 M Ft
2 szoba
72 m²

Falusi CSOK ingatlanok

Balatonfenyves
Eladó ikerház

Balatonfenyves

55 M Ft
3 szoba
52 m²
Tápióbicske
Eladó családi ház

Tápióbicske

15 M Ft
2 szoba
62 m²
Balatonederics
Eladó családi ház

Balatonederics

119 M Ft
3 szoba
140 m²
Palkonya
Eladó családi ház

Palkonya

137 M Ft
6 szoba
160 m²
Szigliget
Eladó családi ház

Szigliget

299 M Ft
3 szoba
95 m²
Darnózseli
Eladó családi ház

Darnózseli

72.9 M Ft
4 szoba
104 m²
Kaposgyarmat
Eladó családi ház

Kaposgyarmat

695 M Ft
6 szoba
610 m²
Hosszúpereszteg
Eladó családi ház

Hosszúpereszteg

27.9 M Ft
4 szoba
121 m²