Aerogate Homes

Eladó téglalakás
Dunaújváros

+ 11 kép 1/14
44 000 000 Ft44 M Ft 936 170 Ft/m2
1 + 2 szoba
47 m2
építés éve:1957

Részletes adatok

Állapot: Átlagos
Fűtés: Távfűtés
Extrák: Lift
Energetikai besorolás: Nem adta meg a hirdető

Az OTP Bank lakáshitel ajánlataFizetett hirdetés

+36 30 660
Szombay Alfréd
Otp Ingatlanpont Szigetszentmiklós

Érdekel az OTP Bank kedvezményes lakáshitel ajánlata? *

* A kérdésre „Igen” válasz bejelölése esetén, az „Üzenet küldése” gombra kattintva kijelentem, hogy az OTP Bank Nyrt. Adatkezelési tájékoztatójának tartalmát megismertem és tudomásul vettem.

Eladó téglalakás leírása

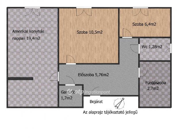
Eladó Dunaújváros központi részén egy 47m2-es 1+2 félszobás amerikai konyhás lakás. Az ingatlan egy műemlék jellegű téglaépület 4. emeletén helyezkedik el, ami kényelmesen lift használatával is megközelíthető. A lakás nagy volmenű felújításon esett át, amely során az elektromos kábelhálózatot, a burkolatokat a vizes helységekben és a szobákban is kicserélték, így a nagyszoba, a fürdőszoba, a mellékhelység és a konyha rész is teljesen új külsőt kapott. Továbbá a lakás kreatív tervezése során amerikai konyhás verziót hoztak létre a legnagyobb szobából, a konyhából pedig félszobát alakítottak ki. A fűtésért egyedi mérővel ellátott radiátorok gondoskodnak, míg a meleg vízért a gardrób helységben felszerelt Ariston bojler a felelős. Csere érettek lettek a nyílászárók is, ezek helyett, 2 rétegű, hőszigetelt ablakok lettek beszerelve. A környék infrastruktúrája lehetővé teszi a kényelmes közlekedést, akár az autót, akár tömegközlekedést részesítik előnyben. Dunaújváros az elmúlt pár évben rengeteg munkahelyet teremt, így az újonnan ideköltözők is hosszú távra tervezhetnek. A környéken megtalálható a legtöbb oktatási intézmény, de a bevásárlási és a kulturális lehetőségek is adottak a városban. A kínálatunkból választott ingatlan finanszírozásához kedvezményes hitel- és lízingkonstrukciókat kínálunk. Az adásvételi szerződés megkötéséhez igény szerint megbízható ügyvédi közreműködést biztosítunk, és segítséget nyújtunk az adásvételhez kapcsolódó ügyek intézéséhez. Amennyiben felkeltettem érdeklődését, keressen bizalommal, akár hétvégén is. Referenciaszám: M319588

Hirdetés feltöltve: 2025. 12. 20. Utoljára módosítva: 2025. 12. 20.

3 szobás téglalakások ára Dunaújvárosban

Ebből az összehasonlításból megtudhatod, hogyan viszonyul a lakás ára a környékbeli téglalakások átlagos árához. Ez nem azt jelenti, hogy ennyivel olcsóbb vagy drágább, mint amennyit a lakás ér, hanem hogy ennyivel tér el a környékbeli átlagtól.

Ennek a m² ára
Dunaújváros m² ár
936 e Ft
679 e Ft -38%
Ennek az ára
Dunaújváros átlagár
44 M Ft m Ft
41.5 m Ft -6%

Az ingatlan elhelyezkedése

Cím: Dunaújváros

Eladó téglalakások a környékről

Eladó téglalakás
Eladó téglalakás

Dunaújváros, Németh László utca

39.89 M Ft
2 szoba
56 m2
Eladó téglalakás
Eladó téglalakás

Dunaújváros

44.9 M Ft
3 szoba
126 m2
Eladó téglalakás
Eladó téglalakás

Dunaújváros

38 M Ft
1 + 2 szoba
69 m2
Eladó téglalakás
Eladó téglalakás

Bicske, Csákvári utca

57.72 M Ft
3 szoba
64 m2
Eladó téglalakás
Eladó téglalakás

Székesfehérvár

119.9 M Ft
4 szoba
91 m2
Eladó téglalakás
Eladó téglalakás

Pákozd

99 M Ft
4 szoba
125 m2
Eladó téglalakás
Eladó téglalakás

Dunaújváros

33.5 M Ft
20 szoba
50 m2
Eladó téglalakás
Eladó téglalakás

Enying, Petőfi Sándor utca

29.9 M Ft
2 szoba
72 m2
Eladó téglalakás
Eladó téglalakás

Gárdony

44.8 M Ft
3 szoba
70 m2
Eladó téglalakás
Eladó téglalakás

Dunaújváros

189 M Ft
5 szoba
498 m2
Eladó téglalakás
Eladó téglalakás

Lepsény

22.9 M Ft
2 szoba
56 m2
Eladó téglalakás
Eladó téglalakás

Székesfehérvár

114.9 M Ft
4 szoba
113 m2
Eladó téglalakás
Eladó téglalakás

Székesfehérvár

114.9 M Ft
4 szoba
136 m2
Eladó téglalakás
Eladó téglalakás

Székesfehérvár

94.9 M Ft
3 szoba
73 m2
Eladó téglalakás
Eladó téglalakás

Dunaújváros, Esze Tamás utca

33.5 M Ft
2 szoba
50 m2
Eladó téglalakás
Eladó téglalakás

Óbarok

13 M Ft
1 szoba
28 m2
Eladó téglalakás
Eladó téglalakás

Dunaújváros

38 M Ft
1 + 2 szoba
69 m2
Eladó téglalakás
Eladó téglalakás

Ercsi

28 M Ft
3 szoba
127 m2
Eladó téglalakás
Eladó téglalakás

Dunaújváros

68 M Ft
6 szoba
123 m2
Eladó téglalakás
Eladó téglalakás

Dunaújváros

41.9 M Ft
2 szoba
62 m2
Eladó téglalakás
Eladó téglalakás

Sárbogárd

61.95 M Ft
1 + 2 szoba
64 m2
Eladó téglalakás
Eladó téglalakás

Dunaújváros

24.49 M Ft
1 + 1 szoba
46 m2
Eladó téglalakás
Eladó téglalakás

Dunaújváros

39.89 M Ft
2 szoba
56 m2
Eladó téglalakás
Eladó téglalakás

Dunaújváros

23 M Ft
1 szoba
23 m2

Falusi CSOK ingatlanok

Eladó családi ház
Eladó családi ház

Kenyeri

21.8 M Ft
2 szoba
75 m2
Eladó családi ház
Eladó családi ház

Belvárdgyula

58.65 M Ft
5 szoba
164 m2
Eladó családi ház
Eladó családi ház

Örkény

52.606 M Ft
3 szoba
109 m2
Eladó családi ház
Eladó családi ház

Mikebuda

68.5 M Ft
2 szoba
90 m2
Eladó családi ház
Eladó családi ház

Törtel

13.5 M Ft
5 szoba
74 m2
Eladó családi ház
Eladó családi ház

Újlengyel

108 M Ft
3 szoba
80 m2
Eladó családi ház
Eladó családi ház

Tápiógyörgye

14.9 M Ft
2 szoba
67 m2
Eladó családi ház
Eladó családi ház

Sellye

15 M Ft
3 szoba
120 m2