Astora Olive Club House

Eladó téglalakás
Dunaharaszti, 3. emelet

+ 12 kép 1/15
62 500 000 Ft62.5 M Ft 1 302 083 Ft/m2
2 szoba
48 m²
3. emelet
építés éve:2008

Részletes adatok

Fűtés: Gázkazán
Emelet: 3. emelet
Extrák: Lift
Energetikai besorolás: Nem adta meg a hirdető

Az OTP Bank lakáshitel ajánlataFizetett hirdetés

+36 30 400
Papp-Horváth Katalin
Otp Ingatlanpont Falk Miksa

Érdekel az OTP Bank kedvezményes lakáshitel ajánlata? *

* A kérdésre „Igen” válasz bejelölése esetén, az „Üzenet küldése” gombra kattintva kijelentem, hogy az OTP Bank Nyrt. Adatkezelési tájékoztatójának tartalmát megismertem és tudomásul vettem.

Eladó téglalakás leírása

NAPFÉNYES***KÉTSZOBÁS***TERASZOS***LAKÁS***DUNAHARASZTIBAN****Hitelezhető!!!

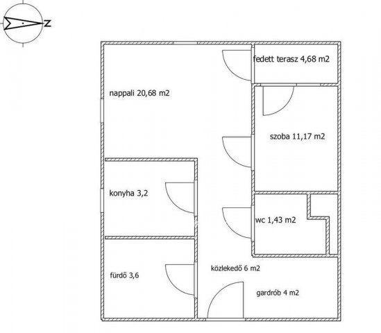
Eladásra kínálok Pest megyében egy 2 szobás, panorámás, 48 m2-es, 3. emeleti, társasházi lakást, LIFTes, modern, parkosított lakóparkban Dunaharaszti szívében.

A piac közelében, jó lokációval, egy zárt lakóparki környezetben találjuk a kívül- belül modern, napfényben úszó kellemes kis otthont. A lépcsőház finom takarított, karbantartott illata fogad minket, két lépcsős biztonsági rendszerrel, egy modern lifttel. Jól hangszigetelt, téglából épült falain át a külső zajok eltűnnek. Az ingatlanba érve átsüt az előszobán a fény, a keleti és déli oldal, a konyha, a nappali és a szoba is több nyílászáróval napfényes teret nyújt. A nappalival és hálószobával, kádas fürdővel, külön geberites wc-vel, nagy pakolható, gardróbbá alakítható előtérrel, beépített konyhabútoros konyhával és fedett terasszal egy kedves otthon tárul elénk. Nem lakott, ezért a bútorzat kevés, picit üresek a terek, de minden úszik a fényben!! Az ingatlan tehermentes, egy tulajdonossal. Azonnal költözhető!!
Gáz cirkó fűtésű, radiátorokkal,néhány bútor esetlegesen megvásárolható. A közös költség 15.000,-Ft, a rezsi 10-15.000,-Ft. A gáz hálózat korszerűsítése, bővítése a közeljövőben várható,de így is tökéletes.

Jöjjön, legyen Dunaharaszti lakos!! Hogy miért?
Óvoda, bölcsöde, iskola a közelben, Dunaharaszti vitathatatlan infrastruktúrája minden igényt kielégít, a szomszédos piacon pedig szerdai és szombati napokon a környék legjobb kézműveseinek és őstermelőinek portékáit kaphatjuk meg termelői áron.

Budapestre az MO és a Soroksári út gyors bejutást biztosít. De van helyi járatú busz, sárgabusz a Népligetbe, HÉV, és vonat, de rengeteg multi, bevásárlóközpont, Tesco,Aldi, Lidl, Spar, Rossman,DM, Fresnaps, Pepco, Jysk,Takko és számos helyi üzlet, pékségek, zöldségesek, hentesek, éttermek, kávézók és Magyarország egyik legjobb cukrászdája, a Karl cukrászda is díjnyertes bejglijeivel, süteményeivel. Számos fittnesz terem, sportpark,a Duna- part természetvédelmi sétányai, billiárd,darts, táncos klubok, és még sorolhatnám mi minden várja az ide költözőt. Itt még léteznek cipészek, varrónők, házi sütemény készítők és itt van Szabi a Pék is!!
Ne habozzon, jöjjön tekintse meg és csapjon le erre a klassz kis otthonra!

Az OTP Bankcsoport háttér szolgáltatásával, hitelügyintézéssel, ügyvédi háttérrel állunk rendelkezésükre. Az ingatlan alkalmas az Otthon Start Program 3%- os hitelre, CSOK-ra is.

A nap bármely szakában hívjon bizalommal!
Referencia szám: M324313

Referencia szám: M324313

Hirdetés feltöltve: 2026. 03. 09. Utoljára módosítva: 2026. 03. 09.

2 szobás téglalakások ára Dunaharasztin

Ebből az összehasonlításból megtudhatod, hogyan viszonyul a lakás ára a környékbeli téglalakások átlagos árához. Ez nem azt jelenti, hogy ennyivel olcsóbb vagy drágább, mint amennyit a lakás ér, hanem hogy ennyivel tér el a környékbeli átlagtól.

Ennek a m² ára
Dunaharaszti m² ár
1302 e Ft
1483 e Ft 12%
Ennek az ára
Dunaharaszti átlagár
62.5 M Ft m Ft
83.9 m Ft 26%

Az ingatlan elhelyezkedése

Cím: Dunaharaszti, 3. emelet

Eladó téglalakások a környékről

Dunaharaszti
Eladó téglalakás

Dunaharaszti

96.945 M Ft
3 szoba
59 m²
Göd
Eladó téglalakás

Göd

44.5 M Ft
3 szoba
69 m²
Göd
Eladó téglalakás

Göd

90 M Ft
2 szoba
44 m²
Dunaharaszti
Eladó téglalakás

Dunaharaszti

85.55 M Ft
3 szoba
60 m²
Dunaharaszti
Eladó téglalakás

Dunaharaszti

94.785 M Ft
2 szoba
61 m²
Dunaharaszti
Eladó téglalakás

Dunaharaszti

98.033 M Ft
3 szoba
60 m²
Göd
Eladó téglalakás

Göd

46.5 M Ft
3 szoba
69 m²
Göd
Eladó téglalakás

Göd

28.9 M Ft
2 szoba
44 m²
Göd
Eladó téglalakás

Göd

27.9 M Ft
2 szoba
44 m²
Göd
Eladó téglalakás

Göd

32.5 M Ft
2 szoba
44 m²
Göd
Eladó téglalakás

Göd

27.9 M Ft
2 szoba
43 m²
Dunaharaszti
Eladó téglalakás

Dunaharaszti

96.945 M Ft
3 szoba
59 m²
Göd
Eladó téglalakás

Göd

28.9 M Ft
2 szoba
46 m²
Göd
Eladó téglalakás

Göd

27.9 M Ft
2 szoba
43 m²
Dunaharaszti
Eladó téglalakás

Dunaharaszti

71.99 M Ft
2 + 1 szoba
80 m²
Göd
Eladó téglalakás

Göd

66.9 M Ft
4 szoba
94 m²
Göd
Eladó téglalakás

Göd

29.5 M Ft
2 szoba
44 m²
Göd
Eladó téglalakás

Göd

44.5 M Ft
3 szoba
70 m²
Göd
Eladó téglalakás

Göd

32.5 M Ft
2 szoba
44 m²
Dunaharaszti
Eladó téglalakás

Dunaharaszti

87.488 M Ft
2 szoba
49 m²
Göd, Oázis utca
Eladó téglalakás

Göd

27.9 M Ft
2 szoba
44 m²
Dunaharaszti
Eladó téglalakás

Dunaharaszti

96.945 M Ft
3 szoba
59 m²
Göd
Eladó téglalakás

Göd

44.9 M Ft
3 szoba
58 m²
Göd
Eladó téglalakás

Göd

44.5 M Ft
3 szoba
73 m²

Falusi CSOK ingatlanok

Vasboldogasszony
Eladó családi ház

Vasboldogasszony

85 M Ft
6 szoba
180 m²
Rétság
Eladó téglalakás

Rétság

39.9 M Ft
2 szoba
55 m²
Iváncsa
Eladó családi ház

Iváncsa

32.5 M Ft
2 + 1 szoba
72 m²
Kőröshegy
Eladó családi ház

Kőröshegy

68 M Ft
3 szoba
65 m²
Örkény
Eladó családi ház

Örkény

27.5 M Ft
2 szoba
69 m²
Nagyszentjános
Eladó téglalakás

Nagyszentjános

74.9 M Ft
4 szoba
117 m²
Homokbödöge
Eladó családi ház

Homokbödöge

49.9 M Ft
4 + 1 szoba
167 m²
Kocsér
Eladó családi ház

Kocsér

58.59 M Ft
4 szoba
92 m²