Avico Greentop

Eladó téglalakás
Debrecen, földszint

+ 3 kép 1/6
78 512 550 Ft78.513 M Ft 1 266 331 Ft/m2
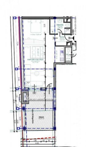
1 szoba
62 m²
földszint
építés éve:2024

Részletes adatok

Fűtés: Távfűtés
Emelet: földszint
Extrák: Lift
Energetikai besorolás: Nem adta meg a hirdető

Az OTP Bank lakáshitel ajánlataFizetett hirdetés

+36 70 301
Szanyi Dávid Zoltán
OTP Ingatlanpont Hajdúszoboszló Bethlen utca 23.

Érdekel az OTP Bank kedvezményes lakáshitel ajánlata? *

* A kérdésre „Igen” válasz bejelölése esetén, az „Üzenet küldése” gombra kattintva kijelentem, hogy az OTP Bank Nyrt. Adatkezelési tájékoztatójának tartalmát megismertem és tudomásul vettem.

Eladó téglalakás leírása

ÚJ ÉPÍTÉSŰ LAKÁSOK!!!
Debrecen Belvárosában eladó egy Földszinti , 62m2 + 26m2 terasz + 33 m2 saját használatú kert, amerikai konyhás nappali + 1 hálószobás lakás!!

A társasházban összesen 63 lakás , földszinten irodák és üzletek, a pince szinten pedig teremgarázs ok kerülnek kialakításra!!
A modern kialakítású , 4 emeletes társasház lakásai, világos , többnyire erkélyes kialakításúak, kiváló választás befektetők és magánszemély számára egyaránt. lakásait

Az ingatlan főbb paraméterei a következőek:
- várható átadás 2026.12.01
- homlokzati hőszigetelés 15 cm
- Vasbeton pillér , tégla szerkezettel
- 30-as N+F falazó elem
- hang gátló falazat a lakások között
- 3 rétegű műanyag nyílászárók. redőnytokokkal
- beépített légkondicionáló
- Egyedi mérőórás távhő radiátoros hőleadásal
- 2 dr lift kialakítva
- opcionálisan teremgarázs vásárolható

További információért hívjon bizalommal akár hétvégén is. Megtekintésre telefonos egyeztetés alapján van lehetőség. Kedvezményes kamatozású lakásvásárlási és felújítási hitelek az OTP hátterével irodánkban.

Hirdetés feltöltve: 2026. 04. 03. Utoljára módosítva: 2026. 04. 03.

1 szobás téglalakások ára Debrecenben

Ebből az összehasonlításból megtudhatod, hogyan viszonyul a lakás ára a környékbeli téglalakások átlagos árához. Ez nem azt jelenti, hogy ennyivel olcsóbb vagy drágább, mint amennyit a lakás ér, hanem hogy ennyivel tér el a környékbeli átlagtól.

Ennek a m² ára
Debrecen m² ár
1266 e Ft
1485 e Ft 15%
Ennek az ára
Debrecen átlagár
78.513 M Ft m Ft
59.3 m Ft -32%

Az ingatlan elhelyezkedése

Cím: Debrecen, földszint

Eladó téglalakások a környékről

Debrecen
Eladó téglalakás

Debrecen

86.5 M Ft
3 szoba
62 m²
Debrecen, Belváros, Piac utca
Eladó téglalakás

Debrecen

124 M Ft
2 szoba
102 m²
Debrecen, Belváros, Hatvan utca
Eladó téglalakás

Debrecen

398 M Ft
7 + 6 szoba
534 m²
Debrecen, Belváros, Hatvan köz
Eladó téglalakás

Debrecen

120.46 M Ft
3 szoba
102 m²
Debrecen
Eladó téglalakás

Debrecen

99.4 M Ft
4 szoba
76 m²
Debrecen, Belváros, Hatvan köz
Eladó téglalakás

Debrecen

120.891 M Ft
3 szoba
103 m²
Debrecen, Belváros, Hatvan köz
Eladó téglalakás

Debrecen

75.328 M Ft
2 szoba
53 m²
Debrecen, Belváros, Hatvan köz
Eladó téglalakás

Debrecen

83.943 M Ft
2 szoba
64 m²
Debrecen
Eladó téglalakás

Debrecen

134.6 M Ft
3 szoba
99 m²
Debrecen, Belváros, Hatvan köz
Eladó téglalakás

Debrecen

118.936 M Ft
4 szoba
107 m²
Hajdúszoboszló, József Attila utca
Eladó téglalakás

Hajdúszoboszló

137.5 M Ft
2 szoba
106 m²
Derecske
Eladó téglalakás

Derecske

61.132 M Ft
4 szoba
72 m²
Debrecen
Eladó téglalakás

Debrecen

71.9 M Ft
2 szoba
52 m²
Debrecen, Belváros, Piac utca
Eladó téglalakás

Debrecen

124 M Ft
2 szoba
102 m²
Debrecen
Eladó téglalakás

Debrecen

69.9 M Ft
4 szoba
95 m²
Püspökladány
Eladó téglalakás

Püspökladány

39.9 M Ft
1 szoba
336 m²
Debrecen, Belváros, Hatvan utca
Eladó téglalakás

Debrecen

398 M Ft
7 + 6 szoba
534 m²
Debrecen, Belváros, Hatvan köz
Eladó téglalakás

Debrecen

120.891 M Ft
3 szoba
103 m²
Debrecen
Eladó téglalakás

Debrecen

69.9 M Ft
4 szoba
95 m²
Hajdúszoboszló, József Attila utca
Eladó téglalakás

Hajdúszoboszló

69 M Ft
2 szoba
59 m²
Hajdúszoboszló
Eladó téglalakás

Hajdúszoboszló

69 M Ft
2 szoba
45 m²
Debrecen, Belváros, Hatvan köz
Eladó téglalakás

Debrecen

118.936 M Ft
4 szoba
107 m²
Debrecen, Belváros, Hatvan köz
Eladó téglalakás

Debrecen

98.181 M Ft
2 szoba
85 m²
Debrecen, Belváros, Hatvan köz
Eladó téglalakás

Debrecen

118.936 M Ft
4 szoba
107 m²

Falusi CSOK ingatlanok

Nyáregyháza
Eladó családi ház

Nyáregyháza

114.99 M Ft
7 szoba
267 m²
Kocsér
Eladó családi ház

Kocsér

27.9 M Ft
4 szoba
108 m²
Lengyeltóti
Eladó családi ház

Lengyeltóti

59.9 M Ft
5 szoba
205 m²
Bodajk
Eladó ikerház

Bodajk

67.9 M Ft
5 szoba
90 m²
Vokány
Eladó családi ház

Vokány

30 M Ft
4 szoba
100 m²
Ábrahámhegy
Eladó családi ház

Ábrahámhegy

139 M Ft
4 szoba
106 m²
Balatonszepezd
Eladó családi ház

Balatonszepezd

299 M Ft
5 szoba
220 m²
Nagyréde
Eladó családi ház

Nagyréde

69.5 M Ft
4 szoba
110 m²