River Life

Eladó téglalakás
Debrecen, 1. emelet

+ 1 kép 1/4
62 387 500 Ft62.388 M Ft 1 559 688 Ft/m2
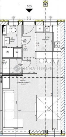
1 szoba
40 m²
1. emelet
építés éve:2027

Részletes adatok

Fűtés: Egyéb
Emelet: 1. emelet
Extrák: Lift
Energetikai besorolás: Nem adta meg a hirdető

Az OTP Bank lakáshitel ajánlataFizetett hirdetés

3652234083
Holb Dániel Attila
Duna House - Debrecen, Derék utca

Érdekel az OTP Bank kedvezményes lakáshitel ajánlata? *

* A kérdésre „Igen” válasz bejelölése esetén, az „Üzenet küldése” gombra kattintva kijelentem, hogy az OTP Bank Nyrt. Adatkezelési tájékoztatójának tartalmát megismertem és tudomásul vettem.

Eladó téglalakás leírása

Debrecen belvárosában egy 16 lakásos újépítésű projekt építése vette kezdetét.
Különösen jó lokációval, remek elosztású lakások kerülnek megépítésre. Pinceszinten terempakolók, földszinten irodák, üzletek, míg az első és második emeleten 7-7 lakás, addig a 2.-ik emeleten kettő penthouse kerül kialakításra.
Műszaki tartalom:- 30-as téglafalazat- 15 cm hőszigetelés- 3 rétegű nyílászárók- elektromos redőnnyel- Hűtés: fain-cool- választható burkolatok...stb.Teremgarázs vásárolható 10 Mft-ért
További kérdéseivel kapcsolatban várom hívását, érdeklődését....

Hirdetés feltöltve: 2026. 03. 14. Utoljára módosítva: 2026. 05. 10.

1 szobás téglalakások ára Debrecenben

Ebből az összehasonlításból megtudhatod, hogyan viszonyul a lakás ára a környékbeli téglalakások átlagos árához. Ez nem azt jelenti, hogy ennyivel olcsóbb vagy drágább, mint amennyit a lakás ér, hanem hogy ennyivel tér el a környékbeli átlagtól.

Ennek a m² ára
Debrecen m² ár
1560 e Ft
1439 e Ft -8%
Ennek az ára
Debrecen átlagár
62.388 M Ft m Ft
56.5 m Ft -10%

Az ingatlan elhelyezkedése

Cím: Debrecen, 1. emelet

Eladó téglalakások a környékről

Debrecen
Eladó téglalakás

Debrecen

185.5 M Ft
4 szoba
135 m²
Hajdúszoboszló, József Attila utca
Eladó téglalakás

Hajdúszoboszló

107.5 M Ft
3 szoba
107 m²
Debrecen, Belváros, Hatvan köz
Eladó téglalakás

Debrecen

98.181 M Ft
2 szoba
85 m²
Debrecen
Eladó téglalakás

Debrecen

77.9 M Ft
2 szoba
54 m²
Debrecen, Belváros, Hatvan köz
Eladó téglalakás

Debrecen

120.891 M Ft
3 szoba
103 m²
Debrecen
Eladó téglalakás

Debrecen

99.4 M Ft
4 szoba
76 m²
Debrecen, Belváros, Hatvan köz
Eladó téglalakás

Debrecen

118.936 M Ft
4 szoba
107 m²
Debrecen, Belváros, Hatvan köz
Eladó téglalakás

Debrecen

75.328 M Ft
2 szoba
53 m²
Debrecen, Belváros, Hatvan köz
Eladó téglalakás

Debrecen

98.181 M Ft
2 szoba
85 m²
Debrecen, Belváros, Hatvan köz
Eladó téglalakás

Debrecen

120.46 M Ft
3 szoba
102 m²
Debrecen
Eladó téglalakás

Debrecen

144.6 M Ft
4 szoba
101 m²
Debrecen
Eladó téglalakás

Debrecen

106 M Ft
3 szoba
83 m²
Debrecen, Belváros, Hatvan köz
Eladó téglalakás

Debrecen

75.213 M Ft
1 szoba
81 m²
Debrecen, Belváros, Hatvan köz
Eladó téglalakás

Debrecen

111.05 M Ft
3 szoba
95 m²
Debrecen
Eladó téglalakás

Debrecen

71.9 M Ft
2 szoba
52 m²
Debrecen
Eladó téglalakás

Debrecen

106 M Ft
4 szoba
84 m²
Debrecen, Belváros, Hatvan köz
Eladó téglalakás

Debrecen

111.05 M Ft
3 szoba
95 m²
Debrecen, Belváros, Piac utca
Eladó téglalakás

Debrecen

124 M Ft
2 szoba
102 m²
Debrecen, Belváros, Hatvan köz
Eladó téglalakás

Debrecen

120.46 M Ft
3 szoba
102 m²
Debrecen, Belváros, Hatvan köz
Eladó téglalakás

Debrecen

120.891 M Ft
3 szoba
103 m²
Debrecen
Eladó téglalakás

Debrecen

69.9 M Ft
4 szoba
95 m²
Debrecen, Belváros, Hatvan köz
Eladó téglalakás

Debrecen

83.943 M Ft
2 szoba
64 m²
Hajdúsámson
Eladó téglalakás

Hajdúsámson

75 M Ft
4 szoba
92 m²
Debrecen, Belváros, Piac utca
Eladó téglalakás

Debrecen

124 M Ft
2 szoba
102 m²

Falusi CSOK ingatlanok

Sumony
Eladó családi ház

Sumony

19 M Ft
4 szoba
120 m²
Bak
Eladó családi ház

Bak

49.9 M Ft
5 szoba
140 m²
Balatonszemes
Eladó családi ház

Balatonszemes

95 M Ft
4 szoba
82 m²
Hosszúpereszteg
Eladó családi ház

Hosszúpereszteg

27.9 M Ft
4 szoba
0 m²
Zalaszentiván
Eladó ikerház

Zalaszentiván

54.99 M Ft
5 szoba
160 m²
Zagyvarékas, Erdő utca 16
Eladó családi ház

Zagyvarékas

0.1 M Ft
2 szoba
113 m²
Balatonszemes
Eladó téglalakás

Balatonszemes

125.2 M Ft
2 szoba
50 m²
Gyékényes
Eladó családi ház

Gyékényes

16.9 M Ft
3 szoba
83 m²