Seven Pearl

Eladó téglalakás
Debrecen, 2. emelet

+ 1 kép 1/4
85 916 500 Ft85.917 M Ft 1 562 118 Ft/m2
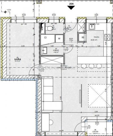
2 szoba
55 m²
2. emelet
építés éve:2027

Részletes adatok

Fűtés: Egyéb
Emelet: 2. emelet
Extrák: Lift
Energetikai besorolás: Nem adta meg a hirdető

Az OTP Bank lakáshitel ajánlataFizetett hirdetés

3652234083
Holb Dániel Attila
Duna House - Debrecen, Derék utca

Érdekel az OTP Bank kedvezményes lakáshitel ajánlata? *

* A kérdésre „Igen” válasz bejelölése esetén, az „Üzenet küldése” gombra kattintva kijelentem, hogy az OTP Bank Nyrt. Adatkezelési tájékoztatójának tartalmát megismertem és tudomásul vettem.

Eladó téglalakás leírása

Debrecen belvárosában egy 16 lakásos újépítésű projekt építése vette kezdetét.
Különösen jó lokációval, remek elosztású lakások kerülnek megépítésre. Pinceszinten terempakolók, földszinten irodák, üzletek, míg az első és második emeleten 7-7 lakás, addig a 2.-ik emeleten kettő penthouse kerül kialakításra.
Műszaki tartalom:- 30-as téglafalazat- 15 cm hőszigetelés- 3 rétegű nyílászárók- elektromos redőnnyel- Hűtés: fain-cool- választható burkolatok...stb.Teremgarázs vásárolható 10 Mft-ért
További kérdéseivel kapcsolatban várom hívását, érdeklődését....

Hirdetés feltöltve: 2026. 03. 14. Utoljára módosítva: 2026. 03. 14.

2 szobás téglalakások ára Debrecenben

Ebből az összehasonlításból megtudhatod, hogyan viszonyul a lakás ára a környékbeli téglalakások átlagos árához. Ez nem azt jelenti, hogy ennyivel olcsóbb vagy drágább, mint amennyit a lakás ér, hanem hogy ennyivel tér el a környékbeli átlagtól.

Ennek a m² ára
Debrecen m² ár
1562 e Ft
1287 e Ft -21%
Ennek az ára
Debrecen átlagár
85.917 M Ft m Ft
68.6 m Ft -25%

Az ingatlan elhelyezkedése

Cím: Debrecen, 2. emelet

Eladó téglalakások a környékről

Debrecen, Belváros, Hatvan köz
Eladó téglalakás

Debrecen

118.936 M Ft
4 szoba
107 m²
Debrecen
Eladó téglalakás

Debrecen

79.7 M Ft
2 szoba
56 m²
Debrecen, Belváros, Hatvan köz
Eladó téglalakás

Debrecen

120.46 M Ft
3 szoba
102 m²
Debrecen, Belváros, Hatvan köz
Eladó téglalakás

Debrecen

75.213 M Ft
1 szoba
81 m²
Debrecen, Belváros, Hatvan köz
Eladó téglalakás

Debrecen

83.943 M Ft
2 szoba
64 m²
Debrecen, Belváros, Hatvan köz
Eladó téglalakás

Debrecen

75.213 M Ft
1 szoba
81 m²
Debrecen
Eladó téglalakás

Debrecen

134.6 M Ft
3 szoba
99 m²
Debrecen, Belváros, Hatvan köz
Eladó téglalakás

Debrecen

111.05 M Ft
3 szoba
95 m²
Debrecen, Belváros, Hatvan köz
Eladó téglalakás

Debrecen

120.891 M Ft
3 szoba
103 m²
Debrecen, Belváros, Hatvan köz
Eladó téglalakás

Debrecen

118.936 M Ft
4 szoba
107 m²
Debrecen
Eladó téglalakás

Debrecen

144.6 M Ft
4 szoba
101 m²
Debrecen, Belváros, Hatvan köz
Eladó téglalakás

Debrecen

98.181 M Ft
2 szoba
85 m²
Debrecen, Belváros, Piac utca
Eladó téglalakás

Debrecen

124 M Ft
2 szoba
102 m²
Püspökladány
Eladó téglalakás

Püspökladány

39.9 M Ft
1 szoba
336 m²
Debrecen
Eladó téglalakás

Debrecen

99.7 M Ft
3 szoba
66 m²
Debrecen
Eladó téglalakás

Debrecen

144.6 M Ft
4 szoba
101 m²
Debrecen, Belváros, Hatvan utca
Eladó téglalakás

Debrecen

398 M Ft
7 + 6 szoba
534 m²
Debrecen
Eladó téglalakás

Debrecen

73.9 M Ft
2 szoba
52 m²
Hajdúszoboszló, József Attila utca
Eladó téglalakás

Hajdúszoboszló

137.5 M Ft
2 szoba
106 m²
Debrecen, Belváros, Hatvan köz
Eladó téglalakás

Debrecen

70.703 M Ft
1 szoba
64 m²
Hajdúszoboszló, József Attila utca
Eladó téglalakás

Hajdúszoboszló

107.5 M Ft
3 szoba
107 m²
Debrecen
Eladó téglalakás

Debrecen

73.9 M Ft
2 szoba
52 m²
Debrecen
Eladó téglalakás

Debrecen

99.7 M Ft
3 szoba
66 m²
Debrecen, Belváros, Hatvan köz
Eladó téglalakás

Debrecen

83.943 M Ft
2 szoba
64 m²

Falusi CSOK ingatlanok

Kaposgyarmat
Eladó családi ház

Kaposgyarmat

695 M Ft
6 szoba
610 m²
Újhartyán
Eladó családi ház

Újhartyán

99.9 M Ft
5 szoba
168 m²
Palkonya
Eladó családi ház

Palkonya

129 M Ft
6 szoba
160 m²
Kőtelek
Eladó családi ház

Kőtelek

14.5 M Ft
1 + 1 szoba
70 m²
Darnózseli
Eladó családi ház

Darnózseli

69.9 M Ft
4 szoba
104 m²
Zagyvarékas
Eladó családi ház

Zagyvarékas

11.9 M Ft
3 szoba
70 m²
Tószeg
Eladó családi ház

Tószeg

16 M Ft
5 szoba
97 m²
Hosszúpereszteg
Eladó családi ház

Hosszúpereszteg

27.9 M Ft
4 szoba
121 m²