Astora Márvány8

Eladó téglalakás
Debrecen, 2. emelet

+ 13 kép 1/16
176 426 000 Ft176.426 M Ft 763 749 Ft/m2
4 szoba
231 m2
2. emelet

Részletes adatok

Fűtés: Egyéb
Energetikai besorolás: Nem adta meg a hirdető

Az OTP Bank lakáshitel ajánlataFizetett hirdetés

+36 20 502
Bécsiné Kocsár Aliz
Partner Iroda

Érdekel az OTP Bank kedvezményes lakáshitel ajánlata? *

* A kérdésre „Igen” válasz bejelölése esetén, az „Üzenet küldése” gombra kattintva kijelentem, hogy az OTP Bank Nyrt. Adatkezelési tájékoztatójának tartalmát megismertem és tudomásul vettem.

Eladó téglalakás leírása

Debrecen egyik legexkluzívabb újépítésű projektjében, a Lóverseny utcai 6 lakásos társasházban eladó egy lenyűgöző, panorámás PENTHOUSE lakás a második emeleten.

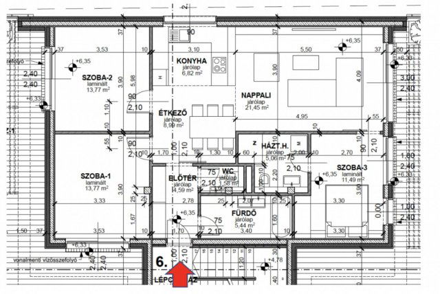
A lakás 92,96 m² alapterületű, elrendezése: tágas amerikai konyhás nappali, 3 hálószoba, 2 fürdőszoba, előtér és külön WC.
A lakáshoz tartozik egyedülálló, összesen 137 m²-nyi privát tetőterasz, amely két különálló, napfényes területből áll (44,61 m² és 92,68 m²) – tökéletes helyszíne lehet pihenésnek, napozásnak vagy baráti összejöveteleknek.
A ház A+ energetikai besorolású, talajszondás hőszivattyús rendszerrel és fan-coil fűtés-hűtéssel épül, így a lakás rendkívül alacsony fenntartású és környezetbarát.

Főbb jellemzők:
Alapterület: 92,96 m² + 137,29 m² tetőterasz
3 hálószoba + nappali + 2 fürdő + háztartási helyiség + WC
Fan-coil hűtés-fűtés, fürdőben padlófűtés
3 rétegű nyílászárók, prémium hő- és hangszigetelés

Zárt, fedett parkolóhely a pincében opcionálisan vásárolható (13,9–14,1 M Ft)
Kiváló elhelyezkedés: zöld környezet, közel az egyetemhez és a belvároshoz

Ár: 176.426.000 Ft

Átadás: 2026

Ez a lakás a modern luxus és a természetközeli életstílus tökéletes egyensúlya.
Ideális választás azoknak, akik a megszokottól eltérő, exkluzív otthont keresnek, hatalmas terasszal, panorámával és maximális privát térrel Debrecen egyik legjobb városrészében.

Érdeklődni: Bécsiné Kocsár Aliz +36 20 502 2460

Hirdetés feltöltve: 2025. 12. 16. Utoljára módosítva: 2025. 12. 17.

4 szobás téglalakások ára Debrecenben

Ebből az összehasonlításból megtudhatod, hogyan viszonyul a lakás ára a környékbeli téglalakások átlagos árához. Ez nem azt jelenti, hogy ennyivel olcsóbb vagy drágább, mint amennyit a lakás ér, hanem hogy ennyivel tér el a környékbeli átlagtól.

Ennek a m² ára
Debrecen m² ár
764 e Ft
1147 e Ft 33%
Ennek az ára
Debrecen átlagár
176.426 M Ft m Ft
108 m Ft -63%

Az ingatlan elhelyezkedése

Cím: Debrecen, 2. emelet

Eladó téglalakások a környékről

Eladó téglalakás
Eladó téglalakás

Debrecen, Belváros, Hatvan köz

118.936 M Ft
4 szoba
107 m2
Eladó téglalakás
Eladó téglalakás

Debrecen

78.5 M Ft
4 szoba
68 m2
Eladó téglalakás
Eladó téglalakás

Debrecen

78.5 M Ft
4 szoba
68 m2
Eladó téglalakás
Eladó téglalakás

Debrecen, Belváros, Hatvan köz

81.769 M Ft
2 szoba
72 m2
Eladó téglalakás
Eladó téglalakás

Debrecen, Belváros, Hatvan köz

120.891 M Ft
3 szoba
103 m2
Eladó téglalakás
Eladó téglalakás

Debrecen

98.9 M Ft
3 szoba
103 m2
Eladó téglalakás
Eladó téglalakás

Debrecen, Belváros, Hatvan köz

132.124 M Ft
4 szoba
107 m2
Eladó téglalakás
Eladó téglalakás

Debrecen, Belváros, Hatvan köz

83.943 M Ft
2 szoba
64 m2
Eladó téglalakás
Eladó téglalakás

Debrecen, Belváros, Hatvan köz

81.769 M Ft
2 szoba
72 m2
Eladó téglalakás
Eladó téglalakás

Hajdúszoboszló, József Attila utca

69 M Ft
2 szoba
59 m2
Eladó téglalakás
Eladó téglalakás

Hajdúszoboszló, József Attila utca

137.5 M Ft
2 szoba
106 m2
Eladó téglalakás
Eladó téglalakás

Debrecen, Belváros, Hatvan köz

70.703 M Ft
1 szoba
64 m2
Eladó téglalakás
Eladó téglalakás

Debrecen, Belváros, Hatvan köz

70.703 M Ft
1 szoba
64 m2
Eladó téglalakás
Eladó téglalakás

Debrecen, Belváros, Hatvan köz

95.929 M Ft
2 szoba
87 m2
Eladó téglalakás
Eladó téglalakás

Debrecen, Belváros, Hatvan köz

75.213 M Ft
1 szoba
81 m2
Eladó téglalakás
Eladó téglalakás

Debrecen, Belváros, Hatvan köz

118.936 M Ft
4 szoba
107 m2
Eladó téglalakás
Eladó téglalakás

Debrecen, Belváros, Hatvan köz

118.936 M Ft
4 szoba
107 m2
Eladó téglalakás
Eladó téglalakás

Debrecen, Belváros, Hatvan utca

398 M Ft
7 + 6 szoba
534 m2
Eladó téglalakás
Eladó téglalakás

Debrecen, Belváros, Piac utca

124 M Ft
2 szoba
102 m2
Eladó téglalakás
Eladó téglalakás

Debrecen, Belváros, Hatvan köz

98.181 M Ft
2 szoba
85 m2
Eladó téglalakás
Eladó téglalakás

Debrecen, Belváros, Hatvan köz

120.891 M Ft
3 szoba
103 m2
Eladó téglalakás
Eladó téglalakás

Hajdúszoboszló

69 M Ft
2 szoba
45 m2
Eladó téglalakás
Eladó téglalakás

Debrecen, Belváros, Hatvan köz

70.703 M Ft
1 szoba
64 m2
Eladó téglalakás
Eladó téglalakás

Debrecen, Belváros, Hatvan utca

398 M Ft
7 + 6 szoba
534 m2

Falusi CSOK ingatlanok

Eladó családi ház
Eladó családi ház

Ágasegyháza

79 M Ft
5 szoba
174 m2
Eladó családi ház
Eladó családi ház

Tiszaroff

12.5 M Ft
2 szoba
63 m2
Eladó családi ház
Eladó családi ház

Nyáregyháza

63.9 M Ft
1 + 1 szoba
79 m2
Eladó családi ház
Eladó családi ház

Gönyű

111.951 M Ft
4 szoba
105 m2
Eladó családi ház
Eladó családi ház

Sződ, Mártírok útja

73.4 M Ft
6 szoba
120 m2
Eladó családi ház
Eladó családi ház

Csemő

110 M Ft
5 szoba
171 m2
Eladó családi ház
Eladó családi ház

Porva

74.6 M Ft
3 szoba
115 m2
Eladó családi ház
Eladó családi ház

Kenyeri

21.8 M Ft
2 szoba
75 m2