River Life

Eladó téglalakás
Debrecen, földszint

+ 14 kép 1/17
121 894 000 Ft121.894 M Ft 1 434 047 Ft/m2
3 szoba
85 m2
földszint

Részletes adatok

Fűtés: Egyéb
Energetikai besorolás: Nem adta meg a hirdető

Az OTP Bank lakáshitel ajánlataFizetett hirdetés

+36 20 502
Bécsiné Kocsár Aliz
Partner Iroda

Érdekel az OTP Bank kedvezményes lakáshitel ajánlata? *

* A kérdésre „Igen” válasz bejelölése esetén, az „Üzenet küldése” gombra kattintva kijelentem, hogy az OTP Bank Nyrt. Adatkezelési tájékoztatójának tartalmát megismertem és tudomásul vettem.

Eladó téglalakás leírása

Két hálós, kertkapcsolatos újépítésű lakás eladó – Debrecen, Nyulas

Debrecen egyik legexkluzívabb újépítésű társasházában, a Lóverseny utcában eladó egy földszinti, kertkapcsolatos, modern lakás 86 m² kizárólagos használatú telekrésszel és 13,1 m²-es terasszal.

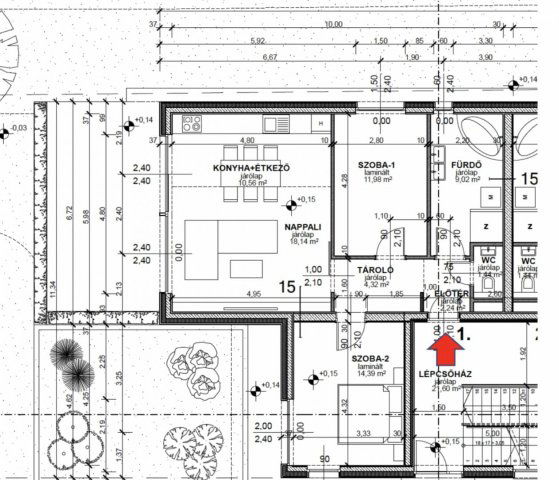
A lakás 85,19 m² összterületű, elosztása: nappali + étkező + konyha, 2 hálószoba, fürdőszoba, külön WC, előtér, terasz.

A társasház A+ energetikai besorolású, talajszondás hőszivattyús rendszerrel és fan-coil fűtés-hűtéssel épül, így a lakások rendkívül alacsony fenntartásúak és környezetbarátok.

Modern luxus, privát kert, alacsony rezsi, prémium környezet – 2026-os átadással.

Főbb jellemzők:
Alapterület: 85,19 m²
Terasz: 13,1 m²
Saját használatú kert: 86 m²
A+ energetikai besorolás
Fan-coil hűtés-fűtés, padlófűtés a fürdőben
3 rétegű nyílászárók, prémium hő- és hangszigetelés
Okosotthon előkészítés, riasztórendszer, elektromos autótöltés lehetőség (opcionális)

Zárt, fedett parkolóhely vásárolható a pincében (13,9–14,1 M Ft)

Csendes zöldövezet, közel az egyetemhez és a belvároshoz

Ár: 121.894.000 Ft
Átadás: 2026

Részletes műszaki információkért és bemutató anyagért hívjon bizalommal:
Bécsiné Kocsár Aliz – +36 20 502 2460

Hirdetés feltöltve: 2025. 12. 16. Utoljára módosítva: 2025. 12. 17.

3 szobás téglalakások ára Debrecenben

Ebből az összehasonlításból megtudhatod, hogyan viszonyul a lakás ára a környékbeli téglalakások átlagos árához. Ez nem azt jelenti, hogy ennyivel olcsóbb vagy drágább, mint amennyit a lakás ér, hanem hogy ennyivel tér el a környékbeli átlagtól.

Ennek a m² ára
Debrecen m² ár
1434 e Ft
1328 e Ft -8%
Ennek az ára
Debrecen átlagár
121.894 M Ft m Ft
96.4 m Ft -26%

Az ingatlan elhelyezkedése

Cím: Debrecen, földszint

Eladó téglalakások a környékről

Eladó téglalakás
Eladó téglalakás

Hajdúszoboszló, József Attila utca

69 M Ft
2 szoba
59 m2
Eladó téglalakás
Eladó téglalakás

Debrecen, Belváros, Hatvan köz

95.929 M Ft
2 szoba
87 m2
Eladó téglalakás
Eladó téglalakás

Debrecen, Belváros, Hatvan köz

83.943 M Ft
2 szoba
64 m2
Eladó téglalakás
Eladó téglalakás

Debrecen

89.9 M Ft
3 szoba
64 m2
Eladó téglalakás
Eladó téglalakás

Debrecen, Belváros, Hatvan köz

98.181 M Ft
2 szoba
85 m2
Eladó téglalakás
Eladó téglalakás

Hajdúszoboszló, József Attila utca

137.5 M Ft
2 szoba
106 m2
Eladó téglalakás
Eladó téglalakás

Debrecen, Belváros, Hatvan köz

99.917 M Ft
3 szoba
81 m2
Eladó téglalakás
Eladó téglalakás

Debrecen, Belváros, Hatvan köz

101.969 M Ft
3 szoba
85 m2
Eladó téglalakás
Eladó téglalakás

Debrecen, Belváros, Hatvan köz

75.213 M Ft
1 szoba
81 m2
Eladó téglalakás
Eladó téglalakás

Debrecen, Belváros, Hatvan köz

118.936 M Ft
4 szoba
107 m2
Eladó téglalakás
Eladó téglalakás

Debrecen, Belváros, Hatvan köz

101.969 M Ft
3 szoba
85 m2
Eladó téglalakás
Eladó téglalakás

Debrecen, Belváros, Hatvan köz

95.929 M Ft
2 szoba
87 m2
Eladó téglalakás
Eladó téglalakás

Debrecen, Belváros, Hatvan köz

123.522 M Ft
3 szoba
100 m2
Eladó téglalakás
Eladó téglalakás

Debrecen, Belváros, Piac utca

124 M Ft
2 szoba
102 m2
Eladó téglalakás
Eladó téglalakás

Debrecen, Belváros, Hatvan köz

70.703 M Ft
1 szoba
64 m2
Eladó téglalakás
Eladó téglalakás

Debrecen, Belváros, Hatvan köz

83.943 M Ft
2 szoba
64 m2
Eladó téglalakás
Eladó téglalakás

Debrecen, Belváros, Hatvan köz

120.891 M Ft
3 szoba
103 m2
Eladó téglalakás
Eladó téglalakás

Debrecen

78.5 M Ft
4 szoba
68 m2
Eladó téglalakás
Eladó téglalakás

Debrecen

78.5 M Ft
4 szoba
68 m2
Eladó téglalakás
Eladó téglalakás

Debrecen

98.9 M Ft
3 szoba
103 m2
Eladó téglalakás
Eladó téglalakás

Debrecen

69.9 M Ft
4 szoba
95 m2
Eladó téglalakás
Eladó téglalakás

Debrecen, Belváros, Piac utca

124 M Ft
2 szoba
102 m2
Eladó téglalakás
Eladó téglalakás

Debrecen, Belváros, Hatvan köz

120.891 M Ft
3 szoba
103 m2
Eladó téglalakás
Eladó téglalakás

Debrecen

91.9 M Ft
2 szoba
54 m2

Falusi CSOK ingatlanok

Eladó családi ház
Eladó családi ház

Nyírtura

99 M Ft
4 szoba
280 m2
Eladó családi ház
Eladó családi ház

Bakonycsernye

39 M Ft
3 szoba
350 m2
Eladó családi ház
Eladó családi ház

Gönyű

111.951 M Ft
4 szoba
105 m2
Eladó ikerház
Eladó ikerház

Seregélyes

39.9 M Ft
4 szoba
150 m2
Eladó családi ház
Eladó családi ház

Nagyberény

24.9 M Ft
3 szoba
62 m2
Eladó családi ház
Eladó családi ház

Kamut

29 M Ft
3 szoba
100 m2
Eladó családi ház
Eladó családi ház

Sellye

21.6 M Ft
2 szoba
72 m2
Eladó családi ház
Eladó családi ház

Tihany

149 M Ft
5 szoba
270 m2