Astora Márvány8

Eladó téglalakás
Debrecen, 1. emelet

+ 3 kép 1/6
62 190 500 Ft62.191 M Ft 1 554 763 Ft/m2
2 szoba
40 m2
1. emelet

Részletes adatok

Fűtés: Egyéb
Energetikai besorolás: Nem adta meg a hirdető

Az OTP Bank lakáshitel ajánlataFizetett hirdetés

+36 30 559
Kolbe Judit
Nagyerdei Ingatlaniroda

Érdekel az OTP Bank kedvezményes lakáshitel ajánlata? *

* A kérdésre „Igen” válasz bejelölése esetén, az „Üzenet küldése” gombra kattintva kijelentem, hogy az OTP Bank Nyrt. Adatkezelési tájékoztatójának tartalmát megismertem és tudomásul vettem.

Eladó téglalakás leírása

ELADÓ ÚJ ÉPÍTÉSŰ LAKÁS DEBRECEN BELVÁROSÁBAN – KIVÁLÓ elhelyezkedés, ENERGIATAKARÉKOS megoldások, MODERN kialakítás!

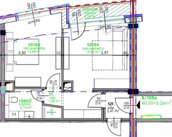
Debrecen CSENDES, FORGALOMMENTES belvárosi részén kínáljuk megvételre ezt a 40,05 nm alapterületű, ÚJ ÉPÍTÉSŰ lakást, amely MINŐSÉGI anyaghasználatával és PRAKTIKUS elrendezésével minden igényt kielégít. Az ingatlan különlegessége, hogy egy KÖZÖS SZÉLFOGÓN keresztül közelíthető meg, BIZTONSÁGOS és nyugodt életteret biztosítva minden lakó számára. A LAKÁS rendelkezik egy NAPFÉNYES amerikai konyhás nappalival, önálló hálószobával, a modern fürdőszobát és egy 3,26 nm-es loggiát is magában foglal, mely TOVÁBBI kényelmet nyújt.

Az épület fűtése MODERN, EGYEDI MÉRŐKKEL ellátott TÁVHŐ rendszeren keresztül működik, így energiafogyasztását és költségeit SAJÁT IGÉNYEIHEZ igazíthatja. A HŰTŐ-FŰTŐ LEVEGŐS HŐSZIVATTYÚS berendezésnek köszönhetően EGÉSZ ÉVBEN optimális hőmérséklet biztosítható, hozzájárulva az ENERGIATAKARÉKOSSÁGHOZ és komfortérzethez.

A lakók biztonságát és kényelmét tovább növeli a PINCESZINTEN rendelkezésre álló PARKOLÓHELY, így az autója MEGBÍZHATÓ védelemben részesül.

Ez a lakás IDEÁLIS választás első otthonnak, fiatal pároknak vagy BEFEKTETÉSI céllal keresőknek egyaránt.

RAGADJA MEG ezt a KIVÁLÓ LEHETŐSÉGET Debrecen BELVÁROSÁBAN!

Referenciaszám: #123347

***
NEWLY BUILT APARTMENT FOR SALE IN THE CITY CENTRE OF DEBRECEN – EXCELLENT location, ENERGY-EFFECTIVE solutions, MODERN design!

We offer for sale in the QUIET, TRAFFIC-FREE downtown area of ​​Debrecen this NEWLY BUILT apartment with a floor area of ​​40.05 sqm, which satisfies all needs with its QUALITY materials and PRACTICAL layout. The special feature of the property is that it can be accessed through a COMMON GARDEN, ensuring a SAFE and peaceful living space for all residents. THE APARTMENT has a SUNNY living room with an American kitchen, a separate bedroom, a modern bathroom and a 3.26 sqm loggia, which provides ADDITIONAL comfort.

The building is heated via a MODERN, DISTRICT HEATING system with INDIVIDUAL METERS, so you can adjust your energy consumption and costs to YOUR OWN NEEDS. Thanks to the COOLING-HEATING AIR HEAT PUMP system, optimal temperature can be ensured ALL YEAR ROUND, contributing to ENERGY SAVING and comfort.

The safety and comfort of the residents is further enhanced by the PARKING SPACE available AT THE BASEMENT LEVEL, so your car will receive RELIABLE protection.

This apartment is an IDEAL choice for a first home, young couples or those looking for INVESTMENT purposes.

GRAB this EXCELLENT OPPORTUNITY IN THE CITY CENTRE OF Debrecen!

Reference number: #123347

Hirdetés feltöltve: 2025. 11. 20. Utoljára módosítva: 2025. 11. 30.

2 szobás téglalakások ára Debrecenben

Ebből az összehasonlításból megtudhatod, hogyan viszonyul a lakás ára a környékbeli téglalakások átlagos árához. Ez nem azt jelenti, hogy ennyivel olcsóbb vagy drágább, mint amennyit a lakás ér, hanem hogy ennyivel tér el a környékbeli átlagtól.

Ennek a m² ára
Debrecen m² ár
1555 e Ft
1276 e Ft -22%
Ennek az ára
Debrecen átlagár
62.191 M Ft m Ft
70.2 m Ft 11%

Az ingatlan elhelyezkedése

Cím: Debrecen, 1. emelet

Eladó téglalakások a környékről

Eladó téglalakás
Eladó téglalakás

Debrecen, Belváros, Hatvan köz

118.936 M Ft
4 szoba
107 m2
Eladó téglalakás
Eladó téglalakás

Debrecen

89.9 M Ft
3 szoba
64 m2
Eladó téglalakás
Eladó téglalakás

Debrecen

69.9 M Ft
4 szoba
95 m2
Eladó téglalakás
Eladó téglalakás

Hajdúszoboszló, József Attila utca

107.5 M Ft
3 szoba
107 m2
Eladó téglalakás
Eladó téglalakás

Debrecen, Belváros, Hatvan köz

123.522 M Ft
3 szoba
100 m2
Eladó téglalakás
Eladó téglalakás

Hajdúsámson

75 M Ft
4 szoba
92 m2
Eladó téglalakás
Eladó téglalakás

Debrecen

78.5 M Ft
4 szoba
68 m2
Eladó téglalakás
Eladó téglalakás

Debrecen, Belváros, Hatvan köz

83.943 M Ft
2 szoba
64 m2
Eladó téglalakás
Eladó téglalakás

Debrecen, Belváros, Hatvan köz

118.936 M Ft
4 szoba
107 m2
Eladó téglalakás
Eladó téglalakás

Debrecen

73.9 M Ft
2 szoba
52 m2
Eladó téglalakás
Eladó téglalakás

Debrecen

78.5 M Ft
4 szoba
68 m2
Eladó téglalakás
Eladó téglalakás

Debrecen, Belváros, Hatvan köz

132.124 M Ft
4 szoba
107 m2
Eladó téglalakás
Eladó téglalakás

Hajdúszoboszló, József Attila utca

137.5 M Ft
2 szoba
106 m2
Eladó téglalakás
Eladó téglalakás

Debrecen

93 M Ft
5 szoba
105 m2
Eladó téglalakás
Eladó téglalakás

Debrecen

77.99 M Ft
3 szoba
66 m2
Eladó téglalakás
Eladó téglalakás

Debrecen, Belváros, Hatvan utca

398 M Ft
7 + 6 szoba
534 m2
Eladó téglalakás
Eladó téglalakás

Debrecen, Belváros, Hatvan köz

81.769 M Ft
2 szoba
72 m2
Eladó téglalakás
Eladó téglalakás

Debrecen, Belváros, Hatvan köz

98.181 M Ft
2 szoba
85 m2
Eladó téglalakás
Eladó téglalakás

Hajdúszoboszló

84 M Ft
5 szoba
90 m2
Eladó téglalakás
Eladó téglalakás

Debrecen, Belváros, Piac utca

124 M Ft
2 szoba
102 m2
Eladó téglalakás
Eladó téglalakás

Debrecen

91.9 M Ft
2 szoba
54 m2
Eladó téglalakás
Eladó téglalakás

Debrecen, Belváros, Hatvan köz

99.917 M Ft
3 szoba
81 m2
Eladó téglalakás
Eladó téglalakás

Debrecen, Belváros, Hatvan köz

118.936 M Ft
4 szoba
107 m2
Eladó téglalakás
Eladó téglalakás

Debrecen, Belváros, Hatvan köz

101.969 M Ft
3 szoba
85 m2

Falusi CSOK ingatlanok

Eladó családi ház
Eladó családi ház

Nágocs

72.3 M Ft
4 + 1 szoba
170 m2
Eladó családi ház
Eladó családi ház

Jakabszállás

320 M Ft
15 szoba
665 m2
Eladó családi ház
Eladó családi ház

Bugac

34.4 M Ft
3 szoba
70 m2
Eladó családi ház
Eladó családi ház

Magyarszombatfa

80 M Ft
3 szoba
90 m2
Eladó családi ház
Eladó családi ház

Szentkirályszabadja

135.9 M Ft
4 szoba
150 m2
Eladó családi ház
Eladó családi ház

Balatonfenyves

430 M Ft
4 szoba
274 m2
Eladó családi ház
Eladó családi ház

Balatonberény, Kodály Zotán utca 34

61.9 M Ft
4 + 1 szoba
95 m2
Eladó családi ház
Eladó családi ház

Boldva

25.99 M Ft
2 szoba
130 m2