Eladó téglalakás
Debrecen, 1. emelet

+ 17 kép 1/20
109 900 000 Ft109.9 M Ft 858 594 Ft/m2
4 szoba
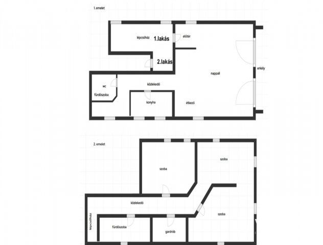
128 m2
1. emelet
építés éve:2024

Részletes adatok

Telekméret: 60 m2
Fűtés: Gázkazán
Energetikai besorolás: Nem adta meg a hirdető

Az OTP Bank lakáshitel ajánlataFizetett hirdetés

+36 30 905
Tripsó Ildikó
Városi Ingatlaniroda - VING

Érdekel az OTP Bank kedvezményes lakáshitel ajánlata? *

* A kérdésre „Igen” válasz bejelölése esetén, az „Üzenet küldése” gombra kattintva kijelentem, hogy az OTP Bank Nyrt. Adatkezelési tájékoztatójának tartalmát megismertem és tudomásul vettem.

Eladó téglalakás leírása

Eladó egy kivételes téglaépítésű lakás, Debrecen közkedvelt helyén, közel a belvároshoz .
Ez a két szintes, 3 lakásos társasházban lévő , 128 m²-es lakótérrel rendelkező ingatlan ,tökéletes választás mindazok számára, akik kényelmes és modern otthont keresnek. Az ingatlanhoz tartozik egy 60 m²-es kert, amely ideális lehetőséget nyújt a kikapcsolódásra ,a saját kertrészben kerti sütögetésre .
A lakás belső szintes elrendezése, tágas teret biztosít, 3 különálló szobája és egy nappalija lehetőséget ad a család minden tagjának a privát térre. Az ingatlan kiváló állapotban van, és prémium anyagok felhasználásával készült. A padlófűtés és a külső hőszigetelés nemcsak komfortos, de alacsony fenntartási költségeket is garantál.
Az erkélyről csodás kilátás nyílik a környező zöld területekre, míg a 2 fürdőszoba és WC tovább növeli az itt élők kényelmét. A lakás elhelyezkedése kiváló közlekedési kapcsolatokat biztosít a belváros közelsége révén.
Ne hagyja ki ezt a remek lehetőséget, hogy egy prémium minőségű, ideális elrendezésű és alacsony fenntartási költségű otthon tulajdonosa legyen Debrecen egyik kedvelt városrészében! Érdeklődjön még ma!

TRIPSÓ ILDIKÓ
+36 30 9055419
ingatlanértékesítő
Városi Ingatlaniroda
Debrecen

Hirdetés feltöltve: 2025. 10. 06.

4 szobás téglalakások ára Debrecenben

Ebből az összehasonlításból megtudhatod, hogyan viszonyul a lakás ára a környékbeli téglalakások átlagos árához. Ez nem azt jelenti, hogy ennyivel olcsóbb vagy drágább, mint amennyit a lakás ér, hanem hogy ennyivel tér el a környékbeli átlagtól.

Ennek a m² ára
Debrecen m² ár
859 e Ft
1076 e Ft 20%
Ennek az ára
Debrecen átlagár
109.9 M Ft m Ft
102.3 m Ft -7%

Az ingatlan elhelyezkedése

Cím: Debrecen, 1. emelet

Eladó téglalakások a környékről

Eladó téglalakás
Eladó téglalakás

Debrecen

74.9 M Ft
2 szoba
71 m2
Eladó téglalakás
Eladó téglalakás

Hajdúsámson

75 M Ft
4 szoba
92 m2
Eladó téglalakás
Eladó téglalakás

Debrecen

118.936 M Ft
4 szoba
93 m2
Eladó téglalakás
Eladó téglalakás

Debrecen

98.181 M Ft
2 szoba
80 m2
Eladó téglalakás
Eladó téglalakás

Debrecen

102.6 M Ft
3 szoba
67 m2
Eladó téglalakás
Eladó téglalakás

Debrecen

110 M Ft
2 szoba
102 m2
Eladó téglalakás
Eladó téglalakás

Debrecen

93 M Ft
5 szoba
105 m2
Eladó téglalakás
Eladó téglalakás

Debrecen

78.5 M Ft
4 szoba
68 m2
Eladó téglalakás
Eladó téglalakás

Debrecen, Belváros, Hatvan köz

118.936 M Ft
4 szoba
107 m2
Eladó téglalakás
Eladó téglalakás

Debrecen, Belváros, Piac utca

110 M Ft
2 szoba
102 m2
Eladó téglalakás
Eladó téglalakás

Debrecen

69.9 M Ft
4 szoba
95 m2
Eladó téglalakás
Eladó téglalakás

Debrecen

110 M Ft
2 szoba
118 m2
Eladó téglalakás
Eladó téglalakás

Debrecen

74.9 M Ft
2 szoba
65 m2
Eladó téglalakás
Eladó téglalakás

Debrecen

93 M Ft
5 szoba
105 m2
Eladó téglalakás
Eladó téglalakás

Debrecen, Belváros, Piac utca

110 M Ft
2 szoba
102 m2
Eladó téglalakás
Eladó téglalakás

Debrecen

54.9 M Ft
3 szoba
57 m2
Eladó téglalakás
Eladó téglalakás

Debrecen

118.936 M Ft
4 szoba
93 m2
Eladó téglalakás
Eladó téglalakás

Debrecen

74.9 M Ft
2 szoba
71 m2
Eladó téglalakás
Eladó téglalakás

Debrecen

102.6 M Ft
3 szoba
67 m2
Eladó téglalakás
Eladó téglalakás

Hajdúszoboszló

69.9 M Ft
5 szoba
90 m2
Eladó téglalakás
Eladó téglalakás

Debrecen

98.9 M Ft
3 szoba
103 m2
Eladó téglalakás
Eladó téglalakás

Hajdúszoboszló, József Attila utca

137.5 M Ft
2 szoba
106 m2
Eladó téglalakás
Eladó téglalakás

Debrecen, Belváros, Hatvan köz

98.181 M Ft
2 szoba
85 m2
Eladó téglalakás
Eladó téglalakás

Debrecen, Belváros, Hatvan köz

81.769 M Ft
2 szoba
72 m2

Falusi CSOK ingatlanok

Eladó családi ház
Eladó családi ház

Tapsony

23.8 M Ft
3 szoba
130 m2
Eladó családi ház
Eladó családi ház

Ceglédbercel

63 M Ft
3 szoba
70 m2
Eladó családi ház
Eladó családi ház

Bugac

55 M Ft
3 szoba
90 m2
Eladó családi ház
Eladó családi ház

Szőlősgyörök, Táncsics Mihály utca

47.999 M Ft
5 szoba
105 m2
Eladó családi ház
Eladó családi ház

Tömörkény, József Attila utca 5

9.2 M Ft
1 + 1 szoba
93 m2
Eladó családi ház
Eladó családi ház

Táborfalva

24.9 M Ft
2 + 1 szoba
81 m2
Eladó téglalakás
Eladó téglalakás

Tokaj

188.9 M Ft
3 szoba
93 m2
Eladó családi ház
Eladó családi ház

Törtel

34.9 M Ft
4 szoba
102 m2