Eladó téglalakás
Debrecen, 2. emelet 
Részletes adatok
Az OTP Bank lakáshitel ajánlataFizetett hirdetés
Induló törlesztőrészlet
101 262 Ft /hóTörlesztőrészlet a 13. hónaptól
129 106 Ft /hóInduló törlesztőrészlet
135 016 Ft /hóTörlesztőrészlet a 13. hónaptól
172 142 Ft /hóA tájékoztatás nem teljes körű és nem minősül ajánlattételnek. Az OTP Évnyerő Lakáshitelei 1 éves türelmi idős kölcsönök, amellyel az első 12 hónapban alacsonyabb a havi törlesztőrészlet. A tőke törlesztését a 13. hónaptól kell megkezdeni.
Eladó téglalakás leírása
ÚJ ÉPÍTÉSŰ LAKÁSOK!!!
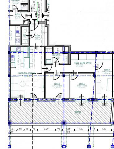
 Debrecen Belvárosában eladó egy II. Emeleti , 94 m2 + 36 m2 erkélyes , amerikai konyhás nappali + 3 hálószobás lakás!!
 A társasházban összesen 63 lakás , földszinten irodák és üzletek, a pince szinten pedig teremgarázs ok kerülnek kialakításra!!
A modern kialakítású , 4 emeletes társasház lakásai, világos , többnyire erkélyes kialakításúak, kiváló választás befektetők és magánszemély számára egyaránt. lakásait 
Az ingatlan főbb paraméterei a következőek: 
- várható átadás 2026.12.01
- homlokzati hőszigetelés 15 cm 
- Vasbeton pillér , tégla szerkezettel
- 30-as N+F falazó elem
- hang gátló falazat a lakások között 
- 3 rétegű műanyag nyílászárók. redőnytokokkal 
- beépített légkondicionáló 
- Egyedi mérőórás távhő radiátoros hőleadásal 
- 2 dr lift kialakítva 
- opcionálisan teremgarázs vásárolható 
További információért hívjon bizalommal akár hétvégén is. Megtekintésre telefonos egyeztetés alapján van lehetőség. Kedvezményes kamatozású lakásvásárlási és felújítási hitelek az OTP hátterével irodánkban.
Hirdetés feltöltve: 2025. 08. 28. Utoljára módosítva: 2025. 09. 17.
4 szobás téglalakások ára Debrecenben
Ebből az összehasonlításból megtudhatod, hogyan viszonyul a lakás ára a környékbeli téglalakások átlagos árához. Ez nem azt jelenti, hogy ennyivel olcsóbb vagy drágább, mint amennyit a lakás ér, hanem hogy ennyivel tér el a környékbeli átlagtól.
Az ingatlan elhelyezkedése
Cím: Debrecen, 2. emelet
 
 
 
 
 
 
 
 
 
 
 
 
 
 
 
 
 
 
 
 
 
 
 
 
 
 
 
 
 
