Oasis Residence

Eladó téglalakás
Cserkeszőlő, 1. emelet

+ 4 kép 1/7
49 362 000 Ft49.362 M Ft 914 111 Ft/m2
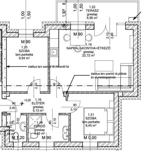
3 szoba
54 m2
1. emelet
építés éve:2025

Részletes adatok

Fűtés: Egyéb
Energetikai besorolás: Nem adta meg a hirdető

Az OTP Bank lakáshitel ajánlataFizetett hirdetés

+36 30 656
Fábrik-Csendes Zsuzsanna
referens

Érdekel az OTP Bank kedvezményes lakáshitel ajánlata? *

* A kérdésre „Igen” válasz bejelölése esetén, az „Üzenet küldése” gombra kattintva kijelentem, hogy az OTP Bank Nyrt. Adatkezelési tájékoztatójának tartalmát megismertem és tudomásul vettem.

Eladó téglalakás leírása

Cserkeszőlői, zöldövezeti, energiahatékony újépítésű lakások leköthetők --- az OTP Ingatlanpontnál! Már csak 7 újépítésű téglalakás elérhető, tulajdonos-kivitelezőtől, 20% kezdő befizetéssel eladó. A kulcsrakész átadás tervezett időpontja: 2026.06.30.! Modern, elegáns megjelenés, korszerű anyagok és kellemes, zöld környezet jellemzik ezt a projektet. A parkosított telken hat lakóház (földszint,2 emelet, tetőtér) kerül elhelyezésre. Az egyik lakóépületben kilenc lakás kap helyet. Ez a lakás külön kis lépcsőházban található, ahol összesen csak 3 lakás osztja meg a közös területeket. Tágas 3 szobás lakás az 1. emeleten, saját erkéllyel és jobb kilátással. Kiváló választás azok számára, akik a 3 szobás rugalmasságot és a magasabb elhelyezkedés előnyeit keresik. A 6. lakás ugyanazt a 3 szobás rugalmasságot nyújtja, mint a földszinti társai, de az 1. emeleti elhelyezkedés jobb kilátást és több természetes fényt biztosít. A nagyobb lépcsőházban való elhelyezkedés alacsonyabb közös költségeket jelent. A 3 szobás 2 háló + nappali elrendezés előnye: dolgozószoba, vendégszoba vagy gyerekszoba kialakítására egyaránt alkalmas. A lakásokba zárt lépcsőházon keresztül juthatunk. A tágas amerikai konyhás nappali mellett 2 hálószoba, közlekedő, valamint fürdőszoba külön WC áll rendelkezésre. A fűtést és a melegvizet hőszivattyú fogja ellátni, padlófűtéssel, lakásonként egyedi mérési lehetőséggel. Az ár a kulcsrakész állapotra vonatkozik. Ha számít Önnek az egyedi, elegáns környezet, valamint az alacsony fenntartási költségek, akkor ne gondolkozzon tovább! Ideális választás azok számára, akik a természetközelséget és a kényelmet egyaránt értékelik. További információért hívjon bizalommal! Legújabb szolgáltatásként ajánlom minden kedves ügyfelem részére az OTP Bank által közvetített Babaváró, CSOK PLUSZ, Otthon Start Hitelprogram vagy egyéb kölcsönök intézését. Az OTP Ingatlanpont kedvezményes pénzügyi konstrukciókkal áll ügyfelei rendelkezésére! VIP-szolgáltatást nyújtunk az OTP-hiteltermékek ügyintézésében. Jogi és pénzügyi segítséget nyújtanak szakértőink, hogy az adásvétel folyamata gördülékeny legyen. Amennyiben a vételár a kérdés, és úgy gondolja még nincs meg az összeg a leendő új otthonra? Lehet, hogy még is rendelkezésére áll a vételár csak még Ön nem is tudja? Tisztában van valóban az anyagi lehetőségeivel? Az áthidaló megoldásokkal? Esetleg csak az az akadály, hogy nem adta el még a saját ingatlanját? Nem gond, a tulajdonosaink, eladóink szívesen megvárják Önt, segítünk a gyors értékesítésben is. Ne maradjon le a vételről, ha már megtalálta a megfelelő új otthont! Szolgáltatásunk ingyenes, kizárólag sikeres értékesítés esetén van megbízási díj fizetési kötelezettség. A vevők is nálunk vannak és lehet az Ön ingatlanjára várnak?! Tudjon meg többet, hívjon bizalommal! Eladó ingatlanja van? Nincs vevője? Hívjon segítek az értékesítésben! Kedvező hitelajánlatokkal (BABAVÁRÓ hitel, piaci hitel, és szabadfelhasználású hitel) várjuk jelentkezését. Számos konstrukció közül választhatnak. Irodáink Szentes, Petőfi utca 12. (a buszmegálló felől) és Csongrád, Fő utca 54. szám alatt várja a személyes érdeklődőket. ***VÁLASSZUK KI EGYÜTT AZ ÖNNEK LEGMEGFELELŐBB AJÁNLATOT! BANKI SORBAN ÁLLÁS NÉLKÜL! ***

Hirdetés feltöltve: 2025. 10. 15. Utoljára módosítva: 2025. 11. 02.

Az ingatlan elhelyezkedése

Cím: Cserkeszőlő, 1. emelet

Eladó ingatlanok a környékről

Eladó családi ház
Eladó családi ház

Szolnok

16.9 M Ft
2 szoba
42 m2
Eladó téglalakás
Eladó téglalakás

Jászberény

61.9 M Ft
2 szoba
78 m2
Eladó téglalakás
Eladó téglalakás

Kunszentmárton, Köztársaság tér

14 M Ft
2 szoba
48 m2
Eladó téglalakás
Eladó téglalakás

Jászberény

61.9 M Ft
3 szoba
93 m2
Eladó családi ház
Eladó családi ház

Tiszafüred

55 M Ft
3 szoba
112 m2
Eladó téglalakás
Eladó téglalakás

Szászberek

79.9 M Ft
4 szoba
103 m2
Eladó téglalakás
Eladó téglalakás

Cserkeszőlő

49.362 M Ft
3 szoba
54 m2
Eladó téglalakás
Eladó téglalakás

Tiszafüred

37 M Ft
3 szoba
72 m2
Eladó téglalakás
Eladó téglalakás

Szolnok

45.9 M Ft
4 szoba
93 m2
Eladó téglalakás
Eladó téglalakás

Jászberény

47 M Ft
1 + 1 szoba
60 m2
Eladó téglalakás
Eladó téglalakás

Szolnok

34.99 M Ft
2 szoba
59 m2
Eladó családi ház
Eladó családi ház

Kisújszállás

8 M Ft
1 + 1 szoba
61 m2
Eladó téglalakás
Eladó téglalakás

Kisújszállás

31 M Ft
2 szoba
86 m2
Eladó téglalakás
Eladó téglalakás

Szolnok, Katonaváros, Tófenék utca

63.5 M Ft
1 szoba
94 m2
Eladó téglalakás
Eladó téglalakás

Cserkeszőlő

42.759 M Ft
2 szoba
45 m2
Eladó családi ház
Eladó családi ház

Kisújszállás

27 M Ft
4 + 2 szoba
184 m2
Eladó téglalakás
Eladó téglalakás

Cserkeszőlő

39.819 M Ft
2 szoba
45 m2
Eladó téglalakás
Eladó téglalakás

Cserkeszőlő

47.734 M Ft
3 szoba
54 m2
Eladó téglalakás
Eladó téglalakás

Jászberény

61.5 M Ft
1 + 1 szoba
71 m2
Eladó téglalakás
Eladó téglalakás

Cserkeszőlő

49.362 M Ft
2 szoba
61 m2
Eladó téglalakás
Eladó téglalakás

Cserkeszőlő

39.82 M Ft
463982 m²
463982 m2
Eladó téglalakás
Eladó téglalakás

Cserkeszőlő

45.833 M Ft
3 szoba
54 m2
Eladó téglalakás
Eladó téglalakás

Szászberek

81.9 M Ft
4 szoba
103 m2
Eladó téglalakás
Eladó téglalakás

Cserkeszőlő

49.493 M Ft
3 szoba
54 m2

Falusi CSOK ingatlanok

Eladó családi ház
Eladó családi ház

Nyírábrány

17.9 M Ft
2 szoba
65 m2
Eladó családi ház
Eladó családi ház

Somlóvásárhely

39.8 M Ft
1 szoba
78 m2
Eladó családi ház
Eladó családi ház

Balatonkeresztúr

71.95 M Ft
5 szoba
128 m2
Eladó családi ház
Eladó családi ház

Bakonycsernye

39 M Ft
3 szoba
350 m2
Eladó családi ház
Eladó családi ház

Tiszaroff

12.5 M Ft
2 szoba
63 m2
Eladó családi ház
Eladó családi ház

Recsk

59 M Ft
2 szoba
70 m2
Eladó családi ház
Eladó családi ház

Újszilvás

23 M Ft
3 + 1 szoba
100 m2
Eladó családi ház
Eladó családi ház

Úrkút

94.9 M Ft
4 szoba
186 m2